原本是一个红砖砌成的沿海度假综合体,坐落在这个地方。由弗兰克和杰斯-肯尼特拥有,他们在1968年将房屋捐赠给老年护理使用。2016年,这栋3层24个单元的建筑被私人出售,拆除并细分为六个独立的地段。
Originally a red brick coastal holiday complex sat on this site. Owned by Frank and Jess Kennett who donated the home for aged care use in 1968. In 2016 the 3 storey, 24 unit building was privately sold, demolished and subdivided into six seperate lots.







策划该地块的戏剧性是设计的一个重要方面。在依偎在海边村庄的同时,编辑在悬崖盆地中的景观和体验,并阻挡当地一些不太有吸引力的方面。我们希望住宅除了被直接的花园包围外,还能看到外面惊人的自然环境。房子背对着东面的邻居。在高处占主导地位,并建在其最大的后方。通过转身,我们把它完全挡在了内部体验之外,与其余三个立面的开放性形成对比。
Curating the drama of the site was an important aspect of the design. Editing the view and experience of being in the escarpment basin while nestling into the beachside village and blocking some of the less attractive aspects of the locale. We wanted the home to be surrounded by direct garden in addition to the amazing natural environment beyond. The house turns its back to the easterly neighbour. Dominating on the high side and built to its max setback. By turning our back we blocked it out entirely from the internal experience contrasted against the openness of the remaining three elevations.

这种转身的行为创造了一堵脊柱墙,感觉上是这一层唯一的墙。它的设计也平衡了对这个环境的开放,但也创造了对当地停车场和大量人流和车流的庇护。这一点是通过两层的实心栏杆和精心挑选的楼层来实现的。一楼阳台的设计来自于阻挡汽车头灯、客户的隐私、编辑悬崖的景色、抵制 "廉价的盒子 "和使 "帽子 "感觉来自于一个大块的雕塑,这个简单的举动是该项目雕塑性质的组成部分。
This act of turnings ones back created a spine wall which feels like the only wall on this level. Its design also balances opening to this environment but also creating refuge from the local parking lots and the high foot and vehicle traffic. This is done with the solid balustrade on both levels and careful sited floor levels. The first floor balcony design came from an amalgamation of blocking car headlights, privacy of the clients, editing the views of the escarpment, resisting an ‘cheap box’ and making the ‘hat’ feel sculpted from a mass, a simple move that was integral to the sculpted nature of the project.


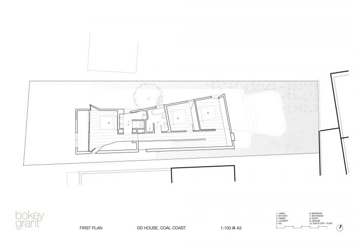
这座房子在空间设计上有意采取了不同的方法。楼上的卧室和浴室空间是有目的的,更多的是内省的空间,有较小的窗户,编辑了外面的景色,保持了成本的下降,但保存了景色,所以它不会被视为理所当然。楼下的空间更加开阔,旨在让人们分享和享受。楼下被设计成一个进化的开放空间,这些空间围绕着被花园包围的中央厨房旋转。厨房的中央单元有目的地划分了空间,允许天花板和地板继续不被打断,同时划分了空间,平衡了封闭的感觉和视野及隐私。
The house has an intentionally different approach to the design of space. Upstairs the bedrooms and bathroom spaces are purposefully more introspective spaces having smaller windows with edited views out kept costs down, but saves the view so its not taken for granted. Downstairs, the openings are more expansive and designed to be shared and enjoyed. Downstairs is designed as an evolved open plan, the spaces pivot around the central kitchen bound by gardens. The Kitchens central unit divides the space purposefully allowing the ceiling and floor to continue un interrupted while dividing the space balancing the feeling of containment against views and privacy.











Architects: Bokey Grant
Area : 240 m²
Year : 2022
Photographs :Clinton Weaver
Manufacturers : Fritz Hansen, Artek, Brodware, Dulux, Fibonacci Stone, Fisher & Paykel, GUBI, INAX, Jardan, TOVO Lighting, Thonet, FLOS, Nocturnal Lighting, Valerie objects
Structural Engineer : ROC Consulting Engineers
Builder : Rise Architectural Builders
City : Coledale
Country : Australia