近年来,乡村越来越成为人们讨论的话题。从城市规划和土地使用分区来看,有一种混合使用结构的模糊性,经常徘徊在法规的边缘。它带来了许多混乱、粗糙但自成一体的微型空间模式。在朱田,我们试图通过几个项目来探索如何使农业遗存留下的结构再生。德兴米厂,建于1942年,是台湾南部屏东农村地区的粮食局。曾经是储存大米的地方,也是孩子们玩耍的地方,它一直是大家心目中的客家房子(Huo fáng)。
The countryside has increasingly been the topic of discussion in recent years. From urban planning and land use zoning, there is an ambiguity of mixed-use structure that often wanders on the edge of regulations. It has brought many chaotic, rough but self-contained miniature spatial patterns. In Zhutian, we try to explore how to regenerate the structures left by the agricultural relics through several projects. Dexing Rice Factory, built in 1942, is the grain bureau for the rural area of Pingtung in southern Taiwan. Once a place for rice storage and for children to play and it has remained the Hakka house (Huo fáng) in everyone's mind.





居住和商业混合的房子--以 "旧 "为概念的起源,我们重新组织了现有的木结构火车站前的私人仓库建筑和景观田。我们的设计保留了古老的结构,并探索了正在消失的传统客家建筑类型(Huo fáng)。我们与当地的合作伙伴一起思考、设计并紧密合作。在实践中,通过当地人常用的材料和建筑方法,熟悉的记忆被重新配置和延续;屏东的长期高温和每年7、8月的潮湿雨天是我们寻找可能的建筑形式的重要考虑因素,也是一个能在空间上反映当代生活方式的建筑。我们试图通过物质性找到一种共生的对话和交流,在混合住宅的质地上,台湾人称为Tòu tiān cuò的建筑类型,以及铁制仓库。以朱田镇为基地的居住空间,创造了一个属于南方的新的邻里关系。
A mixed house of residence and business - Taking "old" as the origin of the concept, we reorganized the private warehouse buildings and landscape fields in front of the existing wooden structure train station. Our design retains the old structures and explores the disappearing traditional Hakka building typology (Huo fáng). We think, design, and work closely together with local partners. In practice, through the materials and construction methods commonly used by the local people, the familiarity of memory is reconfigured and perpetuated; the long-term heat of Pingtung and the humid rainy days in July and August each year were important considerations to find out possible architectural forms and one that would spatially reflect the contemporary lifestyle. We try to find a symbiotic dialogue and exchange through materiality, on the texture of the mixed house, the building type known as Tòu tiān cuò by the Taiwanese people, and the iron warehouse. Taking Zhutian Township as the base for the settlement space, created a new neighborhood relationship belonging to the south.


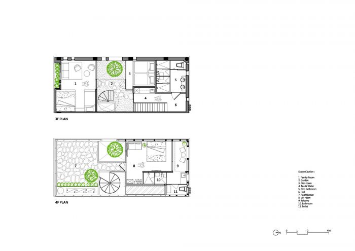
51空--德宿舍的前身是粮食局,它也是德兴米厂创始人张德才先生的原家。在张氏三代之后,它成为朱田第一个提供游客住宿的场所。Tòu tiān cuò的建筑类型是农村居民区中常见的居住空间。这里曾经是德兴米厂的仓库旁边。该行业衰落后,仓库建筑和粮食局被分割开来,由不同的地主独立经营。过去,老粮局也被租给了外来人员。2018年,当我们和张家姐妹讨论如何呈现粮食局的热闹景象时,这成了我们思考的主要话题。
51 Voids - The predecessor of De Hostel was the Grain Bureau, it was also the original family home of Mr. Zhang De Cai, the founder of Dexing Rice Factory. After the third generation of Zhang sisters, it became the first site in Zhutian to provide visitor accommodation. The building type of Tòu tiān cuò is a common living space in rural settlements. This used to be next to the warehouse of Dexing Rice Factory. After the decline of the industry, the warehouse buildings and the grain bureau were divided and were made independent of different landlords. The old grain bureau was also rented out to outsiders in the past. In 2018, when we were discussing with the Zhang sisters how to present the lively scenery at the grain bureau, this became the main topic of thinking.

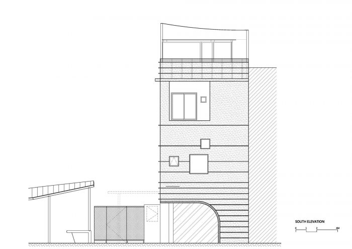
山形屋顶桁架的旧桁架支座被保留在现有建筑的外墙上,"空隙 "作为旧屋顶桁架木梁的一部分被有序地排列在加固的砖墙上,嵌入砖墙中。新的外墙保留了旧的木梁空隙,并重新创造了51个具有不同功能的空隙,如;窗洞、风洞、光洞、植物洞、记忆空隙、鸟类可以生活的小空隙等。新的建筑表皮是手工制作的,通过传统的洗石方法来表达,墙上的红色小石头感觉像米粒。由于土地产权的划分,切开了一个口子。一楼的宿舍入口退缩,形成居民的前院,街道空间也可以延伸,成为一个内部的半户外空间。一楼的私人区域在周末对公众半开放,形成一个小型的聚会空间。
The old truss footholds of the mountain-shaped roof trusses were left on the outer wall of the existing building, and the ‘voids’ were arranged in an orderly manner on the reinforced brickwork as part of the old roof truss wooden beams, embedded into the brick wall. The new exterior wall retains the old wooden beam voids and recreates 51 voids with different functions such as; window openings, wind openings, light openings, plant openings, memory voids, small voids in that birds can live, etc. The new building skin is hand-made and expressed through the traditional stone washing method and the small red stones on the wall feel like rice grains. Due to the division of land property rights, an opening was cut. The entrance of the hostel on the ground floor retreats to form a resident’s front yard and the street space can also be extended to make an internal semi-outdoor space. The private area on the ground floor is semi-open to the public on weekends creating a small gathering space.



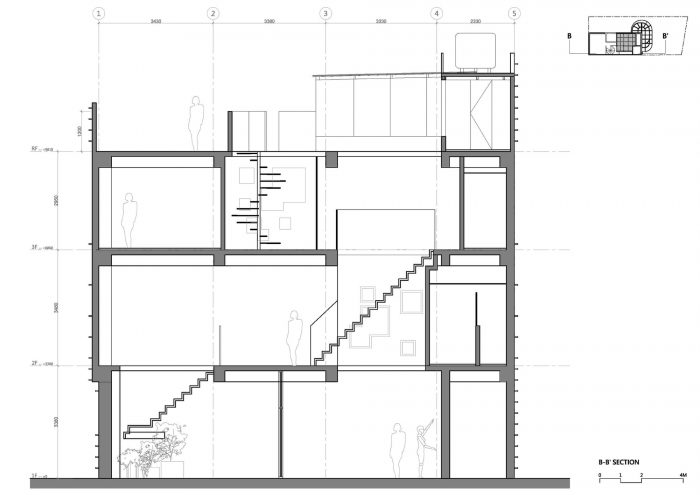
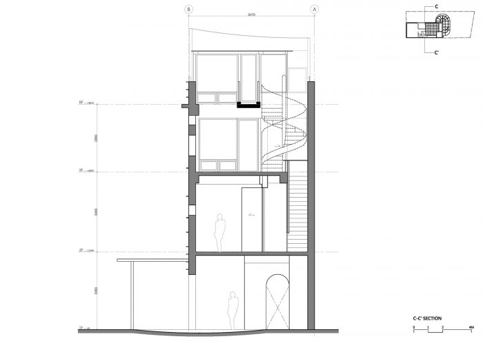
中庭的水池是一条视觉线,引导人们沿着其边缘走向建筑的入口。水源来自丰富的地下水层,在一个阳光明媚的下午,可以调整小气候。没有水的时候,这个小广场可以用来举办活动。玻璃屋顶由砖红色的火山石制成,以达到遮阳的效果。阳光透过石头的缝隙照射,光影洒在水磨石地板上。二楼是六张床的背包房、浴室区和休息室。每张独立的床都有自己的存储和衣服空间。在三楼,中间的花园作为两个家庭的房间的焦点。从这里沿着螺旋形的楼梯上到顶层的花园和主人的房间。垂直循环形成了一个从底部到顶部的自然风洞,这是一种低技术含量的建筑方法。51年后的今天,通过保留古老的氛围,重新想象和创造新的邻里关系。让大家族的成员在建筑上有一个可以返回的地方,有机会再次见面。
The pool in the atrium is a visual line that guides people along its edge toward the entrance of the building. The water source is drawn from the abundant groundwater layer and the microclimate can be adjusted on a sunny afternoon. When there is no water, the small square can be used for events and activities. The glass roof is made of brick-red volcanic stones to achieve a shading effect. The sun shines through the stone gaps and the light and shadow are sprinkled on the terrazzo floor. The second floor is a six-bed backpack room, bathroom area, and lounge. Each independent bed has its own storage and clothes space. On the third floor, the garden in the middle serves as the focal point of the two-family rooms. From here follow the spiral staircase up to the top garden and the owner's room. The vertical circulation forms a natural wind tunnel from the bottom to the top, a low-tech construction method. Now 51 years later, by preserving the old atmosphere and reimagining and recreating the new neighborhood relationship. Let the members of the extended family have a place to return to and the opportunity to meet again in the architecture.



新的邻里关系和半公共庭院建筑--我们问建筑是否可以改善公共环境。在家族第三代和第四代接手经营后,旅舍通过底层的开放空间建造了一个袖珍花园,在周末连接到竹田怡园公园的市场。这个开放空间引导游客进入私人空间,住在旅舍的客人通过活动共同参与。它可以在白天和晚上租给各种活动,也将成为这个大家庭的家。时间是记忆的部分。所有的旧东西都应该被仔细考虑、对待和保存。这种对朱田镇旧工业建筑的再利用和再设计将继续发展,旧的边界将逐渐形成新的院落住房空间。
New Neighborhood Relations and Semi-Public Courtyard Architecture - We ask whether architecture can improve the public environment. After the third and fourth generations of the family took over the operation, the hostel built a pocket garden through the open space on the ground floor, connecting to the market in Zhutian Yiyuan park on weekends. This opening guides visitors into the private space and the guests staying at the hostel to participate together through activities. It is available to rent for various events and activities both day and night and will also become the home of the big family. Time is the section of memory. All old things should be considered, treated, and preserved in a careful manner. This reuse and redesign of the old industrial buildings in Zhutian Township will continue to evolve, and the old boundary will gradually shape the new courtyard housing space.
































Architects: Studio APL
Area : 288 m²
Year : 2021
Photographs :Yi-Hsien Lee and Associates, Ciao,Pie!, Mai Studio
Structural Engineers : Origin Engineering Consultants Corporation
Main Designer : Pei-An Li
Engineering Management : Pei-Chen Li
Designers : Hui-Chi Chen, Yu-Feng Sung
City:Taiwan
Country:China