De Jakoba为阿姆斯特丹诺德区的Overhoeks社区带来了新的活力。在 "IJ的曼哈顿",也就是中央车站对面的IJ港口前的新城区,De Jakoba介绍了两个新的社会住房综合体之一。利用形式和智能建筑方法,我们实现了一个强大而有质量的建筑:一个可识别的地方,人们自豪地生活,并愿意照顾。
De Jakoba brings new energy to the Overhoeks neighborhood in Amsterdam-Noord. In 'Manhattan at the IJ', as the new city district which fronts the IJ harbor opposite Central Station is also referred to, De Jakoba introduces one of two new social housing complexes. Making use of form and smart building methods, we realized a powerful and qualitative building: a recognizable place where people live with pride and are willing to take care of.




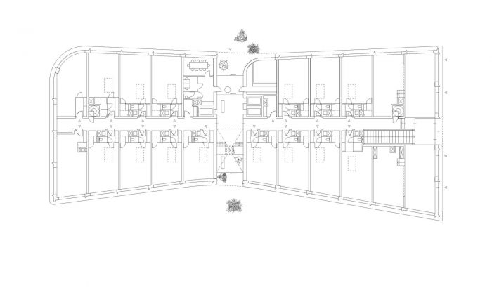
在Overhoeks地区的正式城市规划中--其 "校园式 "的环境相当不符合阿姆斯特丹的要求--我们对既定规则进行了自己的解释。该计划规定了建筑物的后退,以尽量减少从街道层面的体积。我们利用这一条件,将De Jakoba的整个体量向内弯曲,让体量交错并逐渐向上弯曲,不仅在顶层,而且在其整个高度和长度上。形成的四个不同的外墙和波浪形的阳台确保了对周围地区的可识别的外观。
Within the formal urban plan for the Overhoeks area – which with its ‘campus-like’ setting is rather un-Amsterdam – we gave our own interpretation of the set rules. The plan specified setbacks for the buildings to minimize the volumes from street level. We took advantage of this condition by bending the entire volume of De Jakoba inwards, allowing the volume to stagger and gradually curve upwards not only on the top floors but over its entire height and length. The four different facades and wavy balconies that are formed ensure a recognizable appearance to the surrounding area.


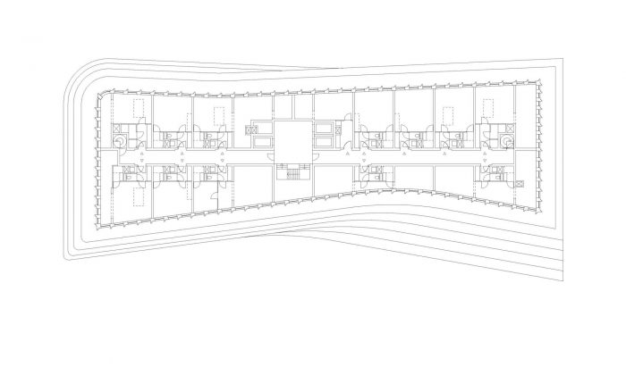
由于建筑的雕塑形状,135套单间公寓中的每一套都有独特的布局。在建筑的中心,最窄的部分是连接公共花园和街道的入口通道。随着建筑向内弯曲,它拥抱了花园并创造了一种庇护感。开放的公共花园和沿Docklandsweg的底层高大的多功能空间在街道上带来了新的活力。
Thanks to the sculptural shape of the building, each of the 135 studio apartments have a unique layout. At the heart, the narrowest part of the building is the entrance passage that connects the communal garden to the street. As the building curves inwards, it embraces the garden and creates a sense of shelter. The open communal garden and high multifunctional spaces on the ground floor along Docklandsweg bring new vibrancy at street level.

我们设计了入口,以创造一种抵达感。入口处像一个玻璃空洞一样延伸到建筑的整个高度,从所有楼层都能看到集体花园和IJ沿线的新城区的广阔视野。
We designed the entrance to create a sense of arrival. The entrance extends like a glass void over the full height of the building and provides wide views of the collective garden and the new urban district along the IJ from all floors.


通过选择预制的外墙元素,De Jakoba在很短的时间内实现了,这不仅使建筑成本大大降低,而且使居民能够更早地搬进他们的家。
By opting for prefabricated facade elements, De Jakoba was realized in a very short time frame, which not only allowed construction costs to be greatly reduced but also enabled residents to move into their homes much sooner.

清晰的建筑是通过使用单一的材料来实现的:浅绿色混凝土。柔和的绿色材料的水平带和垂直鳍之间的线条游戏使德雅科巴与周围的建筑区分开来。由于混凝土板的薄边可以一气呵成,我们能够方便地在外墙上添加有吸引力的细节。粉末涂层的银金色窗框和栏杆丰富了物化的内容,增加了温暖的光辉。巧妙的弧形柱子在一天中创造了一个变化的光影游戏。
Clear architecture is enforced by the use of a single material: light green concrete. A play of lines between the horizontal bands and vertical fins of soft green material distinguishes De Jakoba from the surrounding buildings. As the thin edges of the concrete panels could be polished in one stroke, we were able to conveniently add attractive detailing to the facades. The materialization is enriched by powder-coated silver-gold window frames and balustrades, adding a warm glow. The subtly curved pillars create a changing play of light and shadow throughout the day.













Architects: Studioninedots
Area : 10000 m²
Year : 2022
Photographs :Peter Tijhuis
Design Team : Albert Herder, Vincent van der Klei, Arie van der Neut, Metin van Zijl, Stijn de Jongh, Erik Hoogendam, Mai Bogø, Ania Bozek
Collaborators : Dura Vermeer, Buro Sant en Co., Strackee, Nieman Raadgevende Ingenieurs, VDNDP
City : Amsterdam
Country : The Netherlands