De Nieuwe Molens "建筑群最初是一家面粉厂,于19世纪末投入生产。从那时起,该建筑发生了重大变化。建筑物的体积实际上增加了一倍。增加了筒仓,并增加了磨制谷物的建筑。
The 'De Nieuwe Molens' building complex originally was a flour factory that came into production at the end of the 19th century. Since then, the building has changed significantly. The building volume was literally doubled. Silos were added and the building, where the grain was milled, was added.






在20世纪70年代,通过增加四个现代粮仓,对该建筑进行了最后的重大改变。在20世纪末,该建筑失去了其作为面粉厂的功能。剩下的是一个由不同时间层的建筑组成的具有不同功能的建筑群。部分具有特殊纪念意义的建筑被视为工业遗产。
In the 1970s, the last major changes were made to the building by adding four modern grain silos. At the end of the 20th century, the building lost its function as a flour factory. What remained was an ensemble of buildings from different time layers with different functions. Part of the building of special monumental value is considered industrial heritage.



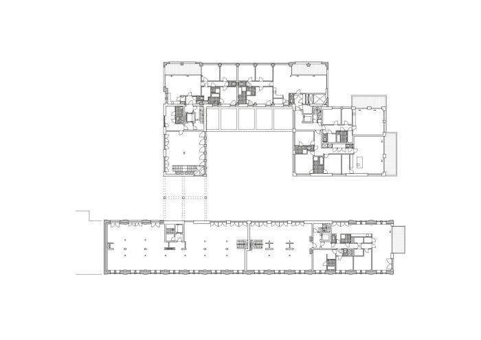
Rapp+Rapp制定了将该建筑群重新开发为住宅楼的计划。随着时间的推移,建筑结构不断扩大,被清理出来,并提供了一个内院,各种现有的建筑部分被组合在一起。在西侧,增加了一个较低的新建筑来封闭庭院。建筑群现有元素的性质和结构高度不同,需要采用不同的方法进行重建。Gasmeterlaan上的纪念性仓库被修复,并部分地提供了一个新的外墙。
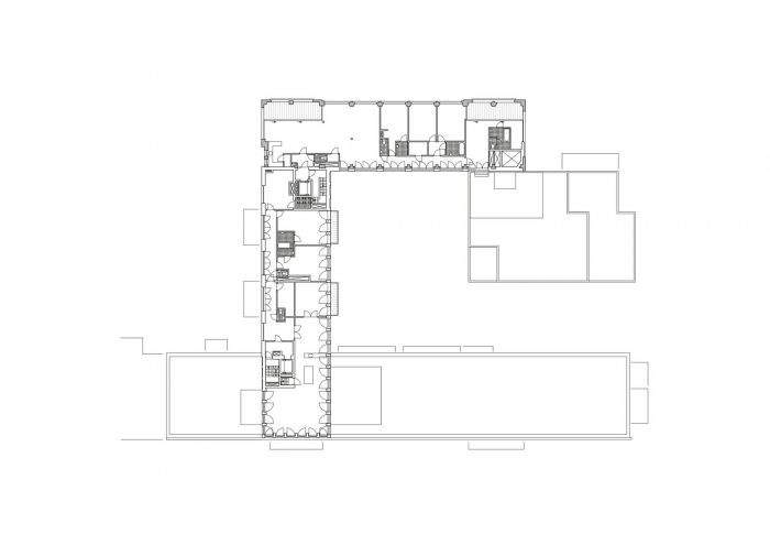
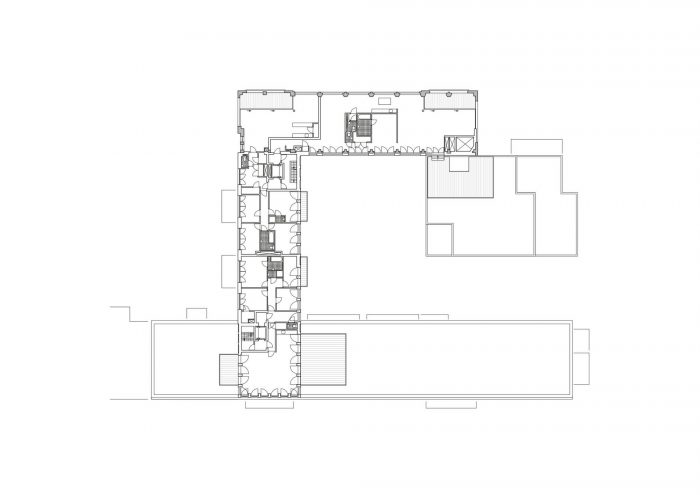
Rapp+Rapp made the plans for the redevelopment of the complex into a residential building. The building structure, which had grown over time, was cleaned up and provided with an inner courtyard around which various existing building sections were grouped. On the west side, a lower new building was added to close the courtyard. The highly different nature and structure of the existing elements of the building complex each required a different approach to redevelopment. The monumental warehouse on the Gasmeterlaan was restored and partly provided with a new facade.

南侧的Molengebouw有大的外墙开口,被重新开发为一个阁楼,封闭的筒仓建筑被提供了外墙开口,使其成为一个新的目的地。新建筑被开发为混凝土结构,在西南侧有宽敞的室外空间。
The Molengebouw on the south side with its large facade openings was redeveloped as a loft building and the closed silo building was provided with facade openings to enable living as a new destination. The new building was developed as a concrete structure with generous outdoor spaces on the southwest side.

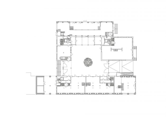
在建筑体量的东西两侧的大型开口提供了通往建筑庭院的通道。这个院子被变成了一个明亮而亲密的空间,住房的入口就位于这里。面粉厂筒仓的平面图在院子的铺面中得到了说明。
Large openings in the east and west side of the building volume provide access to the courtyard of the building. This courtyard is turned into a light and intimate space where the entrances to the housing are situated. The floorplan of the silos of the flour factory is illustrated in the pavement of the courtyard.

















Architects: Rapp+Rapp
Area : 13900 m²
Year : 2020
Photographs :Kim Zwarts
Manufacturers : Engels, Orona Pecres, SPIE, Vereyen Beton
Lead Architect : Christian Rapp
Structural Engineer : Raadgevend Ingenieursbureau Nico Terryn Bvba
MEP & HVAC Consultant : EDV Engineering Bvba
Construction Engineer : D2S International
Project Manager : Tondelier Development N.V.
Responsible Partner : Harrie van der Meijs,
Project Team : Gijs Adriaansens, Remco Bangma, Christina Behrendt, Krijn Geevers, Eric Hoogendam, Jos van der Linde
Client : Tondelier Development N.V.
Principal Use : 9 000 m2 housing, 2 000 m2 commercial space, 2 900 m2 parking
General Contractor : Louis De Waele
Collaborating Architects : Snoeck & Partners nv
City : Ghent
Country : Belgium