自然之阶。De Utrecht "是一个自然墓地,是位于Hilvarenbeek下面的 "De Utrecht "庄园的一部分。它是导演Joyce Sengers的倡议。她是一名景观设计师,15年前在英国发现了自然埋葬的现象。这非常吸引她,在英国自然墓地工作后,她也想让这种埋葬方式在荷兰成为可能。埋葬在大自然中,与生命的自然循环相联系。任何埋葬在自然墓地的人都表达了这种团结,并为自然循环做出了贡献。
The Natural Step. 'De Utrecht' is a natural cemetery that is part of the 'De Utrecht' estate located just below Hilvarenbeek. It is an initiative of director Joyce Sengers. She is a landscape architect and discovered the phenomenon of natural burial in England over fifteen years ago. This appealed to her so much that, after working at British natural cemeteries, she also wanted to make this way of burial possible in the Netherlands. Burial in nature connects to the natural cycle of life. Anyone who is buried in a natural cemetery expresses this solidarity and contributes to the natural cycle of recycling.



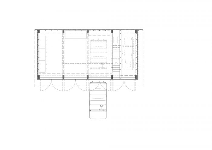
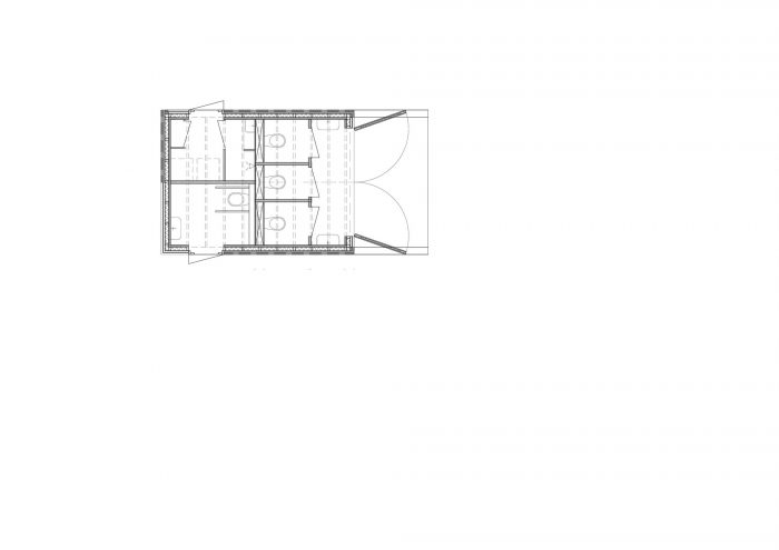
小村庄。三个亭子现在已经实现了合奏,围绕着在Scheidijk路上创建的小广场,直接位于Hilvarenbeek和Reusel-de Mierden市的边界。一个小型村庄:温暖、清澈、宜人。一个用于储存和停放各种车辆的 "田间谷仓",一个带有公共厕所和员工淋浴间的 "清洗谷仓";以及用于提供自然葬信息和解释的 "信息谷仓",亲属们可以在这里会面。对于葬礼仪式,他们可以选择在墓地本身或在目前的一个露天自然剧院中使用大篷布。
Little Village. Three pavilions have now been realized as an ensemble around a little square created on the Scheidijk path, directly on the border between the municipalities of Hilvarenbeek and Reusel-de Mierden. A mini village: warm, clear, and pleasant. A ‘field barn’ for storage and parking of various vehicles, a ‘washing barn’ with public toilets and a shower room for the employees; and the ‘information barn’ for information and explanations about natural burials and where relatives can meet. For the funeral ceremony, they can choose a big tarp on the cemetery itself or in one of the present open-air nature theaters.


典型的当地谷仓建筑。建筑物的设计对周围地区的传统农业世界给予了友好的点头。谷仓有不同的标志,都有不同的不对称的屋顶结构。这些建筑立即被大自然或多或少地接受和接纳了。这一点的生动证明就是蝙蝠。在建筑建成的头几个月,它们已经搬进了田间谷仓。
Typical local barn architecture. The design of the buildings gives a friendly nod to the traditional agricultural world of the surrounding area. The barns have different signatures and all have a different asymmetrical roof construction. The buildings were immediately more or less accepted and taken in by nature. The living proof of this is the bats. In the first few months that the buildings were built, they already moved into the field barn.


2020年1月的风暴。亭子是用落叶松树建成的:乌特勒支的针叶树,在2020年春季的暴风雨中倒下。木板是在现场从原木上锯下来的。它们是由位于拐角处的木材贸易公司van Hal非常耐心地规划的。当地和圆形,完全符合自然墓地的理念。
January storm 2020. The pavilions are built with larch trees: conifers of the Utrecht that fell in the spring storm of 2020. Planks were sawn from the logs on location. They were planned with great patience by timber trade van Hal, located just around the corner. Local and circular, entirely in accordance with the philosophy of the natural cemetery.


小广场一侧的外墙用不同宽度的垂直落叶松木板覆盖。而屋顶和后方的立面则完全由2米长的半圆形、粗略剥落的、直径为80毫米的方形梁覆盖,这些梁以随机的方式排列,与屋脊或屋顶基线平行。太阳能电池板被严密地隐藏在横梁之间的屋顶上。
The facades on the side of the little square are covered with vertical larch planks of different widths. The roof and rear facade, on the other hand, are completely clad with 2 meters long, halved round, roughly peeled, squared beams with a diameter of 80 mm, which are arranged in a random pattern, parallel to the ridge or roof baseline. Solar panels are tightly concealed in the roof between the beams.


清洗棚的部分内墙和信息棚的所有内墙都有一层粘土。天花板是由同样来自周围森林的Thuja木材包覆的。如果你仔细观察,你可以看到中间有羊毛。这一层通过阻尼声音提供了声学舒适性。一个在庄园里放羊的牧羊人提供了这些羊毛。当然,尽可能地在当地采购建筑材料是非常好的。
Part of the inner walls of the washing shed and all inner walls of the information shed is provided with a layer of clay. The ceilings are clad in thuja wood, also sourced from the surrounding forest. If you look closely, you can see wool in between. This layer offers acoustic comfort by damping sound. A shepherd who tends the moors on the estate with his sheep has supplied the wool. It is, of course, fantastic to source your building materials locally as much as possible.”












Architects: architecten|en|en
Area : 135 m²
Year : 2022
Photographs :BASE Photography
Manufacturers : Finti, Gutex, H. Oude Hengel, Houthandel van Dal
Lead Architect : Joost Verbeek
Interior Design : Clip interieurarchitectuur
Structure Engineers : Vander Weide van Bragt
Main Contractor : De Vijfduimer Timmerwerken
Engineering & Construction Supervisor : Rob van den Broek
Field Barn Area : 50 m2
Info Barn Area : 65 m2
Washing Barn Area : 20 m2
City : Lage Mierde
Country : The Netherlands