阿姆斯特丹的De Wereldburger小学正在赋予其建筑新的生命。建筑师Gianni Cito说:"这所学校于1965年开学,决定不建造新的建筑,而是重新利用旧的混凝土框架,并用木质框架作为补充。他设计了一个圆形的、接近能源中立的建筑,感觉就像一个学习和玩耍的宫殿。
Primary school De Wereldburger in Amsterdam is giving its building a new lease of life. ‘The school, which opened in 1965, decided not to construct a new building but to reuse the old concrete frame and supplement it with a wooden frame,’ says architect Gianni Cito. He designed a circular and near-energy neutral building that feels like a palace for learning and playing.




现有建筑多年来一直被忽视。此外,学校周围竖起了高高的围墙,这使得该地区变得不友好和不安全;孩子们发现他们实际上是被关在铁栅栏里。经与阿姆斯特丹市协商,我们拆除了围栏。现在,一条新的、宽阔的人行道将建筑与公共空间连接起来。
The existing building had been neglected over the years. Also, a high fence had been erected around the school, which made the area unfriendly and unsafe; the children literally found themselves behind bars. In consultation with the City of Amsterdam, we removed the fences. A new, wide pavement now connects the building with the public space.



学校是社区的一部分,与公共公园完美地联系在一起。被重新利用的不仅仅是老学校的结构,新引进的建筑材料,如地板、楼梯、天花板、门把手和洗脸盆等也来自其他建筑。这个学校建筑是有生命的,让孩子们意识到材料的来源。
The school is part of the neighbourhood and links up with the public park perfectly. It’s not only the old school structure that has been reused; newly introduced building materials such as floorboards, stairs, ceilings, door handles, and washbasins also originate from other buildings. This school building is alive and makes the children aware of the source of materials.

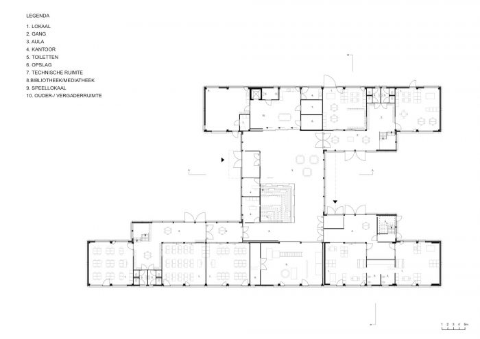
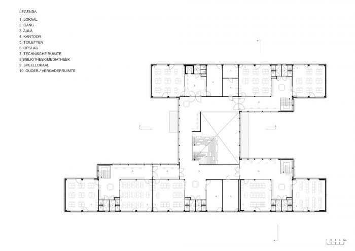
一个学习和玩耍的宫殿。新教学楼的空间是开放的、有机的;每一个空间都可以用来学习、玩耍,或者只是休息。中央大厅提供了文字上和形象上的游戏空间:在大楼梯上,在楼梯下,在楼梯前,以及在楼道里。
A Palace for Learning and Playing. The new school building’s spaces are open and organic; every one of them can be used for learning, playing, or just to take a break. The central hall offers literal and figurative room to play in: on the large stairs, under the stairs, in front of them, and on the landings.

每个年级都有自己的楼梯,每个老师都有空间让学生单独或分组在教室、教室之间、窗户边或走廊上工作。大一点的孩子在楼上,小一点的孩子可以直接走出门,进入封闭的公园。
‘Each age group has its own stairs and there’s room for every teacher to put pupils to work individually or in groups either in the classroom, between the classrooms, by the windows, or in the corridors. The older children are upstairs, the smaller ones can walk right out the door, into the enclosed park.’









Architects: Moke Architecten
Area: 3000 m²
Year: 2021
Photographs: Thijs Wolzak
Manufacturers: Acosorb, MOSO, FSB, Forbo, Schuco
Environmental Engineers: B&I Eric Bouten
Landscape Architects: Landlab
Contractor: Aannemingsmaatschappij Friso Almere B.V.
Project Leader:Patrick de Weerd
Intern:Martina Penati
Structural Engineers:H. Kuipers, Pieters Bouwtechniek
City:Amterdam
Country:The Netherlands