该项目发生在Imsouane村。它是摩洛哥南部索维拉和阿加迪尔之间的一个小渔村。这个村庄是世界各地冲浪者的一个著名地点。他们称它为 "神奇的海湾"。该项目是一家精品酒店,位于神奇海湾前的悬崖上。除了在前线,该建筑还高出海平面三十米之多。
The project takes place in the village of Imsouane. It is a small fishing village between Essaouira and Agadir in southern Morocco. This village is a well‐known spot for surfers around the world. They call it the “magic bay”. The project is a boutique hotel that is on a cliff in front of the magic bay. In addition to being on the front line, the building is also raised by a good thirty meters above sea level.



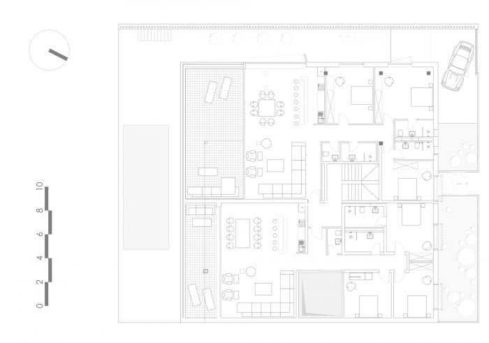
沿着通往Imsouane的国家通道,我们可以观察到这些农田被米黄色的石灰石制成的围墙简单地存放在上面。这是项目概念的触发点,即一个地层的工作,一个包含3个低层的第一容积,被一个包含最后一个高层的白色容积所覆盖。该项目的特点是,它是两个相邻的建筑,是一个有两个可利用的地下室的R+1。从街上看,该建筑只有2层,而从海边看,有4层可以使用。
Along the national access roads to Imsouane, we can observe these agricultural lands surrounded by a fence wall made from beigeish limestone simply stored on top of each other. This was the trigger for the concept of the project, namely a work of stratum, a first volumetry containing the 3 lower levels, overhung by a whitish volumetry containing the last upper floor. The particularity of the project is that it is 2 adjoining buildings and that it is an R+1 with 2 exploitable basements. From the street, the building looks like only 2 levels, while from the seaside, there are 4 usable levels.


该项目的难度在于挖掘石灰岩悬崖,使建筑与它的2个地下室向海开放。整个建筑的结构是由混凝土制成的。因为有2栋相邻的建筑,某些东西是共享的,如楼梯间,或某些服务,如瑜伽室,大厅,或大楼的休息室。由于这种集合,我们能够创建一个天窗,从屋顶到最后的地下室穿越整个建筑,为不同的住房单元带来自然的顶光和自然通风。
The difficulty of the project was to dig the limestone cliff, to sit the building with its 2 basements open to the sea. The entire structure of the building was made of concrete. Because of the 2 adjoining buildings, certain things have been shared, such as the stairwell, or certain services such as the yoga room, the lobby, or the lounge of the building. Thanks to this pooling, we were able to create a skylight that crosses the building from the rooftop to the last basement, to bring natural overhead light and natural ventilation to the different housing units.


主要的通道来自于底层,也就是从底层开始的第三层。20个住房单元位于建筑的3个上层。所有这些单元都能看到 "神奇海湾 "的景色。该项目的原则是创建一个有多个住房单元的建筑,这些单元都面向大海。大楼提供了通往屋顶的通道,有一个户外酒吧,一个瑜伽区,和一个欣赏地平线的休息室。该建筑还提供通往最后一个地下室的公共区域的通道,其中有厨房、餐饮区、瑜伽室、桑拿和土耳其浴室、休息室和环绕无边泳池的主露台。
The main access is from the ground floor which is the 3rd level from the bottom. The 20 housing units are located in the 3 upper levels of the building. All these units have a view of the “magic bay”. The principle of the project was to create a building with several housing units all facing the sea. The building offers access to the rooftop with an outdoor bar, a yoga area, and a lounge to appreciate the horizon. The building also offers access to the common areas of the last basement, in which there are the kitchens, the catering area, a yoga room, a sauna and Hammam, a lounge, and the main terrace which surrounds the infinity pool.

使用的材料是相当不同的。所有的潮湿房间、厨房和浴室都使用了Zellige beldi涂料,但卧室、更衣室和某些走廊也使用了这种涂料。另外,楼板没有完全被假天花板覆盖,以留下明显的原始混凝土模板的纹理。建筑的所有木制品都是由直接来自巴厘岛的异国木材制成。游泳池也是用来自巴厘岛的绿色石头包覆。除了用beldi zellige覆盖的地板外,建筑的其余部分都用3米乘1.5米的陶器瓷砖覆盖。
The materials used are quite different. The Zellige beldi coating was used for all the wet rooms, kitchen, and bathroom, but also for the bedrooms, dressing room, and certain hallways. Also, the slabs were not entirely covered by a false ceiling to leave apparent the texture of the raw concrete formwork. All the woodwork of the building was made of exotic wood straight from Bali. The swimming pool has also been clad in green stone from Bali. Apart from the floors covered with beldi zellige, the rest of the building was covered with 3m by 1.5m earthenware tiles.



























Architects: Studio BO
Year : 2021
Photographs :Alessio Mei
Manufacturers : Focus
Lead Architect : Omar Benmoussa
City : Casablanca
Country : Morocco