中国美术学院(CAA)在杭州有两个校区。一个在市中心,靠近西湖,一个更大的新校区在郊区。在新校区,建筑师王澍的身影无处不在:大部分的建筑都是由他设计的。当我们开始这项工作时,他还没有获得2012年的普利兹克奖。在我们工作的早期阶段,甚至在今天,我们从他和他的建筑师妻子吕文玉那里得到的帮助,曾经并将继续是至关重要的。
The Chinese Academy of Art (CAA) in Hangzhou has two campuses. One is in the city center, near West Lake, and a new larger campus is in the outskirts. The presence of the architect Wang Shu is ubiquitous on the new campus: most of its buildings were designed by him. When we started on this work, he had not yet received the 2012 Pritzker Prize. The help that we received from both of him and his architect wife Lu Wenyu during the early stages of our work – and even today -, were and continue to be fundamental.


CAA巨大的收藏品和它最近从包豪斯学校获得的一大批原件,促使我们产生了为永久收藏品以及其他作品和临时展览建立博物馆的想法。除了一些具体的特征外,我们得到了一个典型的博物馆简介。巨大的校园已经几乎被占满。只有东南边的一块地方还可以使用,在这个不断扩大的地区的两条主要道路的交叉口。可用的土地呈三角形,城市和环境性质的规划限制规定了建筑可能的占地面积和体积。
The huge CAA collection and its recent acquisition of a large set of originals items from the Bauhaus School prompted the idea of a museum for the permanent collection along with other works and temporary exhibitions. We were given a characteristic museum brief, apart from some specific features. The huge campus was already nearly fully occupied. There was only one area still available on the south-eastern edge, at the intersection of two major roads in this expanding area. The available land has a triangular shape, with the planning restrictions of an urban and environmental nature that defined the building’s possible footprint and volume.

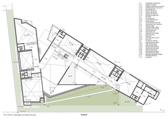
内部布局力求促进游客的顺利流动和空间的灵活使用。作为一个艺术学院,它的主要目的将是展示学生和教师的不同活动、语言和技术的成果,以及接待客人。地下室计划容纳技术区、档案室、服务区和一个咖啡馆,直接连接到建筑中心的一个三角形庭院。在它上面,底层包括入口、公共和休息区、分配、临时展厅和礼堂。一个夹层允许流通,并有一个斜坡连接到朝东的体量上方的屋顶花园。
The internal layout seeks to facilitate smooth visitor flow and flexibility in the use of spaces. Being an art academy, its main purpose will be to display the results of different activities, languages, and techniques deployed by students and teachers, as well as to receive guests. The basement is planned to house the technical areas, archives, service areas, and a café connected directly to a triangular courtyard in the center f the building. Above it, the ground floor contains the entrance, public and rest areas, distributions, temporary exhibition halls, and auditoriums. A mezzanine level permits circulation and a ramp link to the roof garden above the east-facing volume.

这个体量的顶层是包豪斯收藏品的永久展览。行政区域、年轻艺术家的工作室和一些基础设施都在朝南的高层。来自印度的红色阿格拉砂岩将定义体量和外部包层。一些平面,特别是在三角形的体量内,将用白色大理石包覆。框架将是铝/木制的。 一个白色混凝土的独立体量,垂直于南部边界插入,将被用作公众的入口。施工将很快开始。
The top floor of this volume is for the permanent exhibition of the Bauhaus collection. The administration areas, workshops for young artists and also some of the infrastructure are on the south-facing upper floors. Red Agra sandstone from India will define the volumes and the exterior cladding. Some of the planes, especially inside the triangular volume, will be clad with white marble. The frames will be in be aluminum/wood. A free-standing volume in white concrete, inserted perpendicularly to the southern boundary, will be used as an entrance of the general public. Construction will begin shortly.
























































Architects: Carlos Castanheira, Álvaro Siza Vieira
Area : 16000 m²
Year : 2018
Photographs :Fernando Guerra | FG+SG
Consultants : GET, HDP, Paulo Fidalgo, Raul Bessa
Collaborators : Adalberto Dias, Carolina Leite, Catarina Rodrigues, Diana Vasconcelos, Elisabete Queirós, Francesca Tiri, Germano Vieira, Joana Soeiro, João Figueiredo, Jorge Santos, Nuno Campos, Pedro Afonso, Rita Ferreira, Sara Pinto, Susana Oliveira
Struture : Shentu Taunbing, Chen Yongbing
Engineering : Zhu Weiping, Yu Xiaofen, Jin Guogang, Wang Yonghong, Chen Chunji, Teng Liang
Intelligent Desing : Hangzhou Zhida Archit. Science & Technology Co.Ltd, Sun Mingliang, Sin Minjun, Zhang Shanming, He Haixia
3 D Models : Germano Vieira, Pedro Afonso
Portugal Office : CC&CB
Principal In Charge : Pedro Carvalho
Local Office : The Design Institute of Landscape & Architecture, China Academy of Art
Architecture : Liu Ke, Zhao Yaunpeng, Jiang Weihua
Structure : Shentu Taunbing, Chen Yongbing
City : Hangzhou
Country : China