新翻修的建筑是波尔图Fábrica de Cerâmica das Devesas公司订购建造的一套建筑的一部分,该公司当时将其作为仓库和各种产品的展示厅。这套建筑由3栋建筑组成:一栋较大的建筑,设计为办公室、产品仓库、商店、展厅和展示厅,正面朝向José Falcão街,气势恢宏;我们改造的建筑是大理石车间,但它也是顶层的房子;还有一栋房子属于Fábrica das Devesas的三个合伙人之一Feliciano Rodrigues da Rocha。
The newly renovated building is part of a set of constructions ordered to be built by the company Fábrica de Cerâmica das Devesas, in Porto, which functioned as a warehouse and showcase for the various products manufactured at the time by the same company. This set consists of 3 buildings: a larger one, designed for an office, product warehouse, store, exhibition hall and showcase, with an imposing facade facing Rua José Falcão; the building we renovated, which was the marble workshop, but which also worked as a house on the top floor; and a house that belonged to Feliciano Rodrigues da Rocha, one of the three partners of Fábrica das Devesas.





古老的大理石作坊位于康西卡奥街(Rua da Conceição),这栋建筑和仓库之间有一个共同的院子,作为两者之间的连接点,将何塞-法尔康街(Rua José Falcão)和康西卡奥街(Rua da Conceição)这两条垂直的街道的外墙衔接起来。尽管被列为公共利益纪念碑,但在项目开始时,整个建筑的内部已经被完全拆除,只剩下了原来建筑的外墙和屋顶(已经很糟糕)。
The old marble workshop is located at Rua da Conceição, with a common courtyard to this building and to the warehouse, which functions as a joint between both, articulating the façades for the two streets, Rua José Falcão and Rua da Conceição, perpendicular to each other. Despite being classified as a Monument of Public Interest, the entire interior of the building was completely demolished when the project was started, with only the façades and roofs (already in bad condition) from the original construction.



不可避免的方案改造考虑到了原建筑的历史和建筑遗留问题的抵触情绪:主立面和东立面在没有任何改变的情况下得到了彻底的修复,而当时已经非常改造的南立面则在布景中获得了突出的地位,新的配色方案和圆形玻璃窗的引入,使整个布景获得了几何平衡,并重新建立了与周围环境的沟通。在内部,旧石库房的精髓被保留下来:经过上坡,与原石库房的形态相似,我们迎来的是一个宽阔的公共区域,充满了自然光,揭示了内部空间的惊人高度,从街道上完全无法察觉。加强所有现有和新增建筑的结构,翻新的屋顶和顶层,以一种非常原始的方式暴露出来,有助于显示公寓入口的度量,通往顶层的方式和大型玻璃天窗的调制,让自然光进入,同时保持老建筑的工业氛围。
The inevitable programmatic transformation took into account the historical and architectural legacy of the original building that had resisted: the main and East façades were completely rehabilitated without any change, while the South façade, already very transformed at the time, gained prominence in the set, with a new color scheme and with the introduction of a round glass window that gives geometric balance to the whole set and reestablishes the communication with the surroundings. Inside, the essence of the old stone warehouse is maintained: after the uphill journey, with a similar morphology to the original, we are welcomed by a wide and extensive common area, full of natural light, which reveals the striking height of the internal space, completely imperceptible from the street. The structure that reinforces all the existing and added construction, the renovated roof and the top floor, is exposed in a very raw fashion, helping to show the metrics of the entrances to the apartments, the way up to the top floor and the modulation of the large glass skylights that let in natural light, at the same time keeping the industrial ambiance of the old building.


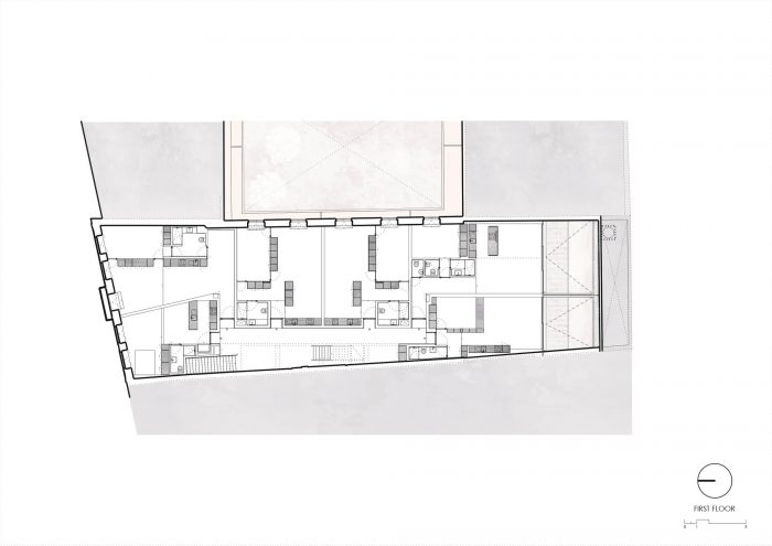
现在内部有12套公寓,从带夹层的阁楼式到两居室公寓,分布在2个主层,加上最后一个面积较小的公寓,构成了阁楼的夹层。内部的组织通过简单的体量(橱柜、厨房、浴室)的精心分布,具有整体性,如在Devesas的旧陶瓷厂的繁华活动中的仓库中填充的石块,居住空间出现的空隙是这些简单和坚实的建筑体量之间的对话的结果,中性色调,如灰色和黑色,在Riga木地板上,构成了巨大的巨大体量所在的平面。
There are now 12 apartments in the interior, from the loft type with mezzanine to two bedroom apartments, spread over 2 main floors, plus a last one with a smaller area, which constitutes the mezzanines of the lofts. Organized inside through the careful distribution of simple volumes (cabinets, kitchens, bathrooms) with a monolithic aspect, such as the stone blocks that populated the warehouse in the bustling activity of the old Ceramics Factory of Devesas, the habitable space appears as voids that result from the dialogue between these simple and solid built masses, with neutral tones, such as gray and black, over a riga wood floor that constitutes the plane where the great massive volumes rest upon.













































建筑师:Anarchlab Architecture Laboratory
面积:1008平方米
年份:2020年
摄影师:Ivo Tavares Studio
首席建筑师:Pedro Ribeiro da Silva
合作者:Fábio Peixoto, José Azevedo
城市:波尔图
国家:葡萄牙
Architects: Anarchlab, Architecture Laboratory
Area: 1008 m²
Year: 2020
Photographs:Ivo Tavares Studio
Lead Architects:Pedro Ribeiro da Silva
Colaboradores:Fábio Peixoto, José Azevedo
City:Porto
Country:Portugal