该项目占地2公顷,位于西河西新城区。目标是设计一个从学前班到高中的跨级教育综合体,包括个人发展设施,如表演中心和游泳学校。杜威学校的建筑特点体现了现代、自由的氛围,在更大的土地范围内成为一个地标。
The project encompasses an area of 2ha, located in the Tay Ho Tay New Urban Zone. The goal is to design a complex for inter-level education from preschool to high school, including personal development facilities such as a performance center and swimming school. The Dewey schools’ architectural features manifest a modern, and liberal ambiance, standing as a landmark in the wider land area.





该项目占地2公顷,位于西河西新城区。目标是设计一个从学前班到高中的跨级教育综合体,包括个人发展设施,如表演中心和游泳学校。杜威学校的建筑特点体现了现代、自由的氛围,在更大的土地范围内成为一个地标。
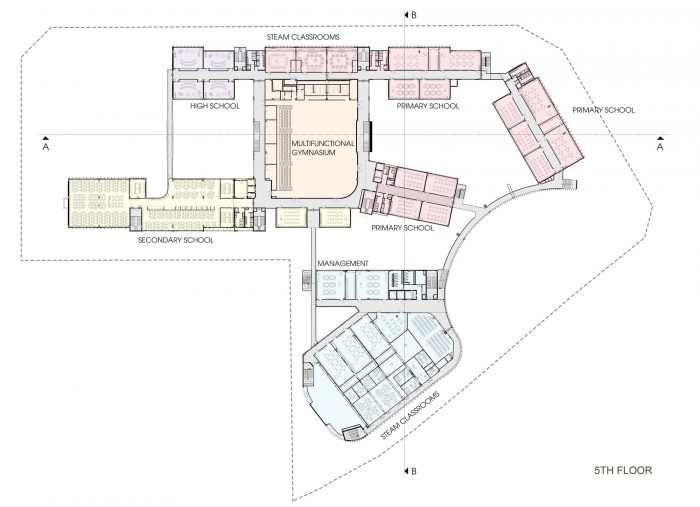
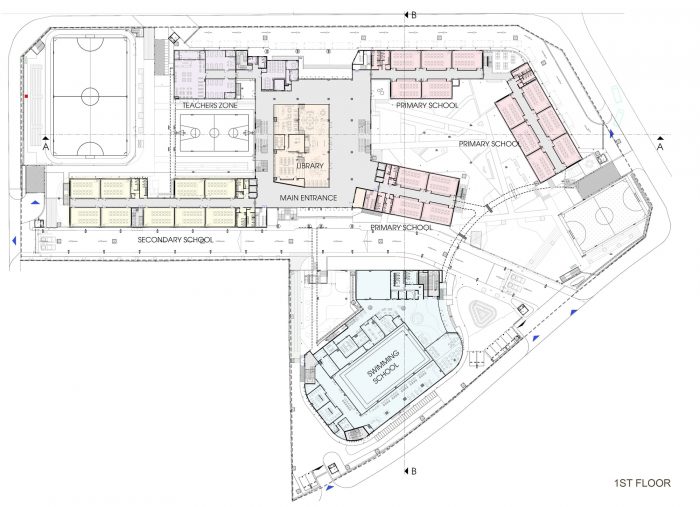
The complex consists of three main functional zones: the classroom's openings are positioned primarily along the North-South axis; the common area (canteen, library, multifunctional gymnasium) is placed right at the center to ensure direct access from all directions; and the semi-detached administrative area. The system of corridors bridges all functional zones to form a solid unit. In between these zones are the playgrounds, sports fields, and green areas. The main entrance is highlighted by a grand concave corridor, which is curved backward to make an open and welcoming square.



总的来说,这所学校是友好和方便的。建筑设计来自于场地本身的形式,考虑到了对周围环境的尊重、社会责任和可持续性。这是为了确保杜威学校的学生能够体验到一个理想的学习环境,现代化的设施不会影响到这里的相关和舒适的感觉。
The school, in general, is friendly and convenient. The building design comes from the form of the site itself, with respect for the surroundings, social responsibility, and sustainability in mind. This is to ensure that students at The Dewey schools are able to experience an ideal learning environment, where modern facilities do not compromise the relevant and cozy feel of the place.



















Architects: 1+1>2 Architects
Area : 39968 m²
Year : 2020
Photographs :Nguyen Thai Thach, Do Minh Duc
Manufacturers : Dulux, INAX, Kone, Gia Loi Joint Stock Company, Hoa Phat, LG, Trane Technologies, Virco Manufacturing Corporation, Xingfa
Chief Architect : Hoang Thuc Hao
Design Team : Do Minh Duc, Nguyen Xuan Ngoc, Le Dinh Hung, Le Quang Viet, Nguyen Nam Duong, Pham Hong Ngoc
Client : Edufit Education Group Joint Stock Company
Site Area : 8344 m2
City : Lô H3-LC khu đô thị Starlake Tây Hồ Tây, Khu đô thị Tây Hồ Tây, Bắc Từ Liêm, Hà Nội, Vietnam
Country : Vietnam