这座房子是建立在公共和私人空间交织在一起的理念上的,这些空间融于建筑的外部和内部;这种理念提供了一种独特的生活体验。为了创造一个拥有自然采光的内部空间,同时又能将外部和内部空间无缝连接的房子,我们决定打破经典的内外双边界模式,让光线渗透到建筑中,同时提供令人惊叹的室外景观。
This house is built on the idea of interweaving public and private spaces that melt into the outside and inside of the building; a concept that offers a unique living experience. To create a house that has naturally lit interior spaces while connecting external and internal spaces that flow with each other seamlessly, we decided to break the classic double border inside-outside model to allow light to permeate into the building while offering stunning outdoor views.




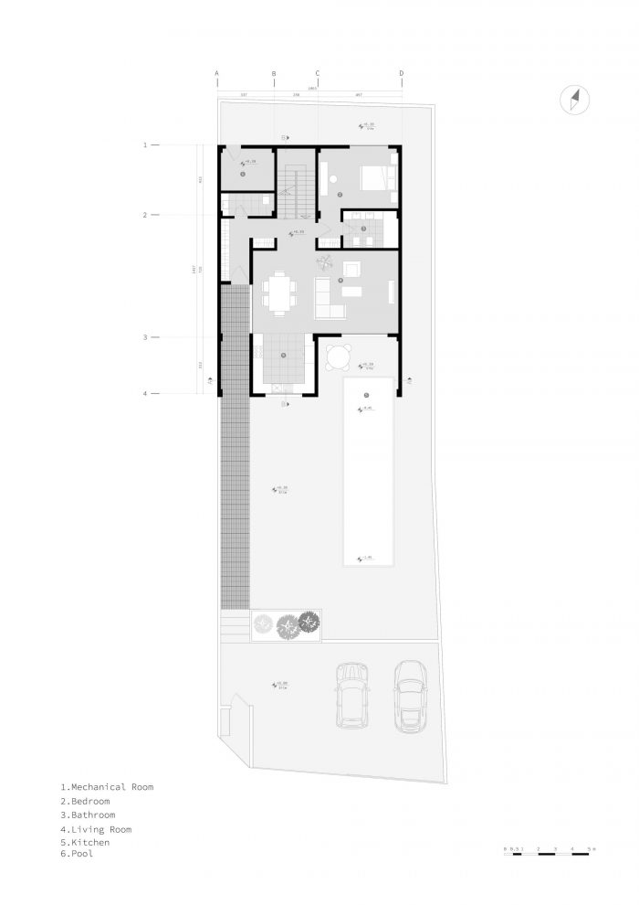
该项目位于伊朗Nowshahr市以东13公里处的Dezdak村,该村位于里海海岸线和阿尔伯兹山脉北部森林之间。这座建筑位于一块面积为12×40米的土地上,南北向延伸,位于一个具有独特景观的地区。从南部可以看到Nowshahr的山脉和森林。从北部的建筑顶层可以看到大海。另外,在东部,还可以看到古朴的稻田。这个地区的大多数建筑都不高于一或两层的结构,屋顶是古典的坡屋顶。
The Project is located in Iran,13 kilometers east of Nowshahr city, Dezdak village which is between the Caspian Sea coastline and the northern forests of the Alborz Mountain range. This Building is situated on a plot of land measuring 12 x 40 meters with a north-south extension, in an area with a one-of-a-kind landscape. From the south, the mountains and forests of Nowshahr can be seen. From the top floor of the building in the north, the sea can be seen. Plus, to the east, the quaint rice paddies are also visible. The majority of the buildings in this region are no higher than one- or two-story structures with classical gabled rooftops.


这个住宅的关键特征是最大限度地提高能见度,同时利用其所有潜力。由于这个地方有一个明显的类型,这个房子容纳了现有的常见形式,没有修改,同时尊重附近的高度范围,以实现与周围环境的同质性。在这个项目中,我们通过保持原有的形式框架来安排建筑的不同功能。
The key character of this dwelling is maximum visibility while using all its potential. Since this site has a pronounced typology, the house accommodates the existing common forms without modifications while respecting the height range of the neighborhood to achieve homogeneity with its surrounding context. In this project, we arranged the different functions of the building by maintaining the original framework of the form.


除了空间上的划分,通过在建筑中的移动,每个序列都提供了其他空间的不同景观。房子的名字就是这个主题的功劳,这是项目的独特观点。该文本将按收到的内容发布。请仔细检查信用和拼写!
In addition to the spatial division, by moving through the building, each sequence provides a different view of other spaces. The name of the house is the credit of this theme which is the unique views of the project. The text will be published as received. Please double-check credits and spelling!


















Architects: Challenge Studio
Area : 450 m²
Year : 2021
Photographs :Deed Studio
Lead Architects : Mohsen Tajeddin
Program / Use / Building Function : Residential - Villa
City : Nowshahr
Country : Iran