推导改造重构
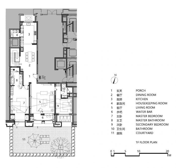
空间分为上下两层,设计师对建筑架构、长向布局、动线关系、楼层关联等方面进行了梳理与分析。本次改造需要解决一楼的采光问题,基于原始建筑特征与户型情况,设计师将原始布局的封闭状态打开,强调空间的互通性。
玄关原本狭窄,由于左侧墙体结构限制不可变动,设计师从立面视觉来缓解,将入户主背景进行凹凸层次处理,主卧室的门也做了内退处理,使空间显得更宽敞。
引入落地门窗,实现南向采光最大化,并让室内与庭院衔接。此外,顶部灯膜营造的人造光源进一步提升了光照效果。动线规划流畅,使厨房和餐厅区域通过门洞可以欣赏庭院风景。
Transforming and Reconstructing
The space is divided into upper and lower floors, and the designer has sorted out and analyzed the architectural architecture, longitudinal layout, dynamic line relationship, and floor association. The renovation needs to solve the lighting problem of the first floor. Based on the original architectural features and house type, the designer opens the closed state of the original layout and emphasizes the interoperability of the space.
The entrance was originally narrow, and due to the structural limitations of the left wall which could not be changed, the designer relieved it from the visualization of the façade by processing the main background of the entry into the house with concave and convex levels, and the door of the master bedroom was also retreated, which made the space appear more spacious.
Floor-to-ceiling windows and doors are introduced to maximize the south-facing light and to connect the interior with the courtyard. In addition, the artificial light source created by the top light film further enhances the light effect. The smooth flow of the plan allows the kitchen and dining area to enjoy the courtyard view through the doorway.








探索契合表达
电视背景墙以洞石打造灵活柜体,随着艺术画作的移动,电视随即显现,实现电视和物品的展示与隐藏。设计师统筹多者的细微尺度,使功能和形式在互动中显现。
光线随时间变化,色彩也随之调整。立面上金属波纹板、肌理漆,以及局部跳色点缀,增添了设计特色。此外,艺术藏品与家居、设计选材搭配协调,呼应设计主题。
阳台的原始立柱是客厅设计的一个障碍点,设计师将其利用,构筑吧台场域,既可面向客厅使用,又能随玻璃移门的变动与庭院连接,实现多元转换。
设计师对餐厅与厨房的面积配比进行了调整,从实用角度出发,优化了餐厅的动线便于多向穿梭,并加大厨房进深,提供充足的存储和操作空间。此外,通过材料的整合处理,提升了整体美感。
Exploring the expression of fit
The TV back wall is made of travertine to create a flexible cabinet, and with the movement of the art painting, the TV is revealed, realizing the display and concealment of the TV and objects. The designers harmonize the subtle scales of the multiple elements so that function and form are revealed in interaction.
The light changes over time and the colors are adjusted accordingly. Corrugated metal panels and textured paint on the façade, as well as local color jumping accents, add to the design character. In addition, the art collection harmonizes with the home and design selections, echoing the design theme.
The original column of the balcony is an obstacle to the design of the living room, so the designer utilizes it to construct a bar area, which can be used for facing the living room as well as connecting with the courtyard with the change of the sliding glass door, realizing diversified transformation.
The designer adjusts the area ratio between the dining room and the kitchen, optimizing the dining room's dynamic line to facilitate multi-directional shuttling from a practical point of view, and increasing the depth of the kitchen to provide sufficient storage and operating space. In addition, the integration of materials enhances the overall aesthetics.










构筑静谧栖居
每次改造,业主都有一个不变的需求——卧室和浴室足够宽敞。主卧套间以开放式设计兼顾风格与舒适度,中性色调营造出宁静的氛围。透过落地门窗,将户外庭院景观引入室内,使人身心放松。
主卫配备了多个镜面,交叠映射,造就空间的延伸。一个可旋转的美妆柜,为日常生活提供便捷。
次卧同样有着简洁的色调、温润的基底。房门以及内部移门的相互配合,让次卫灵活转换,也可充当公卫之用。
Constructing a Quiet Habitat
With every remodel, the homeowners had one constant need - spacious bedrooms and bathrooms. The master bedroom suite balances style and comfort with an open-plan design, and the neutral color palette creates a serene atmosphere. Through floor-to-ceiling windows and doors, the outdoor courtyard view is brought inside for relaxation.
The master bathroom is equipped with multiple mirrors that overlap and reflect, creating an extension of space. A rotatable beauty cabinet provides convenience for daily life.
The second bedroom has the same simple color tone and warm base. The interplay between the door and the interior sliding door allows the second bedroom to be converted into a public bathroom.











邂逅艺术瞬间
楼梯贯穿上下两层,设计师通过造型、材质、灯光来凸显其穿透性与轻盈度。
地下一层也可入户,设计师在不同的角落,精选人体器官雕塑、个性摆件与艺术画作进行组合。随着步移景异,如同展馆闲行,邂逅更多趣味瞬间。
Artistic Moments
The staircase runs through the upper and lower floors, and the designer emphasizes its transparency and lightness through shapes, materials and lighting.
The first floor can also be used as a home, and the designers have selected sculptures of human organs, personalized ornaments and art paintings to be combined in different corners. As the scenery changes with each step, it is like walking through a pavilion, encountering more interesting moments.







安放情感一隅
业主家中收藏了众多潮鞋以及限量款球鞋,设计师打造了陈列区域。这里还可兼顾客房使用。楼下的影音室则是业主职业习性的外在表现,空间远离楼梯通道,减少对生活区的干扰。
书房内摆满了各类书籍,为阅读或创作提供了安静的场所。借助天井采光,将跑步机安放其下。末端的一扇门能因需实现影音室与书房的联通或独立。
Placement of emotions
The designer has created a display area for the owner's collection of trendy shoes and limited edition sneakers. This area can also be used as a guest room. The audio-visual room downstairs is an outward manifestation of the owner's professional habits, and the space is far away from the stairway to minimize interference with the living area.
The study is filled with books, providing a quiet place to read or create. A treadmill is placed underneath with the help of light from the patio. A door at the end allows the audio-visual room to be connected to the study or separated as needed.













设计公司:壹舍设计
面积:300m2
完工时间:2024年6月
摄影:朱海
主创:方磊
参与设计:樊钱中、赵冰洁、蒙程鹏、胥磊、方紫诺、程通、李斌、陈汶霄、巩绪成
视觉陈列:李文婷、李美萱、谭芳芳
城市:上海
国家:中国