英荷建筑事务所Studio Woodroffe Papa和波尔多的Poggi建筑事务所已经为开发商Matching Green完成了位于伦敦南华克区Dockley路的一个混合用途方案。这个拥有111个单元的住宅方案具有独特的视觉效果,为首都和英国其他地区的住房设计提供了一个欧洲式的视角。
Anglo-Dutch architecture practice, Studio Woodroffe Papa, and Bordeaux-based Poggi Architecture have completed a mixed-use scheme on Dockley Road in the London Borough of Southwark for developer Matching Green. With a distinct visual presence, the 111-unit residential scheme provides a European take on housing design for the capital and the rest of the UK.




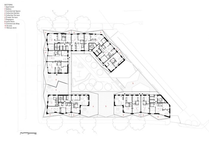
该方案占据了一个前工业用地,周围是住宅区和铁路高架桥,包含了私人、共有产权和社会住房的使用权。商店、餐馆和咖啡馆以及手工食品生产商和批发商混合在一起,位于地面和邻近的铁路拱门内,这构成了南华克 "低线 "铁路拱门更广泛复兴的一部分。
Occupying a former industrial site, surrounded by housing estates and a railway viaduct, the scheme incorporates private, shared ownership and social housing tenures. A mixture of shops, restaurants, and cafes, along with artisan food producers and wholesalers are located at ground level and in the adjacent railway arch, which makes up part of the wider regeneration of the railway arches along Southwark’s ‘Low Line’.


与英国中层高密度住宅开发中通常出现的方正的塔楼相比,多克雷公寓具有强烈的视觉效果,它将阳台的起伏几何形状与阶梯式的建筑形式相结合。该项目从四层到九层不等,不同的高度响应了该地块的周边环境。地面上的深色砖与高层的钢制雨幕外墙相结合,向该地区的工业遗产致敬。
In contrast to the boxy tower blocks typically found in mid-rise, high-density UK housing developments, Dockley Apartments has a strong visual presence that combines undulating geometries of balconies with a stepped building form. The development ranges from four to nine stories, with varying heights responding to the site’s surrounding context. Dark brick at ground level is combined with a steel rain-screen façade at the upper levels and gives a nod to the area’s industrial heritage.

该项目由一、二、三居室组合而成,所有住户都受益于大面积的遮阳阳台和自然通风的双视角公寓。借鉴欧洲集体住宅对公共空间的设计关注,新项目提供了宽敞的户外休闲空间,为居民提供了社会影响和幸福感。住宅单元被安排在一个共享的庭院周围,包括专门的儿童游戏空间。居民从宽阔的长廊进入他们的家,这些长廊循环往复,俯瞰着公共庭院,并延伸到第一、第四和第五层的屋顶露台,露台上有种植植物和长椅。
Comprised of a combination of 1, 2, and 3-bed units, all residents benefit from large, shaded balconies and naturally ventilated dual-aspect apartments. Drawing on European collective housing where significant design attention is given to communal space, the new development provides generous outdoor amenity space that delivers social impact and a sense of well-being for its residents. The residential units are arranged around a shared courtyard that includes dedicated children’s play spaces. Residents access their homes from wide galleries that circulate and overlook the communal courtyard and extend onto roof terraces on the first, fourth, and fifth levels which have planting and benches.




随着全国范围内关于提供高质量住房的讨论变得越来越有必要,多克雷公寓为首都提供了一个及时的干预,成为在强调社区建设、福祉和社会价值的城市住房计划中实现集体生活的典范。
With a national conversation on delivering high-quality housing becoming increasingly necessary, Dockley Apartments offers a timely intervention for the capital, acting as an exemplar for how to achieve collective living in urban housing schemes that emphasize community-building, well-being, and social value.




















Architects: Studio Woodroffe Papa
Area : 10678 m²
Year : 2022
Photographs :Tim Crocker
Manufacturers : Arcelor Mittal, Russell Timber, Vibro Menard, van de Moortel
Lead Architects : Studio Woodroffe Papa with Poggi Architecture
Structural Engineer : Elliot Wood/ Terrell Group
M&E Consultant : Max Fordham/ RISE
QS : Equals Consulting
Landscape Consultant : TO Studio
Planning Consultant : Temple Group/ Walker Management
Daylight Consultant : GIA
BREEAM Assessors : SCS
Ecology : Greenlink
Sustainability : AES
Transport Consultants : Steer
Main Contractor : Legendre UK
Director / Team Leader : Jonathan Woodroffe
Director : Dominic Papa
Project Architect : Tristan Kelly, Frank Provoost
Architect : Alina McConnochie, Charlie Palmer
Client : Matching Green
Acoustic Consultant : Hann Tucker
Fire Consultant : JGA
Principal Designer : Vey Consulting
Archeology : AOC Archaelogy Group
Approved Building Inspector : Butler & Young
City : London
Country : United Kingdom