这座住宅位于散布在濑户内海的众多岛屿之一。不同设计的主屋、茶室、客房和餐厅从上到下排列在一个斜坡上,向南俯瞰濑户内海。
This residence is located on one of many islands scattered across the Seto Inland Sea. The main house, tearoom, guest quarters, and dining room in different designs are arranged from top to bottom on a slope overlooking the Seto Inland Sea to the south.



各种各样的人,包括主人的家人和朋友,经常来参观这所房子。这一次,我们在主屋稍稍下坡的地方,为孩子们建了一个宾馆,为成年人建了一个酒馆 "EL AMIGO",供他们饭后玩耍。
Various people, including the owner's family and friends, frequently visit the house. This time, we built a guesthouse for children and a pub “EL AMIGO” for adults to play after dinner, slightly downhill from the main house.



这个山坡的形状像一个逆时针缓缓上升的斜坡。业主正在沿着它增加新的建筑,而我们设计的建筑则略微远离轨迹,向南面站立。我们对它们进行了定位,以避免妨碍从现有建筑中看到濑户内的景观。
This hillside is shaped like a slope rising gently counterclockwise. The owner is adding new buildings along it, while the buildings we designed stand slightly away from the trajectory, down to the south. We positioned them to avoid obstructing the view of the Setouchi landscape from the existing buildings.



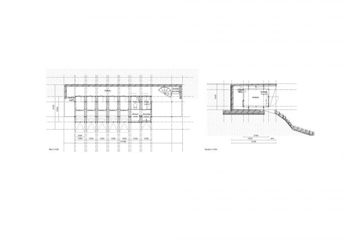
受shukubo(由寺庙和神社经营的住宿设施)形象的启发,我们以 "dokubo"(孤独的宿舍)为名设计了宾馆,作为儿童脱离这个世界并回归孤独的地方。它有五个睡眠单元,一个淋浴和一个厕所,位于主屋的餐厅前面,是他们吃饭的地方。屋顶与餐厅的地板水平一致,以避免挡住从餐厅看到的大海。一个面向大海的螺旋形楼梯从餐厅通向下层,并下降到通往独居者宿舍的通道,就像进入地下一样。进入宿舍后,人们会看到濑户内海的全景,每个房间的前门都是一扇窗户,只要按一下按钮就能自动上下摆动。这是一个在面对大海时面对孤独的地方。
Inspired by the image of shukubo (accommodations operated by temples and shrines,) we designed the guesthouse under the name of "dokubo" (solitary quarters) as a place for children to disconnect from this world and return to their solitude. It has five sleeping units a shower and a toilet and sits in front of the main house's dining room, where they have their meals. The roof is aligned with the floor level of the dining room to avoid blocking the view of the sea from the dining room. A spiral staircase facing the sea leads down from the dining room to the lower floor and descends to the approach to the solitary quarters as if going underground. Upon entering the quarters, one encounters a panoramic view of the Seto Inland Sea, and the front door to each room is a window that automatically swings up and down at the touch of a button. It is a place to confront solitude while facing the sea.


我们设计的酒馆 "EL AMIGO “就像一个地洞,可以在舒适的氛围中与主人围着桌子享受夜间的饮料。在白天,温和的光线,让人联想到光线穿过日本的纱窗,通过玻璃钢屋顶过滤进来。人们可以打开窗户,从这里欣赏大海的全景,这也是举行龙井(站立)式茶道的最佳环境。
We designed the pub “EL AMIGO” like a hole in the ground to enjoy nightly drinks in a cozy atmosphere around a table with the host. In the daytime, gentle light, reminiscent of light passing through shoji screens, filters in through the FRP roof. One can open the window to enjoy a panoramic view of the sea from here as well, which is a perfect setting for holding tea ceremonies in the ryurei (standing) style.






















Architects: Jo Nagasaka, Schemata Architects
Area : 69 m²
Year : 2021
Photographs :Kenta Hasegawa
Construction : TSUNEISHI FACILITIES&CRAFT CO.,LTD., TANK
Structural Design : Hashigotaka Architects
Project Team : Tomomi Ishibashi
City : Fukuyama
Country : Japan