DOT咖啡站#1是一个城市咖啡馆,它位于基辅最活跃的街区之一,专门提供高质量的咖啡饮料,可以带走。该场所的内部是现代城市生活的体现。它是折衷主义的,具有柔和的节奏和城市的氛围。
DOT Coffee Station #1 is a city café that is based in one of the most active neighborhoods in Kyiv and specializes in high-quality coffee drinks to go. The interior of the venue is a manifestation of modern city life. It is eclectic with a soft rhythm and an urban vibe.



设计重点是墙上的马赛克像素艺术,将点作为像素主题融入其中。像素是每个图像的起点。我们刻意选择不在这幅图中传达任何隐藏的信息,而是要创造一些奇怪的、真诚的和普遍的东西。DOT中的图形是纯粹的情感。那种一个普通的大都市居民每天都会有几次的情绪。这种情绪使他们脱离了他们的步伐,使他们感到不安。就像打脸一样,但更强烈。在它之后,你需要享受一杯咖啡来恢复并全速前进。
The design focus is the mosaic pixel art on the wall that incorporates the dot as a pixel theme. The pixel is the starting point of every image. We deliberately chose not to convey any hidden message in this picture, but to create something weird, sincere and universal. The graphic in DOT is pure emotion. That kind of emotions that a regular metropolis inhabitant would get several times a day. The sentiment that throws them off their stride and unsettles them. Like a facepalm, but stronger. After it, you need to enjoy a coffee to recover and go forward at full speed.

室内的第二个重音是一个狭窄的屏幕,上面有滚动的文字。它创造了动态,设定了节奏。它就像肾上腺素在刚喝完双份浓缩咖啡的人的血管中流动。
The second accent in the interior is a narrow screen with scrolling text. It creates the dynamics and sets the rhythm. It is like the adrenaline moving through the veins of the people who just got a double espresso.


这家咖啡馆通过其透明的外墙成为城市的一部分。DOT没有一般意义上的门。我们已经用玻璃滑动门取代了它,让城市的能量渗入其中。我们已经完全打开了外墙,以强调场地的好客性。只有几步之遥,就能让客户获得理想的咖啡因。
The cafe comes as a part of the city by means of its transparent facade. DOT does not have a door in its general meaning. We have replaced it with glass sliding doors that let the energy of the city seep through. We have totally opened the façade to emphasize the hospitality of the venue. Only a few steps divide a client from a desirable dose of caffeine.


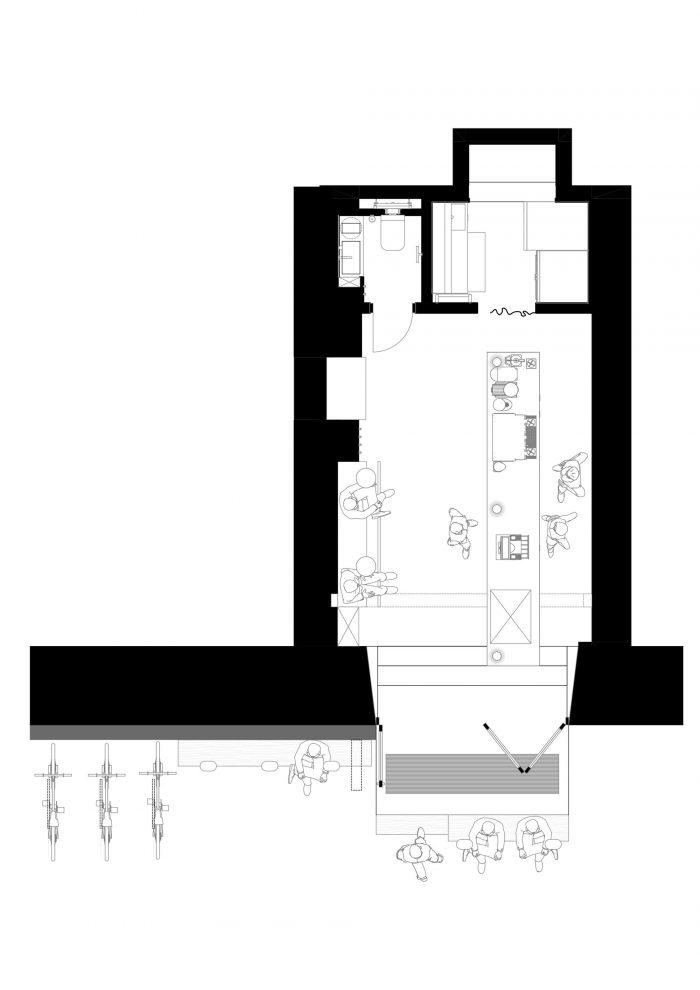
咖啡馆内的楼梯和部分墙面用白色马赛克瓷砖覆盖,并有一些像素艺术元素。其他墙面显示出裸露的砖块,强调了1900年建造的建筑的价值。DOT的天花板的高度是475厘米。我们需要得到一个充满光线的高大空间,所以我们从一开始就放弃了建造有座位的夹层的想法。
The stairs and part of the wall surface inside the café are covered with white mosaic tiles with some pixel art elements. Other walls show the bare brick that emphasizes the value of the building erected in 1900. The height of the ceiling in DOT is 475 centimeters. We needed to get a high space filled with light, so we discarded the idea of building the mezzanine with seating places from the very beginning.

DOT咖啡站有两张小桌子和一个带长椅的壁龛,可以坐几个客人。另一个座位的地方是沿着咖啡馆旁边的建筑立面的巨大长椅。两张长椅以及柜台上的木材都是很久以前作为某个谷仓的元素的旧梁。这是一种经过时间考验的材料,它讲述了自己的故事,并与不锈钢制成的完美和冰冷的元素形成对比。
DOT Coffee Station has two little tables and a niche with a bench where a few guests can sit. Another seating place is the massive bench along with the building façade next to the café. The timber on both benches as well as on the counter is old beams that used to be elements of some barn a long time ago. It is a time-proven material that tells its own story and works as a contrast with the perfect and cold elements made of stainless steel.



Architects: YOD Group
Area : 30 m²
Year : 2021
Photographs :Andrey Bezuglov
Manufacturers : Cinca, Glazer, Plan b
Lead Architects : Volodymyr Nepyivida, Dmytro Bonesko
City : Kyiv
Country : Ukraine