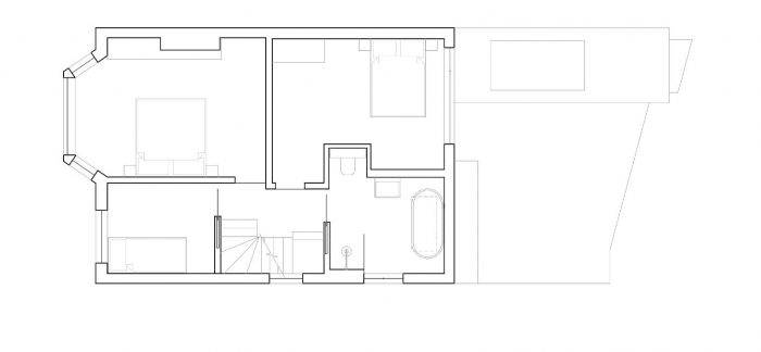
道格拉斯屋全部采用丹麦木材,成为一个温暖的生活空间,用独特的材料包覆,在房子的意外角落里有秘密的藏身之处,给你带来惊喜。这是一栋三层楼的房子,家庭房间占据了延伸到花园的一楼,一楼还设有一个经过精心设计的特色杂物间,以及一系列从木材地板延伸到客厅墙壁里的内置储藏室。 一楼是儿童房,用木质细节和其他自然材料进行装饰,还有一个令人惊叹的家庭浴室,让你在上面的屋顶灯渗入的自然光下沐浴。
All dressed in Danish timber, Douglas House has become a warm living space, clad in unique materials and with secret hideouts that surprise you in unexpected corners of the house.It is is a three-storey house, with the family rooms taking over the Ground Floor that extends into the garden, a ground floor that also houses a feature utility room that has been designed with the utmost care, and a series of built-in larders that extend from the timber floor and hide within the walls of the living room.The First Floor is made up of the children's rooms, decorated with wooden details and other natural materials, and a stunning family bathroom that lets you bathe under the natural light that seeps in from the roof light above.



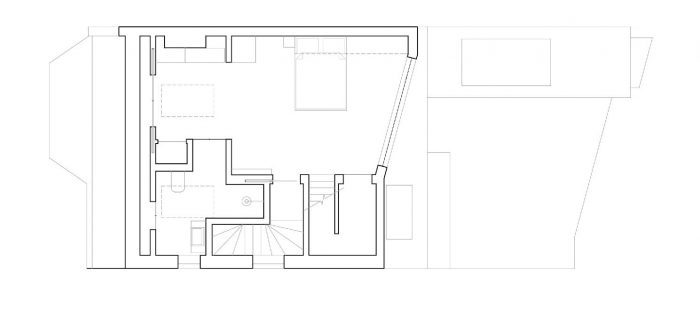
最后,一个阁楼改建的主卧室--一个梦幻般的空间,折叠到它的角落,有美丽的存储解决方案和第二个半层,像塔一样向上延伸,你可以阅读或从屋顶的高度向外凝视。这座房子有进入独特个人空间的门槛,房子里的气氛和它的表面一样有设计,对自然和电气照明以及通风都非常关注。
Finally, a loft conversion houses the Master Bedroom- a dream-like space that folds onto its corners with beautiful storage solutions and a second half-floor that extends upwards like a tower where you can read or gaze outwards from the heights of the roof. A house with thresholds into unique personal spaces, the atmosphere inside the house is as designed as its surfaces, with great attention to the lighting- both natural and electrical- and the ventilation.



该项目已建成气密性,并配备了一个MVHR装置,实现了市场上最有效的通风和温度控制形式,为建筑提供新鲜的过滤空气,同时保留了大部分已经用于加热的能源。该项目的温暖/中性色调通过其许多纹理变得生动。每个空间都成为自己的地方,最大限度地利用了房屋的每一个程序的日常之美:从客厅到卧室,从流通空间到杂物间。
The project has been built to air-tightness and is equipped with an MVHR unit that implements the most efficient forms of ventilation and temperature control available in the market, providing fresh filtered air into the building whilst retaining most of the energy that has already been used in heating it up. The warm/neutral palette of the project becomes alive through its many textures. Each space becomes a place of its own, making the most out of the beauty of the day-to-day of every single one of the programs of a house: from the living room to the bedrooms, and from the circulation spaces to the utility room.



























Architects: RISE Design Studio
Area : 170 m²
Year : 2019
Photographs :Edmund Sumner
Manufacturers : GRAPHISOFT, Dinesen, Falcon, Champion Timber, Clayworks, Fired Earth, Maxlight
Lead Architect : Sean Ronnie Hill
Main Contractor : Capital Building Contractors
Consultants : Enhabit
Engineering : CAR Ltd, Tyrone Bowen
Design Team : Sean Hill, Natsuka Muto
Clients : Mrs Morphet & Mr Gerstein
Collaborators : Liam Dryden
Party Wall Surveyor : Richard Egan
City : London
Country : United Kingdom