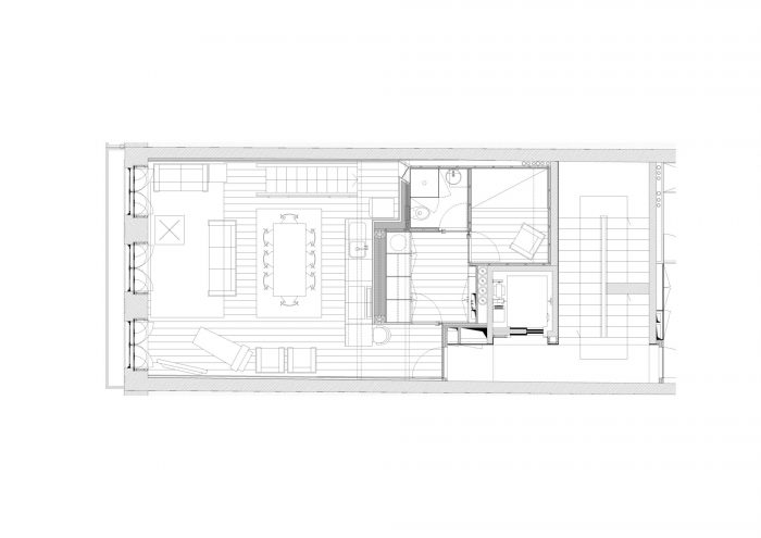
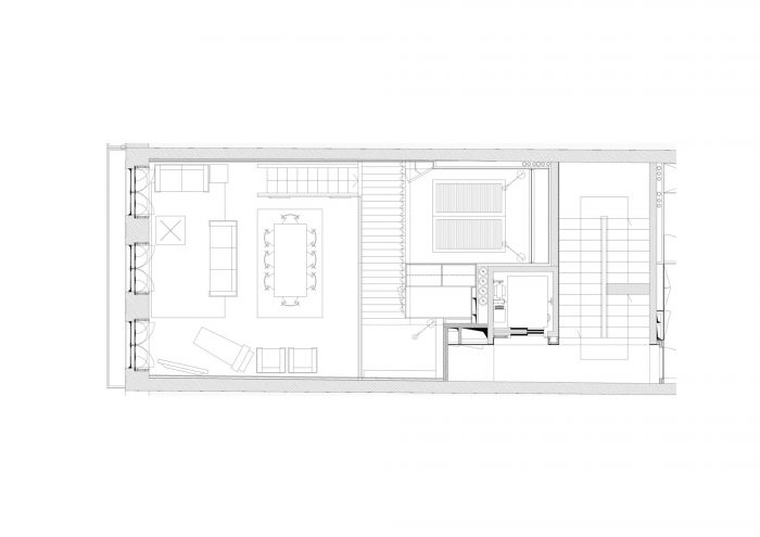
该项目包括对位于波尔图历史中心的十九世纪建筑中的一个小公寓的改造。考虑到空间的小尺寸和客户对增加实用面积的要求,该提案是基于在中央空间上设计一个夹层,利用这个时期建筑的高天花板特点。因此,这个中间层集成了一个卧室,一个在客厅上方的额外的开放空间,而且最重要的是私人的和独立的。下层发展为客厅和餐厅,其中也包括厨房。其余的服务空间,如浴室和储藏室都集中在剩余区域,内部和卧室下面。
This project consists in the transformation of a small apartment inserted in a building of the XIX century located in the historical center of Porto. Given the small dimension of the space and the customer's specifications to increase the useful area, the proposal is based on the design of a mezzanine over the central space, taking advantage of the high ceilings characteristic of the constructions of this period. This intermediate floor thus integrates a bedroom, an additional and open space over the living room, and above all private and separate. The lower floor develops into the living and dining room, which also includes the kitchen. The remaining service spaces like the bathroom and storage are concentrated in the surplus area, interior and under the bedroom.






在语言方面,该项目力求尊重建筑的历史,既以木材为主,又重新诠释了当时建筑的一些特定元素,即窗户的百叶窗和高裙边。此外,天花板的设计在夹层中非常突出,因为它回到了葡萄牙乡土住宅的形象。房中房 "是这个项目的概念,也是为了提高这个公寓的空间和独立屋特有的家庭舒适度的愿望。
In terms of language, the project seeks to respect the history of the building, both by the predominance of wood and by the reinterpretation of some specific elements of the architecture of this time, namely the window shutters and the high skirtings. In addition, the design of the ceiling stands out on the mezzanine because goes back to the image of the Portuguese vernacular house. The "house within the house" is the concept of this project and the desire to enhance the space of this apartment with the domestic comfort characteristic of a detached house.








Architects: Luís Peixoto
Area : 807 ft²
Year : 2018
Photographs :Arménio Teixeira
Manufacturers : Investwood, Flaminia, Margres, Primus Vitória, Sanindusa
Engineer : Eng Serra Moura, Eng. Rui Marrana
Builder : Grupo M Caetano
Clients : Gonçalo Paciência
Team : Rodrigo Gorjão Henriques, Luciana Rocha
City : Porto
Country : Portugal