该建筑由一个家具店组成,街边有一个午餐吧,以及场地后部的一栋办公楼。两者都是在两个几何图形的基础上被视觉化,部分地被推到一起。其结果是两个不同体量的几何交互作用,成为商店和办公室的特征。
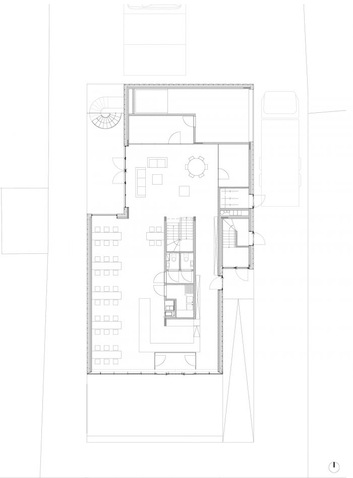
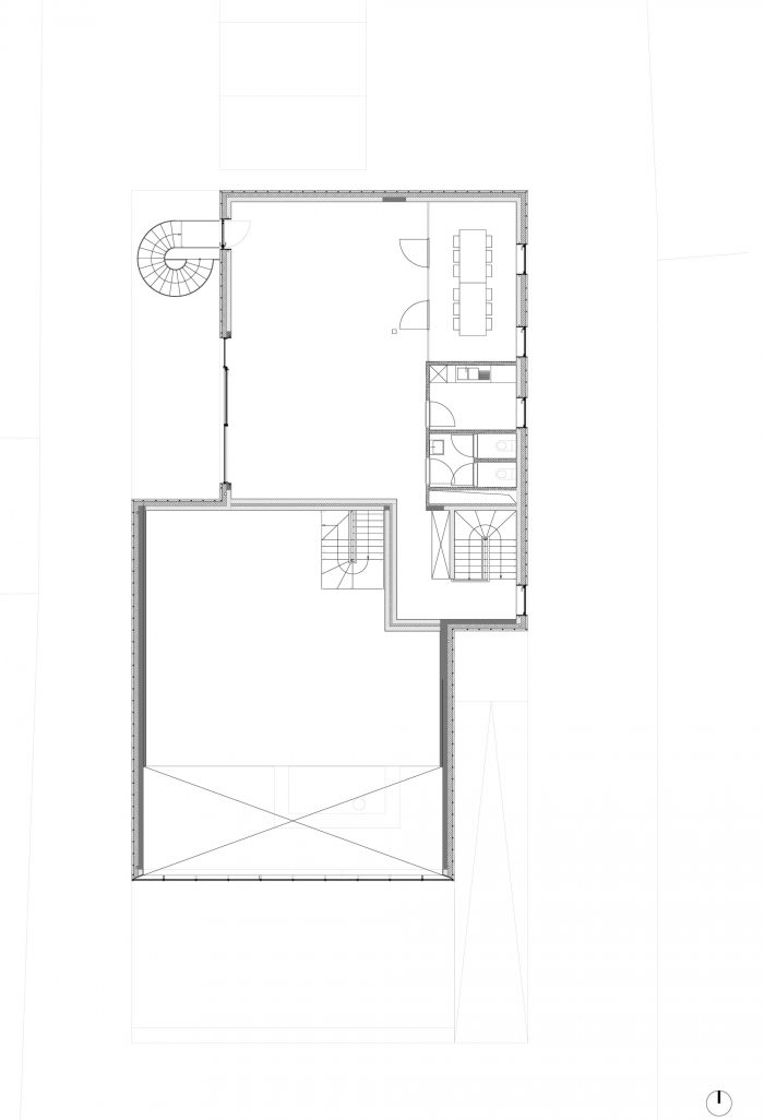
The building consists of a furniture store with a lunch bar on the street side, as well as an office building at the rear of the site. Both are visualized on the basis of two geometric figures that were partly pushed together. The result is a geometric interplay of 2 different volumes that characterize both store and office.





前面体量的轮廓受到城市发展条件的45°规则的启发,因此被盖上了一个屋檐。后面的体量是梁形的,并有一个独立的、横向的通道。凭借其典型的屋顶形状,其结果超越了零售店的非描述性的平庸。
The silhouette of the front volume is inspired by the 45 ° rule of the urban development conditions and is therefore capped with a gable roof. The volume at the back is beam-shaped and has an autonomous, lateral access. With its archetypal roof shape, the result transcends the non described banality of the retail store.

一丝不苟的细节设计使这个概念完美无瑕。这些体量有一个纤维水泥板的外墙。在倾斜的屋顶表面--呈45°角--和墙壁上,石板被放置成棋盘式图案。由于屋檐两侧有两个集成的水槽,形状保持了纯粹。在墙面石板连接的拐角处,一个内置的钢鳍提供了一个锋利的拐角。
The meticulous detailing keeps the concept flawless. The volumes have a facade in fiber cement slates. Both on the sloping roof surfaces - at an angle of 45 ° - and the walls, the slates were placed in a checkerboard pattern. Thanks to two integrated gutters on both sides of the gable roof, the shape remains pure. At the corners, where the slates of the wall surfaces connect, a built-in steel fin provides a razor-sharp corner.

窗户被切割出来,并以精细的、略微突出的框架完成。另一方面,门--除了通往办公室的玻璃门--也是用石板覆盖的,门闩和铰链都是精心切割出来的。
The windows are cut out and finished with fine, slightly protruding frames. The doors, on the other hand - with the exception of the glass door to the office - are also covered with slates, with latch and hinges carefully cut out.












Architects: WE-S architecten
Area : 528 m²
Year :2018
Photographs :Johnny Umans
City:GENT
Country:Belgium