客户要求在附近最后两块属于两兄弟的空地上建造一栋双胞胎公寓,作为两个项目中的第一个。 为了保持该地区所有其他房屋与街道的关系,我们提出了一个复式方案。因此,该物业的10米正面被一分为二,这导致了狭窄和深的平面布局,在前面和后面有充足的开放空间,这使得一楼与地面的接触和二楼提供的隐私得到了理想的结合。
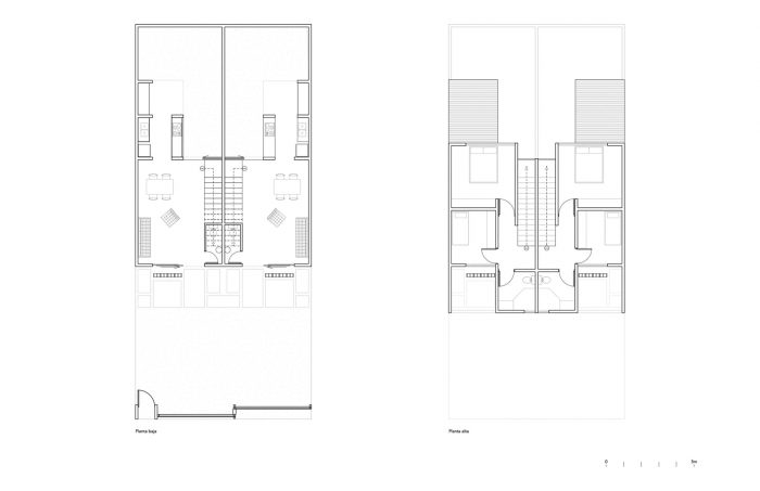
The client asked for a building with two twin apartments, one on top of the other, as the first of two projects to take place on the two last vacant plots of land in the neighborhood, which belong to two brothers. A duplex solution was proposed instead, in order to preserve the relationship that all the other houses in the area still have with the street. Thus, the property´s 10-meter frontage is divided in two which results in narrow and deep floorplans with ample open spaces in front and in the back, this allows for an ideal combination of contact of the first floor with the ground and the privacy that the second floor provides.




该建筑在姿态、比例、材料和技术上都很简朴,目的是保持建筑工作的成本与该地区的土地和房屋租金之间的比例。 该项目的执行是在全球供应链危机期间进行的,因此我们主要选择当地仓库中的库存材料。 该建筑具有整体性,包括楼梯和厨房台面等次要部件,以使其能够抵御不同租户的密集使用,并需要尽可能少的维护;但这并不妨碍未来逐步增加装修,如天花板、地板装修和台面,以跟上新租户不断变化的需求。
The building is austere in its gestures, proportions, materials, and techniques, with the intention of keeping the proportionality between the cost of the construction job and those of the land and the house rentals in the area. The execution of the project took place during the global supply chain crisis, therefore we chose mostly materials in stock in local warehouses. The construction has a monolithic character, including secondary components such as stairs and kitchen counters so as to make it resistant to the intensive use of different tenants and to require as minimal maintenance as possible; this however does not prevent future progressive finishes from being added, such as ceilings, floor finishes, and countertops in order to keep up with the changing demands of new tenants.



正面立面的深度和组件阵列与它的东南方向相呼应,以提供遮阳和西北雨,以及隐私和安全。 密集的混凝土侧墙提供了热质量,以保持全天足够的空气温度。尽管该建筑是由两个严格对称的部分组成的,但我们希望它能作为一个单元来阅读,并且当邻近的新项目完成后,它将成为更复杂的对称的一部分,(这又将由两个部分组成)。 我们寻求这种建筑被视为具有某些双重性:沉默和表达,熟悉和奇特,同时是两个和一个。
The depth and array of components of the front elevation respond to its southeast orientation, in order to provide shading from the sun and the northwest rain as well as privacy and security. The dense concrete side walls provide thermal mass to keep adequate air temperatures throughout the day. It is intended that the building be read as a unit despite being made of two strictly symmetrical halves and that it becomes a part of more complex symmetries when the new adjacent project is completed, (which in turn will be made up of two parts). We seek that this architecture is perceived as having certain dualities: silent and expressive, familiar and peculiar, as two and one at the same time.




















Architects: Arkosis
Area : 146 m²
Year : 2022
Photographs :Roberto D´Ambrosio
Manufacturers : Concrepal, Nalakalu
Lead Architect : Iván Delgado Salazar
Drawing : Tony Solano
Renders : Cristian Alvarez
Electrical Engineering : Stefany Badilla
City : Palmares
Country : Costa Rica