出发点是两个独立的住宅,分别位于Raval(巴塞罗那)中心地带的一楼和夹层,是一栋普通的老式公寓楼的隔墙。这两座住宅都处于被忽视和失修的状态。客户的要求是将主要的生活空间集中在夹层,并在底层扩展出其他功能更分散的空间,可用作客厅、书房、工作区...... 该建议是明确而直接的:在空间的中间,插入两个2米长的方块,在主轴线上旋转45º,它们的顶点重叠而不接触原来的墙壁,并通过两个楼层挤压。
The starting point was two independent dwellings on top of each other on the ground floor and mezzanine of a modest, old apartment building between dividing walls in the heart of the Raval (Barcelona). Both dwellings were in an absolute state of neglect and disrepair. The client's requirement was to concentrate the main living spaces on the mezzanine floor and expand them on the ground floor with other spaces with more diffuse functions that could be used as living room, study, work area... The proposal is clear and direct: in the middle of the space, insert two 2-meter side squares rotated 45º over the dominant axis, their vertices overlapping without touching the original walls, and extruded through both floors.





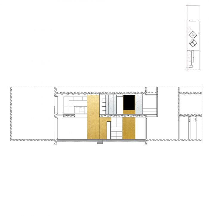
一个简单而响亮的安排,两个理想的形状,两个完美的挤压方块,被强加在现有的不规则上,并安排所有的地板空间,而不需要任何其他手段或元素。其中一个方块将容纳沟通两层楼的楼梯,另一个方块将容纳上层的卧室和底层的厕所和办公空间。这些广场的旋转导致了周围空间的专业化,而不需要任何额外的门或围墙(除了那些为浴室和卧室提供所需隐私的门或围墙),因为新的体量,当它们接近和远离周围的墙壁时,定义了这些区域。该提案的重点与所追求的内部空间的复杂性和强调不同区域和流通的坚定意图并行不悖。
A simple and resounding arrangement in which two ideal shapes, two perfect extruded squares, are imposed on the existing irregularity and arrange all the floor space without the need for any other means or elements. One of the squares will hold the stairs communicating both floors, and the other will house the bedroom on the upper floor and the toilet and office spaces on the ground floor. The very rotation of these squares results in the specialization of the space around it without needing any additional doors or enclosures (except those that provide the required privacy to bathrooms and bedrooms), since the new volumes, as they approach and move away from the perimeter walls, define these areas. The proposal's emphasis runs parallel to the sought-after inner spatial complexity and a firm intention to underplay the different areas and circulation.

因此,楼梯被封闭在其中一个体量中,其螺旋状的模式旨在迷惑和隐藏着落脚点的惊喜;出于同样的目的,有多个对称的轴线,使流通加倍,增强了空间体验,例如,在一楼的落脚点有两个可能的出口,或所有这些轴线被放置在广场的顶点;上层的封闭浴室区,是整个建筑中最孤立和私密的,反映和展开了其负空间,一个连接两个楼层的双层高度的空区域。高度加固的顶层结构在接触外墙之前就被切断了,以玻璃地板窗格到达外墙,连接两层楼,从而隔离了现有的外墙,包括外侧的滑动木工都被置于该墙的内部平面;没有元素接触到体积,它们在内部被独立阅读,在接触天花板之前结束;灯、门把手、淋浴头、排水管. ......所有的元素都是相对于它们被插入的表面,复制了45°的转弯......
Thus, the stairs are enclosed in one of the volumes, and their spiral pattern aims to disorient and conceal to surprise at the landings; for the same purpose, there are multiple axes of symmetry that double up circulation and enhance the spatial experience, for example, at the landing on the ground floor with two possible exits, or all those axes that are placed at the squares' vertices; the enclosed bathroom area on the upper floor, the most isolated and private of the whole, mirrors and unfolds its negative space, a double-height empty area linking both floors; the highly reinforced top floor structure is cut off before touching the façade to reach it with a glazed floor pane, linking both floors, and thus isolating the existing façade wall, including the outer sliding carpentry are placed in that wall’s interior plane; no element touches the volumes, which are read independently inside, ending just before they touch the ceiling; lights, door knobs, shower heads, drains ... all elements replicate the 45° turn with respect to the surface where they are inserted ...

颜色和材料的处理突出了两个挤压的体量,它们被涂上光亮的金色饰面涂料,与金粉混合,并进行清漆处理,周围是白色的覆盖层(微水泥和涂料),覆盖并涂在现有的周边。挖入其中一个体量的楼梯内部是一个黑色的世界,与外部的白色形成对比,就像卧室的床区一样,被挖入另一个体量中,用涂有OSB的木板覆盖,并涂上黑色清漆。门框(全部是玻璃)和开口是黄铜或黑钢,这取决于它们通往的区域;铰链和把手也是黄铜或铬合金......。材料和颜色代码总是与它所应用的元素的性质相匹配,无论是现有的还是新的,无论是在广场内还是在广场外。
The treatment of colours and materials highlights the two extruded volumes, which are coated in glossy, gold finish paint mixed with gold powder and varnished, surrounded by white cladding (micro-cement and paint) covering and coating the existing perimeters. The inside of the staircase dug into one of the volumes, is a dark world of black contrasting with the exterior whites, just as the bed area in the bedroom, excavated into another of the volumes and covered with painted OSB wood boards and varnished in black. The door frames (all glass) and openings are either brass or black steel, depending on the area to which they give access; hinges and handles are also brass or chrome ... The material and colour code always matches the nature of the element where it is applied, whether existing or new, either inside the squares or outside.

从一开始,结构性干预就要求对地基进行大修,高度精确地放置中央广场,以及精确地切割现有的木梁,以获得开口和双重高度。切割后的木梁要么靠在新的钢制门廊上,要么靠在新梁的下翼上,目的都是为了让方块的挤压干净。复式楼配备了高效空气加热系统的地暖。在一楼,三个现有的巴西绘画被保留下来,建议的内部循环将它们放在楼梯出口处。这些画作是来自巴西的客户最初决定购买这两处房产并开展这个项目的原因。
From the outset, the structural intervention required overhauling the foundation, high precision in placing the central squares, as well as the precise cutting of the existing wooden beams for the openings and double heights. The cut wooden beams either rest on the new steel porticos or lean on the lower wing of the new beams, always for the purpose of allowing the clean extrusion of the squares. The duplex is equipped with underfloor heating with a highly efficient air-therm system. On the ground floor, three existing paintings of Brazilian origin have been preserved, and the proposed inside circulation places them right at the stairs exit. These paintings are the reason the client, of Brazilian origin herself, initially decided to buy these two properties and undertake the project.






























建筑师:Raúl Sánchez
面积:110 m²
年份:2017年
照片:José Hevia
制造商:DomesticoShop, HAY, Menu, Santa & Cole, Softline, ZANOTTA, nanimarquina, ISIST, SP HAUS, Sancal
工程:Marés ingenieros
结构:Francisco Moyano
建筑合作者:Pau Just, Victor Lorente
城市:巴塞罗那
国家:西班牙
Architects: Raúl Sánchez
Area: 110 m²
Year: 2017
Photographs: José Hevia
Manufacturers: DomesticoShop, HAY, Menu, Santa & Cole, Softline, ZANOTTA, nanimarquina, ISIST, SP HAUS, Sancal
Engineering:Marés ingenieros
Structure:Francisco Moyano
Architecture Collaborators:Pau Just, Victor Lorente
City:Barcelona
Country:Spain