圣詹姆斯电站是许多工程第一的所在地。它成立于一个世纪前,是新加坡的第一个市政发电站,也是东南亚最早的工业建筑之一。随着戴森将这座历史悠久的国家纪念碑重新打造为其新的全球总部,创新的遗产得以延续。在这个为戴森设计的新加坡办公室中,人们和想法为未来的增长提供了动力。
St James Power Station is the site of many engineering firsts. Established a century ago, it was the first municipal power station in Singapore and one of the first industrial buildings of its kind in Southeast Asia. The legacy of innovation continues as Dyson reinvents a historic national monument as its new global HQ. People and ideas power future growth in this Singapore office design for Dyson.




一目了然--为戴森的研究、开发和运营团队重新设计大楼。一个尊重现有遗产建筑的校园式总体规划。提供一个可持续和以人为本的工作场所。通过设计创造一种目的感和建筑身份。
At a glance - Repurposing the building for Dyson's research, development and operations teams. A campus-like masterplan that respects the existing heritage architecture. Delivering a sustainable and human-centered workplace. Creating a sense of purpose and architectural identity through design.


为工作中的人重新利用建筑--在一个最初为机器设计的建筑中,团队的重点是帮助戴森为人重新塑造它。在这样做的过程中,拥有一个功能性和激励性的空间是至关重要的。一个支持研究、开发和运营团队工作、会面和协作的空间。为戴森设计的这个新加坡办公室的核心是以前的涡轮大厅。一个引人注目的四层楼的工业空间。受学术校园四合院的启发,这个中央空间作为一个流通枢纽,连接所有区域。这是一个用于敏捷工作的内部退路,也是一个供人们会面和交流的社区空间。一进入涡轮大厅,人们就被一个充满活力的特色楼梯所吸引。这是工作场所的功能主干,连接所有四个楼层。它支持各部门之间的联系,并激活了繁忙的中央涡轮大厅的流通。在另一端,毗邻工作咖啡厅的是露天剧场。这是一个分享经验的目的地,鼓励交流、实验和不断学习。
Repurposing the building for people at work - In a building originally designed for machines, the team’s focus was to help Dyson reinvent it for people. In doing so, it was essential to have a functional and inspiring space. A space to support the research, development, and operations teams to work, meet and collaborate. At the heart of this Singapore office design for Dyson is the former Turbine Hall. A dramatic four-storey industrial space. Inspired by the quadrangles of academic campuses, this central space serves as a circulation hub, connecting all areas. An inner retreat for agile working and a community space for people to meet and connect. On entering the Turbine Hall, people are greeted by a dynamic feature staircase. This is the functional spine of the workplace linking all four floors. It supports the connection between departments and activates circulation in the busy, central Turbine Hall. At the other end, adjacent to the Work Café, is the Amphitheatre. This is a destination for shared experiences, encouraging communication, experimentation, and constant learning.


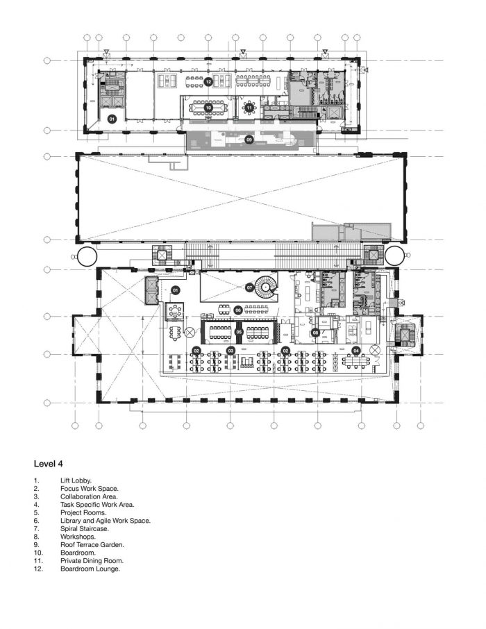
由业务和功能驱动的规划 - 戴森全球总部的主要目标是推动增长和支持研发创新。特别是要提供一个能更好地支持科学家和工程师们研究未来技术的空间。园区式的总体规划旨在满足戴森的业务需求,同时尊重现有的传统建筑。精心考虑的规划和分区,以满足所有部门的不同需求。将一座老旧的工业建筑改造成一个创新的园区意味着要解决许多设计上的挑战。我们需要将工作空间、实验室和社交空间无缝地结合起来。为现代工作场所的功能设计改进声学和整合技术是至关重要的。我们通过提供一系列可供选择的工作点和空间来满足不同团队的不同需求。这些包括用于团队协作的休息区和用于集中精力的较安静的图书馆区。
Planning driven by business and function - The main goal of Dyson’s global HQ is to advance growth and support innovation in research and development. In particular, to provide a space that better supports the scientists and engineers working on future technologies. The campus-like masterplan is designed to deliver on Dyson’s business needs while respecting the existing heritage architecture. Carefully considered planning and zoning to meet the different demands of all departments. Adapting an old industrial building into a campus for innovation meant tackling many design challenges. We needed to seamlessly incorporate workspaces, laboratories, and social spaces. Designing improved acoustics and integrating technology for modern workplace functions was essential. We addressed the diverse needs of different teams by offering a range of alternative work points and spaces. These include break-out areas for team collaboration and quieter library zones for focus.


创造一个可持续的、以人为本的园区--健康的材料解决了健康问题,同时也推进了戴森的碳净值目标。按照绿色标志铂金标准设计,该设计利用了智能建筑技术、节能策略和资源管理计划。空气质量监测和可调节的家具支持舒适性和提高生产力。从安静区到医疗室、父母室和祈祷室的一系列设施支持了包容性的身体和情感健康。在这个为戴森设计的新加坡办公室的中央空间,树木改善了空气质量和热舒适度。此外,屋顶的景观平台也为邻近的会议空间带来了自然。这座被同情地重新利用的建筑是建筑更新和城市可持续发展的一个罕见的例子。
Creating a sustainable and human-centered campus - Healthy materials address wellness while advancing Dyson’s carbon net-zero goals. Engineered to a Green Mark Platinum standard, the design leverages smart building technologies, energy reduction strategies, and resource stewardship programs. Air quality monitoring and adjustable furniture support comfort and increase productivity. A range of amenities from quiet zones to medical, parent, and prayer rooms support inclusive physical and emotional well-being. In the central spaces of this Singapore office design for Dyson, trees improve air quality and thermal comfort. Also, a landscaped rooftop terrace brings nature to the adjacent meeting spaces. This sympathetically repurposed building is a rare example of architectural renewal and urban sustainability.



通过设计获得灵感—在校园内创造一种目的感和建筑身份,材料提供了背景和意义。混凝土地板和黑色金属说明了该建筑的过去。而像聚碳酸酯、金属网和镜面包层这样的技术材料则宣告了其新的未来。引人注目的金属楼梯颂扬了工艺,并呼应了建筑的工业历史。员工在上班时进入涡轮大厅。迎接他们的是一个象征性的提醒,提醒他们建筑新的振兴目的--激发设计和技术革新。
Inspiration through design - Creating a sense of purpose and architectural identity within the campus, materials offer context and meaning. Concrete flooring and black metal speak of the building’s past. While technical materials like polycarbonate, metal mesh, and mirrored cladding announce their new future. The striking metal staircase celebrates craftsmanship and echoes the building’s industrial past. Employees enter the Turbine Hall as they head to work. Here they are greeted with a symbolic reminder of the building's new revitalized purpose – to spark design and technology innovation.














Architects: M Moser Associates
Area : 13006 m²
Year : 2022
Photographs :Finbarr Fallon
Manufacturers : 3M, Danpal, Flexform, Fritz Hansen, Armourcoat, Arper, Autex, Caesarstone, Cappellini, Cassina, Dyson, Elite Stone, Herman Miller, James Burleigh, Kandinsky Simply Wood, Kreon, Kvadrat, MAXALTO, Nora, Otiima – MMTW, Rockfon, Visplay, VitrA
Country : Singapore