东行是一个位于东奥斯汀的23万平方英尺的创意办公园区,无缝整合了灵活的工作空间、社区设施、公共艺术和公共绿地,为办公人员创造了丰富的层次体验。受东奥斯汀地区充满活力的仓库和工业结构的视觉语言的启发,这两座建筑群的大型冲孔开口和线性体量重新诠释了附近建筑的特征,而没有复制它们。
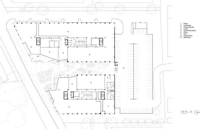
Eastbound is a 230,000-square-foot creative office campus in East Austin that seamlessly integrates flexible workspaces, community amenities, public art, and public greenspaces to create a richly layered experience for office workers. Inspired by the visual language of warehouses and industrial structures in the dynamic East Austin neighborhood, the two-building complex’s large, punched openings and linear massing reinterpret the character of nearby buildings without replicating them.



一个宽阔的庭院在两座建筑之间延伸,将地面上的公共设施,包括餐厅、休息室、健身房和办公大厅编织在一起。一个由森林般的混凝土柱子组成的柱廊从景观中出现,创造了一个有遮挡的室外公共空间。头顶上的天花板是木质的,创造了一个视觉上的连续性,将这些公共空间统一起来。从地板到天花板的店面窗户让自然光深入到地面,并标志着从外面粗糙的混凝土道路到内部高度抛光的混凝土地板的过渡。与当地设计师的合作包括艺术家Emily Eisenhart的壁画和当地照明工作室Warbach在每个入口处设计的大型定制钢制灯具。
An expansive courtyard stretches between the two buildings, knitting together the ground-level public amenities including a restaurant, lounge, gym, and office lobbies. A colonnade of forest-like concrete columns emerges from the landscape to create a sheltered outdoor public space. Overhead the ceiling is clad in wood, creating a visual continuity that unifies these public spaces. Floor-to-ceiling storefront windows allow natural light deep into the ground level and mark the transitions from rough concrete paths outside to highly polished concrete floors inside. Collaborations with local designers include murals by artist Emily Eisenhart and large-scale custom steel light fixtures at each entrance created by local lighting studio Warbach.


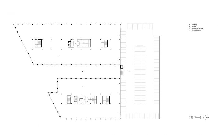
高层有很高的天花板和大的窗户,使自然光进入建筑,并将广阔的视野延伸到附近。大型内部空间可以很容易地适应租户的需求,并为未来的办公人员灵活地重新配置。每层办公室都有一个室外的有盖平台,从主立面向后看。从最上面的楼层可以进入更大的露天屋顶平台。
Upper floors have high ceilings and large window openings that allow natural light into the building and frame expansive views out to the neighborhood. Large interior spaces can be easily adapted to suit the needs of tenants and flexibly reconfigured for future office workers. Each office floor has an outdoor covered deck that sets back from the main façade. Larger open-air rooftop terraces are accessible from the uppermost floors.



外墙采用定制的预制和彩色混凝土板,与制造商Redondo Manufacturing紧密合作开发了外墙系统。设计和测试了多种骨料混合物,目的是软化混凝土的视觉质量。一个 "盐和胡椒 “的外露骨料表面处理为面板创造了丰富的触感,与建筑内部的混凝土柱和外露地板的光滑表面形成对比。这种制造方法使团队能够校准并保持严格的制造和安装公差,同时加快了施工进度。
Clad in custom precast and colored concrete panels, the façade system was developed in close collaboration with the fabricator Redondo Manufacturing. Multiple aggregate mixes were designed and tested with the goal of softening the visual qualities of the concrete. A “salt-and-pepper” exposed aggregate finish creates a rich and tactile finish to the panels that contrast with the smooth finish of the concrete columns and the exposed floors for the building’s interiors. This fabrication method allowed the team to calibrate and maintain tight manufacturing and installation tolerances while accelerating the construction timeline.














Architects: West of West
Area : 230000 ft²
Year : 2022
Photographs :Chase Daniel
Manufacturers : Accoya, Detla Millwork, Solarban Acuity
Interior Design : West of West
Civil Engineer : Civilitude
Landscape Architect : TBG
Structural Engineer : Architectural Engineers Collaborative
Mechanical, Electrical & Plumbing Engineer : Integral Group
General Contractor : Harvey Cleary
Concrete Subcontractor : Redondo
Principal In Charge : Clayton Taylor, AIA, NCARB, IIDA
Project Team : Jai Kumaran, AIA, Justin Cua, Jen Endozo, Keely O'Brien, Tom Adamson
Owner : The KOR Group / Lincoln Property Company
Muralist : Emily Eisenhart
Art Consultant : Met /Gal
City : Austin
Country : United States