檐楼存在于下面的住宅区和上面的未开发的森林峡谷之间的界面。狭长的十字形场地是不对称的,呈盘手状。英格兰湾、温哥华的天际线和斯坦利公园半岛的景观分布在地平线上,向南和向东南方向延伸。这个地区的邻里发展受到具体设计准则的规范,鼓励屋顶形式而不是强烈的体积表达。
The Eaves House exists at the interface between a residential neighborhood below and an undeveloped forested ravine above. The long and narrow cross-pitched site is asymmetrical with a pan-handle shape. Views to English Bay, the Vancouver skyline, and the Stanley Park peninsula are spread across the horizon to the south and south-east. Neighborhood development in this area is regulated by specific design guidelines that encourage roof forms rather than strong volumetric expression.



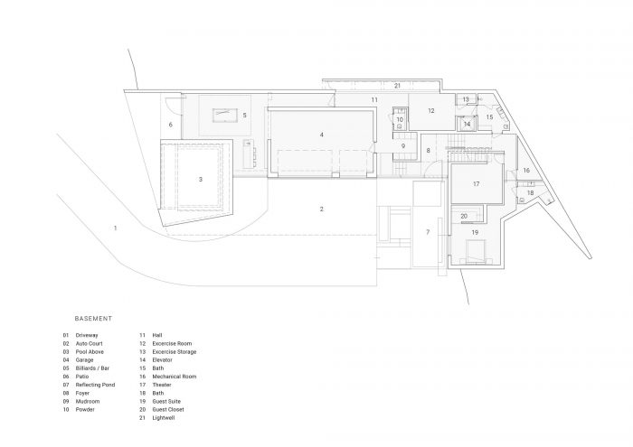
这座房子在形式上是由主楼的一个盘旋的混凝土基座组成的,它位于两个宽大的屋檐下。基座在空中形成了一个新的 "地面",它掩盖了地下一层的一个大型汽车庭院,并通过掩盖下面相邻房屋的道路和窗户来创造隐私。上面的两个挤出的屋顶体块也同样起到了编辑郊区前景的作用,同时框定并聚焦了水面的远景。
The house is formally comprised of a hovering concrete plinth at the main floor which sits underneath two broad eaves. The plinth forms a new “ground” in the air which obscures a large auto-court at the basement floor and creates privacy by masking the road and windows of adjacent houses below. The two extruded roof masses above similarly serve to edit out the suburban foreground while framing and focusing vistas toward the water.


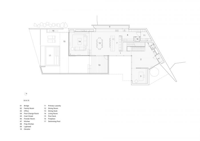
主楼和上层的项目沿着场地的长度延伸,与东侧广阔的室外空间平行,使室内空间向外扩展。从前到后,房子在 "视图背后的视图 "的序列中走出了自己的道路,在空间之间移动时创造了一种展开的电影体验。
The program at the main and upper floor is stretched along the length of the site, in parallel with the expansive east-flanking outdoor spaces which allow indoors spaces to expand outward. Front to back, the house steps out of its own way in a sequence of “views behind view” that creates an unfolding cinematic experience when moving between spaces.


该设计策略导致了一个非常规的街面立面—由于接近时的低视角--在很大程度上抑制了对墙壁、地板和窗户的传统解读。房子主要被看成是一对浮动的平面。在这些屋檐之间,建立了一个增强的视觉领域,可以在室内和室外享受,将人们的目光吸引到附近的社区之外。
The design strategy results in an unconventional street-level elevation that—due to the low angle of view on the approach—largely suppresses the conventional reading of walls, floors, and windows. The house is primarily viewed as a pair of floating planes. Between these eaves, an enhanced visual field is established that can be enjoyed inside and out, drawing the eye beyond the immediate neighborhood.













Designers: Mcleod Bovell Modern Houses
Area : 8085 ft²
Year : 2021
Photographs :Ema Peter
Manufacturers : Blanco, Caesarstone, Element 4, Hakwood
Builder : Postle Construction
Structural : Ennova Structural Engineers
Lead Designers : Matt McLeod, Lisa Bovell
Designer : Thomas Yuan, Alisha Maloney
Survey : Grewal & Associates
City : West Vancouver
Country : Canada