檐屋是位于果川的一对夫妇的住宅,描绘了如何重新解释韩国传统的檐屋类型,以达到高环境和美学标准。该项目位于观岳山和清溪川之间,可将周围的山景一览无余。该项目旨在实现自然坚守和空间体验共存的建筑成果。此外,在这个过程中,光与影之间的持续互动以及各种景物的交替都有望得到体现。
Eaves house, a home for a couple in Gwacheon, portrays how to re-interpret traditional Korean eave typology to achieve high environmental and aesthetical standards. Located in between Gwanaksan Mountain and Cheonggyecheon Mountain, the site offers a panoramic view of its surrounding mountains. The project aims to achieve an architectural outcome where the balance between nature perseverance and spatial experience coexist. Additionally, a continuous interplay between light and shadow along with various scenery interchanges are expected to tag along in the process.


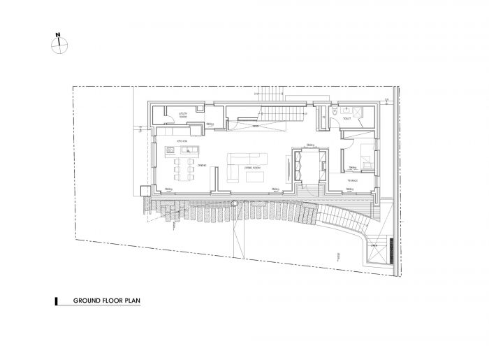
空间,自然的衔接--旨在提供一个最佳的室内居住环境,Eaves house提倡独特的战略叙事,建立了对两座山和周围住宅群的同质化感知。曲线的灵感来自于周围山脉的弧度,反映为周围景观的延伸,视野向着阳光普照的东南方向打开。
Space, an articulation of nature - Designed to provide an optimal indoor environment for living, Eaves house promotes uniquely strategic narratives, establishing a homogeneous perception of the two mountains and the surrounding housing complex. The curves, inspired by the curvature of the surrounding mountains, reflect as an extension of the surrounding landscape with vista opened towards the sun-lit Southeast.


大窗户允许不同的季节有不同的外部特征,而中央的天窗提供自然照明,但又能支持热空气通风。分别通过两端自然形成的屋檐形成遮挡,通过下面垂直组成的不锈钢管过滤日光。延伸到门户公园之外的冠岳山和清溪山的山顶,在这里通过流线连接起来。
Large windows allow various exterior features from season to season, while the central skylight provides natural lighting yet functions to support hot air ventilation. Respectively, shades are formed through the naturally established eaves at both ends, filtering daylight through the vertically composed stainless steel pipes beneath. The Peak of Gwanak Mountain and Cheonggyesan Mountain, extended beyond the Gateway Park, is connected here through streams of lines.

屋檐,不断发展的世袭范本--作为设计的主要特征而被强调的屋檐,从根本上受到了韩国传统屋顶(Cheo-ma)的启发。下面的结构是白色油漆的不锈钢管,其图案分别是对韩国传统美学的反映。该设计重新解释了结构功能,以适应现代化的时代。这些组成的线条在白天过滤阳光,而在晚上控制安装的照明设备的光线发射。
Eaves, the evolving hereditary paradigm - The eaves, highlighted as the main feature of the design, were inspired radically by the Korean Traditional Roof (Cheo-ma). Structured underneath are white-painted stainless pipes, patterned respectively as reflections upon the original Korean traditional aesthetics. The design re-interpreted the structural function to suit the modernized era. These composed lines filter sunlight in the daytime while controlling light emission from installed lightings at night.



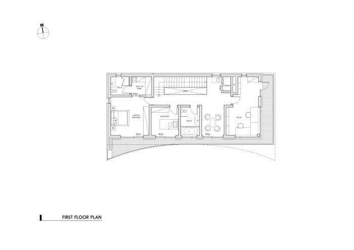
另一方面,从建筑师的角度来看,这种指定的适应性的反面也被视为一种战略方法。在屋檐下,剩余的区域被带到前面,作为两边的重点阳台,为各自的空间服务。一个为厨房区提供遮阳,而另一个则延伸到了书房区的周边。因此,自然和建筑这两个领域之间的进出关系被认为是无界限的,通过这些感知的中间空间的存在而相互介入。
On the other hand, the counter to this specified adaptation is also seen as a strategical approach from the architect’s perspective. Below the eaves, the residual areas are brought forward as a focal balcony on each side, serving the respective spaces. One caters shade to the kitchen area, while the other extends the perimeter of the study area. Hence, the in and out relationship between the two realms of nature and architecture is considered boundless, intervening one another by the presence of these perceptual intermediate spaces.

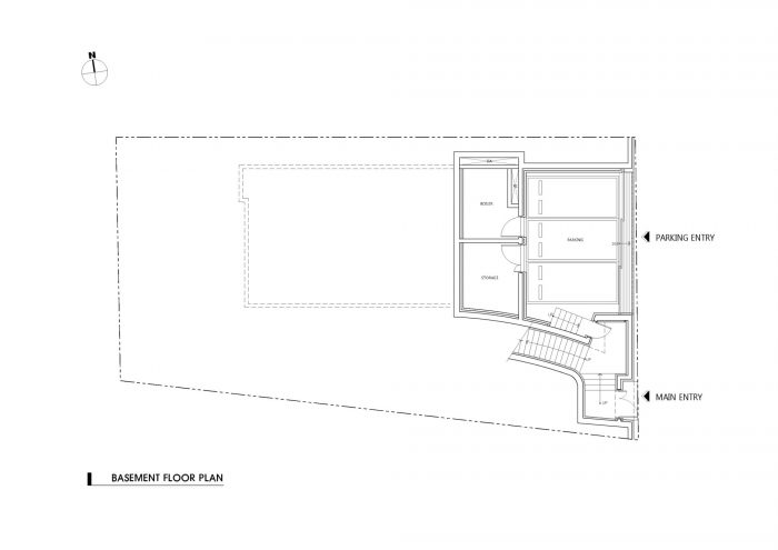
被动式房屋--Eaves房屋被高水平的气密结构和绝缘材料所封闭,内部与任何外部干预隔离。在支持居住方面,房子采用了被动式住房标准,在内部循环使用基本能源。热回收系统(HRV)的引入支持实现高性能的通风和空气过滤的房屋。在地下室,安装了低噪音过滤器,从内部吸入有毒的呼出空气,同时将外部的新鲜空气在内部循环。这些措施通过设计和施工有效地减少了客户的年度能源消耗。
Passive Housing - Eaves house is sealed off with a high-level airtight construction and insulation, internally isolated from any external intervention. In supporting inhabitation, the house adopted a Passive Housing Standard to circulate essentials energy within. The introduction of the heat recovery system (HRV) supports the realization of high-performance ventilation and air filtration to the house. In the basement, low noise filters were installed, drawing in toxic exhaled air from inside while circulating fresh air from outside throughout internally. These measures effectively reduce the annual energy consumption of the client through design and construction.
























Architects: JOHO Architecture
Area : 264 m²
Year : 2019
Photographs :Kyungsub Shin, Kyong Noh
Architect In Charge : Jeonghoon Lee
Design Team : JOHO Architecture
City : Gwacheon-si
Country : South Korea