生态圈是一个发展基于环境的教育、保护和社区活动的设施,位于北万隆一个美丽的集水区。客户希望设施以集会空间和住宿的形式,提出环境友好型建筑的概念。
Eco Circle is a facility for developing environmental-based education, conservation, and community activities that stand on a beautiful water catchment area in North Bandung. The client wants facilities in the form of gathering spaces and lodging that put forward the concept of environmentally friendly architecture.




我们尽量保持现有的植被和土地轮廓状态,使开发只预留20%的土地。在80%的空地上自然生长的香樟树、松树和梁柳树用陶土砖做框架,以创造自然和建筑之间的连续性。
We try to maintain the existing vegetation and land contours status so that development only sets aside 20% of the land. Jambon trees, pine trees, and liang liu trees that grow naturally in 80% of the open area are framed with terracotta bricks to create continuity between nature and buildings.



红砖被用于覆盖花园部分,如露天剧场和一些外墙。除了具有成本效益之外,赤土砖还非常适用于花园的应用,因为它可以作为孔隙将雨水排入土壤。此外,如果应用在墙上,砖可以在建筑中创造出一种微风的感觉。
Terracotta brick is applied covering garden parts such as the amphitheater and some outside walls. Other than being cost-effective, terracotta brick is very suitable for garden application because it acts as pores to drain rainwater into the soil. In addition, if applied to the wall, the brick can create a breeze feel in the building.


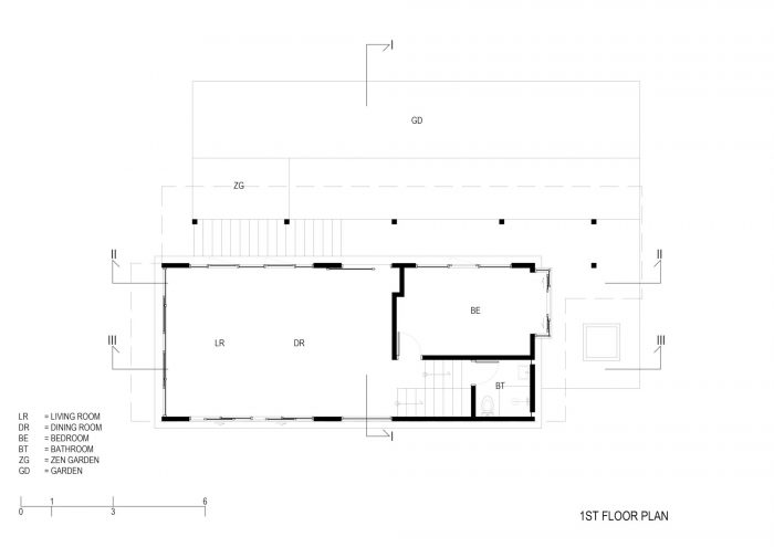
生态圈的三个主要建筑是一个客户的私人住宅和两个为参与者准备的住所。这两座建筑都是用白色油漆,给人以建筑和周围森林的对比印象。我们还选择了白色油漆,因为它能起到隔热的作用,非常适用于保持室温的冷却。
The three main buildings in the Eco Circle are one private house of the client and two lodges for participants. Both are painted in white to give the impression of contrast between the building and the surrounding forest. We also chose white paint because it acts as a heat insulator which is very suitable to keep the room temperature cool.

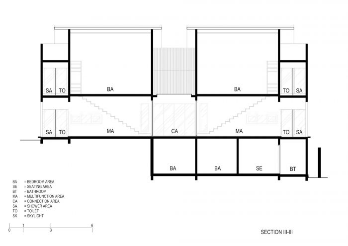
我们在建筑内部不使用空调系统。北万隆地区已经相当清爽了。我们还应用了落地窗和纵横交错的开口,使空气更加流通。除了材料的选择,这个项目还应用了可持续建筑管理。对于其能源需求,Eco Circle采用了太阳能电池板系统,可以支持白天和晚上的能源需求。生态圈也有渗水井,可以过滤、回收和再利用废水。
We do not use the air conditioning system in the interior of the building. The North Bandung area is already quite refreshing. We also applied floor-to-ceiling windows and criss-cross openings for better air circulation. Apart from material selection, this project also applies sustainable building management. For its energy needs, Eco Circle uses a solar panel system that can support energy needs, both during the day and at night. Eco Circle also has infiltration wells that can filter, recycle, and reuse wastewater.






















Architects: Studio Avana
Area: 1300 m²
Year: 2020
Photographs: KIE
Manufacturers: AutoDesk, Lumion, Adobe, Cisangkan, Kool Roof, Omah Bata, Panasonic Solar, Philips, ROMAN, Trimble Navigation, YKK Nexsta
Lead Architects: Martin Pradipta, Ramos Saedi, Rayner Tulus, Widya Dwifrilia, Rieka Aprilia Tanuy
Collaborators:Seniman Sunaryo, Ferry Sutrisna Widjaja
City:Bandung
Country:Indonesia