色彩生态 "为达特福德一个被忽视的角落带来了公共功能,为中央公园里重新设计的生态岛充当了快乐的监护人。这个木制结构是一个社区艺术工作室,观鸟的藏身处,以及公园的庇护所,所有这些都融为一体。地面上有一个半户外的瓷砖教室和存储空间,楼上有一个封闭的房间,可以看到达伦河和周围的树木。在上层,各种大小的百叶窗可以进行各种活动,从隐藏的野生动物观察和绘画,到延伸到公园的公共活动。
Ecology of Colour brings public function to a neglected corner of Dartford by acting as a jolly custodian for the re-imagined Ecology Island in Central Park. The timber structure is a community arts studio, bird-watching hide, and park shelter all rolled into one. There is a semi- outdoor tiled classroom and storage space at ground level with an enclosed room upstairs offering views of the River Darent and surrounding trees. On the upper floor, shutters of various sizes allow for activities ranging from hidden wildlife watching and drawing, to public events that spill out into the park.


Studio Weave从Artlands得到的简报是通过强调社区参与,为一个有意义的教育资源开发设计。这个地方是城市背景下的一个好奇的乡村口袋,位于北肯特郡中心的一个野生的、有树林的半岛的顶端。
Studio Weave's brief from Artlands was to develop designs for a meaningful educational resource through placing emphasis on community engagement. The site is a curious rural pocket within an urban context, located at the tip of a wild, wooded peninsula in the heart of the North Kent town.

两个相互交织的循环的创造指导了这个项目:提取彩色染料并将其用于工艺品的过程,以及这些植物吸引的野生动物,包括昆虫和鸟。自2012年9月完工以来,该建筑已成为游客探索和学习植物、昆虫和鸟类的绚丽色彩、提取天然彩色染料的过程,以及染料在工艺和建筑中的应用的资源。
The creation of two intertwined cycles has guided the project: the process of extracting colour dyes and using them for crafts, and the wildlife these plants attract including insects and birds. Since its completion in September 2012, the building has become a resource for visitors to explore and learn about plants, insects and birds in all their splendid colour, the process involved in extracting natural colour dyes, and the applications of dyes in craft and architecture.

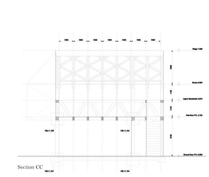
颜色生态馆的建设是一个简陋的施工过程,在现场只用了两个月,完成的预算是4.5万英镑。英国木材是主要的建筑材料,落叶松用于结构框架,而覆层则由雪松制成。它的平面尺寸为4.5米乘7.5米,屋檐高度为5米,屋脊高度为7米。这个简单的结构没有玻璃窗或主要服务设施,提供可从外面进入的储存空间,可以储存各种用户的设备和材料。地面上的有盖空间也可以用作干燥区(用于染色车间)。
The building of the Ecology of Colour was a humble construction process that took just two months on site and completed to a budget of £45k. British timber is the predominant building material with Larch used for the structural frame while the cladding is made from Cedar. It measures 4.5 m by 7.5 m in plan and reaches 5m to the eaves and 7m to the ridge in height. The simple structure has no glass windows or mains services and offers storage space accessible from outside where various users' equipment and materials can be stored. The covered space at ground level can also be used as a drying area (for dyeing workshops).

雪松包层被染上了由平面设计师Nous Vous设计的名为 "喜悦 "的图案。在安装之前,Nous Vous与当地居民和艺术家团队一起举办了一系列研讨会,为构成外部覆层的144块板子上色。
The Cedar cladding is stained with a pattern called ‘Joy’, designed by graphic designers Nous Vous. Prior to its installation, Nous Vous ran a series of workshops with a team of local residents and artists to paint all of the 144 panels, which form the external cladding.

设计结构中最雄心勃勃的一个方面是上层的铰链式 "鸟嘴 "开口,东立面的整面墙通过一个简单的滑轮系统一下子就打开。当鸟嘴打开时,它给人一种在树冠中的树屋的效果,可以看到河水旋转而过。
One of the most ambitious aspects of the design's structure is the hinged 'beak' opening on the upper floor, where the entire wall on the east elevation opens in one fell swoop through a simple pulley system. When the beak is open it gives the effect of being up in a treehouse among the canopy, with views of the river swirling past.













Architects: Studio Weave
Year : 2012
Photographs :Jim Stephenson
City:DARTFORD
Country:UNITED KINGDOM