这个项目的目的是重新设计和重建位于哈利法克斯西区的一个过时的住宅的外墙。几十年来,这所住宅经历了多次糟糕的翻新,因此,我们的团队旨在将乙烯基和木质包层剥离,回到原来的木板覆面,并重建住宅的外部,目的是创造一个在设计和施工方面都可持续的项目。只使用最高质量的产品,这所房子的外墙是以木材为首要材料进行重建的。房屋的主体部分采用Maibec的Rabbited Bevel护墙板和EM Plus安装系统,前后的重点部分则采用当地的粗锯铁杉。最终的结果是一个引人注目的现代住宅,其可持续的材料调色板肯定会经得起时间的考验。
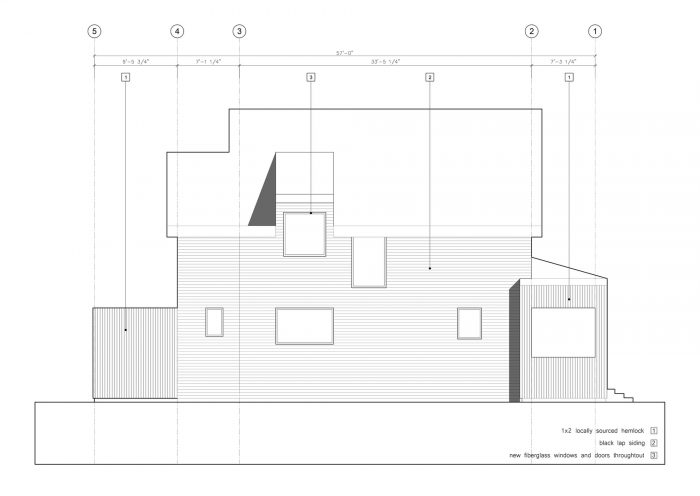
The aim of this project was to redesign and reconstruct the envelope of a dated home in Halifax's West End. Over the decades this residence was the subject of a number of poorly executed renovations and as a result our team aimed to strip the layers of vinyl and wood cladding back to the original shiplap sheathing and rebuild the exterior of the home with the intention of creating a project that was sustainable in both design and construction practices. Using only the highest quality products, the envelope of this house was rebuilt with wood as the number one material choice. The main house volume was clad in Maibec's Rabbited Bevel siding with the EM Plus installation system and the front and rear accent volumes were clad in locally sourced rough sawn Hemlock. The final result is a strikingly contemporary residence with a sustainable material palette that will certainly stand the test of time.




产品说明。- VaproShield-Reveal Shield IT集成胶带 - 紫外线稳定、黑色机械连接、防水透汽的集成胶带的空气屏障膜。这个产品使我们能够在这个项目的前部和后部用1x2的粗锯铁杉实现开放式连接的包层。
Product Description. - VaproShield- Reveal Shield IT Integrated Tape – A UV stable, black mechanically attached, water resistive vapor permeable air barrier membrane with integrated tape. This product enabled us to achieve the open joint cladding with1x2 rough sawn hemlock on the front and rear volumes of this project.












Architects: Peter Braithwaite Studio
Area : 2400 ft²
Year : 2016
Photographs :Julian Parkinson
Manufacturers : Maibec, Norwood Windows, VaproShield
City:HALIFAX REGIONAL MUNICIPALITY
Country:Canada