该项目涉及将两套顶层公寓、各自的停车场、屋顶和外部空间结合起来,创造一个单一的跨代家庭住宅,拥有丰富的灵活的生活和工作空间,一个地下室康复水疗中心,以及两个屋顶上的圣卡亭。
The project involved combining two penthouse apartments, their respective car parking, rooftops, and exterior spaces to create a singular inter-generational family home with an abundance of flexible living and working spaces, a basement rehabilitation spa, and two rooftop sukkah pavilions.




一系列关键概念中的第一个是贯穿整个公寓的 "图书馆脊柱",它容纳了这个家庭的书籍、艺术和文物收藏。图书馆脊柱也被用来庆祝入口大厅,并定义水平循环和垂直循环,因为细木工制品被嵌入到楼梯中。
The first in a series of key concepts is the ‘library spine’ running the entire length of the apartment housing the family's collection of books, art, and artifacts. The library spine is also used to celebrate the entrance lobby and define both the horizontal circulation and the vertical circulation as the joinery is embedded into the staircase.


第二个关键概念是一系列的 "魔盒 "厨房,它们是高度功能性的,但又是最小的体积,可以打开和关闭,划分出公寓的不同区域。它们被定义为抽象的颜色,与其他温暖和自然的材料色调形成对比。彩色物体的使用在浴室的石块、壁炉和定制的家具作品中重复出现。
The second key concept is a series of ‘magic box’ kitchens that are highly functional yet minimal volumes, that open and close and delineate the different zones of the apartment. They are defined by their abstract colors that sit in contrast to an otherwise warm and natural material palette. The use of colored objects is repeated in the bathroom stonework, fireplaces, and bespoke furniture pieces.


第三项干预措施是一系列半圆形的椭圆天窗,它庆祝了两个主要的生活空间,并参考了客户对当地的装饰艺术建筑的热情。这种纯粹的几何形状进一步加强了彩色体量所带来的抽象构成。这个主题也被引用到整个公寓中,在需要自然光的地方有较小的半圆形和圆形的椭圆。
The third intervention is a series of semi-circular oculus skylights, which celebrate the two main living spaces and reference the client's passion for the local Art Deco architecture of the neighborhood. This pure geometry furthers the abstract composition given by the colored volumes. The theme is also referenced throughout the apartment with smaller semi-circular and circular oculus where natural light was needed.



公寓的东部是主要的社交区域,包括主要的厨房、客厅和餐厅,而公寓的西部则不太正式,有利于放松,有一个内部/外部的休息室,被称为 "晚间花园"。该公寓也被松散地定义为代际关系,西端为家庭的年轻成员和较年长的成员提供隐私。最后,这套公寓也是面向未来的,如果需要的话,以后可以一分为二。
To the east of the apartment are the main active social areas including the main kitchen living and dining, whilst the west of the apartment is less formal and conducive to relaxing with an interior/exterior lounge coined the ‘Evening Garden’. The apartment is also loosely defined by generational lines with the Western end providing privacy between the younger members of the family and the more senior. Lastly, the apartment is also future-proofed to allow for splitting in two later down the track if required.


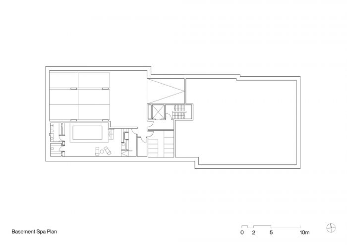
楼下的水疗中心利用原来的地下室停车场,创建了一个私人健康空间,包括一个健身游泳池、桑拿、小厨房、更衣室和一个灵活的康复区。虽然是一个没有自然光的地下空间,但精心使用了大气的间接照明、温暖的颜色和天然材料,提供了一个类似于芬兰桑拿或日本温泉的整体恢复性体验。
Downstairs the spa utilizes what was a basement car park, to create a private wellness space including a fitness pool, sauna, kitchenette, change rooms, and a flexible rehabilitation area. Although a subterranean space with no natural light, the careful use of atmospheric indirect lighting, warm colors, and natural materials provides a holistic restorative experience in likening to a Finnish sauna or Japanese Onsen.


在屋顶上,两个 "Sukkah “亭子在Sukkot节期间提供了半封闭的烹饪、用餐和聚会区域,并可作为全年使用的一般户外生活空间。这些最小的结构具有高度的可操作性,有遮阳墙和竹制雨棚。亭子被设置在一个广阔的户外区域,周边有曲线形的花盆和树叶,提供了一种隐私感和避风的机会,同时也允许向外看。
On the rooftop, two ‘sukkah’ pavilions provide semi-enclosed cooking, dinning, and gathering areas during the festival of Sukkot, and double up as general outdoor living spaces for use year-round. The minimal structures are highly operable with shade walls and bamboo canopies. The pavilions are set within an expansive outdoor area with curvilinear planters lining the perimeter and foliage that provides a sense of privacy and respite from the wind whilst also allowing views out.












Architects: Office Alex Nicholls
Area: 700 m²
Year: 2022
Photographs:Rory Gardiner
Manufacturers: Vitrocsa, Schüco, Viabizzuno
Project Lead: Alex Nicholls
Build: Cobild
Joinery: Touchwood
City: Melbourne
Country: Australia