该项目涉及对位于一栋新建的5层楼的阁楼上的公寓的组织。阁楼的空间将成为位于低层的公寓的延伸,它不再适合接待多年来从2人到4人的家庭。
The project involves the organization of an apartment located in the attic of a newly built building with 5 floors. The attic space was to become an extension of the apartment located on the lower floor, which was no longer suitable to host family who over the years had passed from 2 to 4 people.




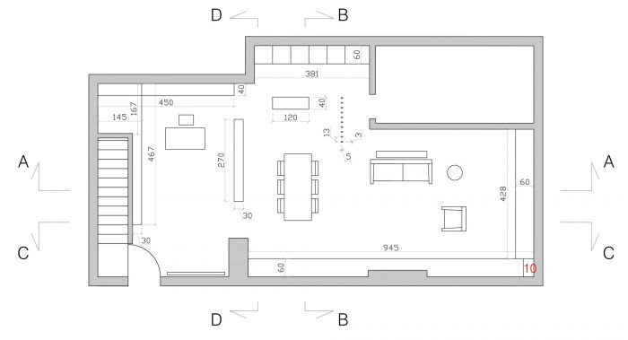
我们的想法是把这个现有的空间变成新的客厅、餐厅和家庭书房,其中还创建了一个新的厕所。新的空间成为房子的新生活区,而位于下层的现有公寓则成为睡眠区。
The idea is to turn this existing space in the new living, dining and family studies, in which a new toilet was also created. The new space becomes the new living area of the house while the existing flat situated on the lower level becomes the sleeping area.


家具的设计确定了家庭空间的等级,定义了生活的仪式性时刻。元素的细节定义了室内空间,使人可以识别由视觉关系组合在一起的居住场所,这使得空间变得很有特色,同时也很有层次感。
The design of the furnishings identifies the hierarchies of the domestic space, defining the ritual moments of living. The detail of the elements defines the interior space, making recognizable the dwelling places that are put together by a visual relationship, which makes the space dinamic and at the same time hierarchized.
















Architects: Archiplanstudio
Area : 102 m²
Year : 2016
Photographs :Davide Galli
Manufacturers : Cargo, Emeco, Foster
City:BUSTO ARSIZIO
Country:Italy