Aparté项目由两个主要部分组成:一个公寓式酒店和一个集体住宅区。位于图卢兹市中心的Compans Cafarelli社区(法国奥克西塔尼地区)。这个混合用途项目位于Brouardel-Europe运营城市规划项目的区域内。项目简介包括两个主要部分,一个公寓式酒店和一个集体住宅区。
The Aparté project is the construction of two main components, an apartment hotel, and a collective housing block. In the Compans Cafarelli neighborhood, in the heart of central Toulouse (Occitanie region, France). This mixed-use project is located within the area of the Brouardel-Europe operational urban planning project. The brief included two main components, an apartment hotel, and a collective housing block.



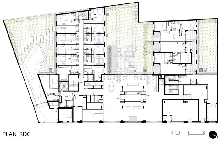
在底层,公寓式酒店的公共区域以及住宅区的主厅,通过大窗户让人们看到景观内院,有助于恢复贝亚尼街的活力。街边立面的平衡和中性设计在现有的街道立面和新开发的街区之间创造了一个过渡。
On the ground floor, the common areas of the apartment hotel, as well as the main hall of the housing block, contribute to rejuvenating the rue du Béarnais through large windows allowing views into the landscaped inner courtyard. The balanced and neutral design of the street side façade creates a transition between the existing facades of the street and the new developing neighborhood.

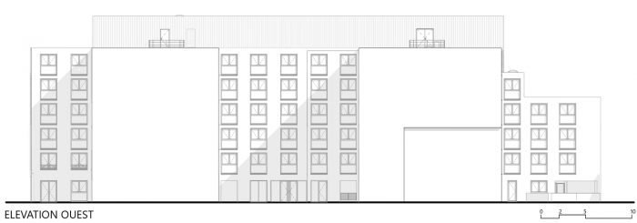
建筑布局采用了梳状,在贝亚尼街产生了一个连续的城市外墙,同时将酒店和住房公寓向景观花园开放。这两个功能单元在设计上是根本不同的,特别是在它们的使用和与公共空间的关系上。然而,该项目通过其材料和体量设计,试图展示一个统一的、低调的形象。
The building layout adopts a comb shape, generating a continuous urban facade on the rue du Béarnais whilst opening up the hotel and housing apartments onto the landscaped garden. These two functional units are fundamentally different in their design, specifically in their use and relationship to the public space. The project, through its material and volume design, seeks however to display a unified and understated image.


沿街的主楼高出地面四层,完成了城市立面的设计,顶层的凹槽降低了建筑的规模。立面设计是严格规则的,参考了图卢兹Haussmannian街道的典型收入房屋。外墙上窗台的连续性创造了一种节奏,打破了窗户的重复性。
The main building along the street rises to four stories above ground level and completes the urban façade, with a recess at the top level reducing the scale of the building. The façade design is strictly regular, referencing the revenue houses typical of the Haussmannian streets of Toulouse. The continuity of windowsills on the façade creates a rhythm that breaks the repetitiveness of the windows.

底层成为街道的公共空间和住宅的私人空间之间的过渡空间,包含了公寓酒店的公共空间、住宅区的主厅以及通往地下停车场的通道。因此,底层大部分是玻璃,以方便识别这些空间,同时也通过向街道开放这些空间来恢复和振兴街景。
The ground floor becomes a transitional space between the public space of the street and the private spaces of the residence and contains the common spaces of the apartment hotel, the main hall of the housing bloc as well as access to the underground car park. The ground floor is therefore largely glazed to easily identify these spaces, but also to rejuvenate and reinvigorate the streetscape by opening the spaces onto the street.


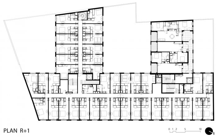
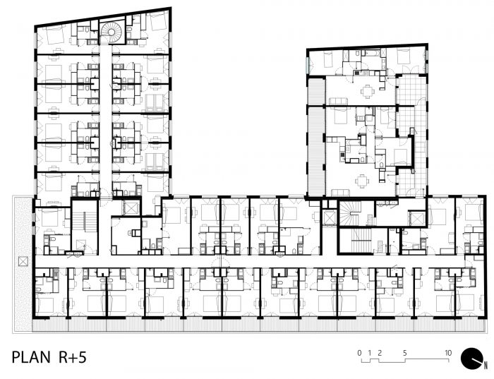
与街道和主楼垂直的两个侧翼位于内部花园的两侧。北翼由所有双视角的公寓组成,而南翼则包含额外的酒店公寓。所有的生活区都通过大型窗户向花园开放。
Two wings perpendicular to the street and main building flank the inner garden. The northern wing is composed of all dual-aspect apartments, whilst the southern flank contains additional hotel apartments. All the living areas generously open onto the garden through large-scale windows.


主体建筑的屋檐两端交错排列,使该项目在街景中更加清晰。底层的公共区域自愿使用玻璃,而技术空间则由同样比例的百叶板封闭。
The gable ends of the main building are staggered to articulate the project in the streetscape. The ground floor is voluntarily largely glazed on the common areas whilst the technical spaces are closed off by louvered panels with the same proportions.

建筑物的底部使用了预制的灰色混凝土柱子和门楣,这是一种特别好的、持久的材料,在重复的模式和细节中提供了所需的美学和纯朴的品质。底层的大窗板是谨慎的,扩大了外墙的空间和比例,而上层的窗户是白色的,与预制混凝土的浅灰色相联系。传统的向内开启的平开窗为立面增添了家庭特色,而宽大的窗户尺寸允许从房间向外开放的视野,并给人以阳台的印象,降低的窗台和垂直的栏杆栏杆加强了这种印象。
建筑的结构是用壁柱和带有各种砖砌图案的砖包层来表达的。错落有致的屋檐末端也采用了装饰砖,从贝亚尼街的入口处看去,增加了动态设计,同时也为招牌创造了背景,成为街景中的焦点。因此,该项目发现自己牢牢扎根于图卢兹这座砖块之城。
The base of the building is built using prefabricated grey concrete pillars and lintels, a particularly well-executed, lasting material that offered the desired qualities of aesthetic and pure simplicity in the repetitive pattern and detailing. Whilst the large window paneling of the groundfloor is discreet and dilates the spaces and proportions of the facade, the windows of the upper levels are white to link with the light grey of the prefab concrete. The traditional casement windows opening inwards add a domestic feature to the façade, whilst the generous dimensions of the windows allow an open view from the rooms to the outside and give the impression of a balcony, reinforced by the lowered windowsill and vertical banister railing.
The structure of the building is expressed using pilasters and brick cladding with various bricklaying patterns. The staggered gable ends are also clad in ornamented brick and add to the dynamic design as seen from the entrance of the rue du Béarnais, whilst also creating a backdrop for signage and a focal point in the streetscape. The project thus finds itself firmly anchored in the city of brick that is Toulouse.




















Architects: Taillandier Architectes Associés
Area : 7015 m²
Year : 2021
Photographs :Roland Halbe
Manufacturers : Terreal, Weber, Les Zelles
Energy Engineering : ABM Energie Conseil
Structure Engineering : Ebm
Head Of Project : Laurie Corrorcher
Client : Kaufman & Broad
Hotel Manager : Odalys
Fluids Engineering : New Energy concept
Safety & Security : Bureau Veritas
City : Toulouse
Country : France