恩哈科大厦距离最近的郊区火车站步行约15分钟,位于住宅区和商业-政府混合区的边界。客户联系了我们,因为他们正在考虑这个地方,但不确定在那里租赁的商业建筑是否能够吸引稳定的人流,因为这个地方离主干道有一个街区,而且离火车站不是很近。
Located about 15 minutes on foot from the nearest train station in a suburb, Enhako Building sits on the border between a residential neighborhood and a mixed commercial-government district. The client contacted us as they were considering the site but unsure whether a leased commercial building there would be able to attract a steady flow of people given the location is a block off the main road and not very close to the station.





平日里,老人、家庭主妇和儿童因各种原因穿过上述两个区的边界。商业区包含了老年人经常光顾的诊所、骨科医生办公室和福利设施;家庭主妇聚集的超市和咖啡馆;以及儿童参加的考试准备中心。周末,家庭在市政厅停车场举行的早市上购物,在大公园里消磨时间,并在咖啡馆或家庭餐馆用餐,然后再回到住宅区。我们设想该建筑成为人们熟悉的栖息地,来往于这两个区域之间,并有阳台供他们停下来休息。
On weekdays, elderly people, homemakers, and children cross the border between the two districts mentioned above for various reasons. The commercial district contains a mix of clinics, osteopath offices, and welfare facilities frequented by the elderly; supermarkets and cafés where homemakers gather; and test-prep centers attended by children. On weekends, families shop at the morning market held in the parking lot of the city hall, spend time at the large park, and eat at cafés or family restaurants before returning to the residential neighborhood. We envisioned the building as a familiar perch for people coming and going between the two areas, with verandas where they can stop and rest.



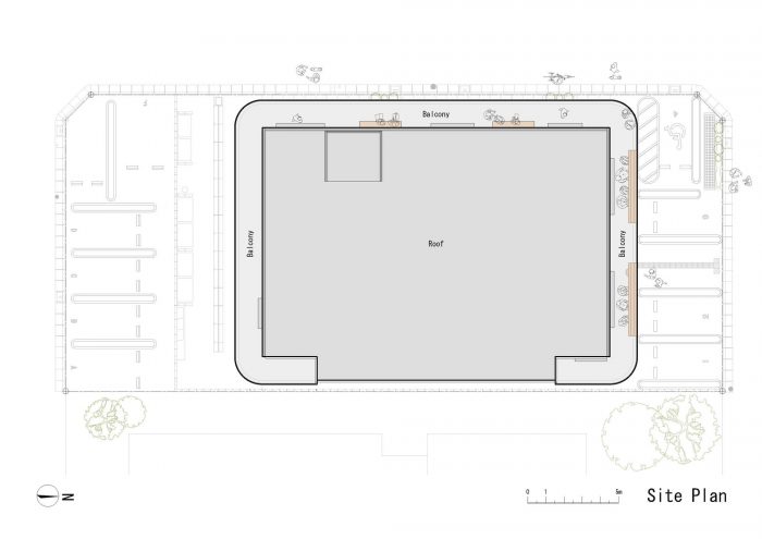
无论周末还是工作日,人们都会在建筑周围流动。虽然人流比靠近车站的地方要少,但有可靠的社区步行交通。关注这一点,我们创造了一个毗邻街道的长廊,并在第二和第三层包裹了阳台。阳台的底部形成了有机的形状,温暖的木制屋檐,吸引了人们的注意力,并确定了建筑的设计。
People flow around the building on both weekends and weekdays. While the crowds are smaller than one would find closer to a station, there is reliable community foot traffic. Focusing on this, we created a veranda adjacent to the street and wrapped balconies around the second and third stories. The underside of the balconies form organically shaped, warm wooden eaves that draw people in and define the building’s design.



该建筑朝北,以利用穿过绿树成荫的街道到公园和市政厅的景观,并邀请附近的夏季节日和植物博览会的景观和声音。这座多用途的建筑包含商店和诊所,阳台诱人地伸向街道,使所有年龄段的人在工作日和周末都可以在附近散步的时候停下来。我们的目标是设计一个商业建筑,让社区成员以这种方式来维持。室内可以整体出租,按楼层出租,或根据需要按单元出租。
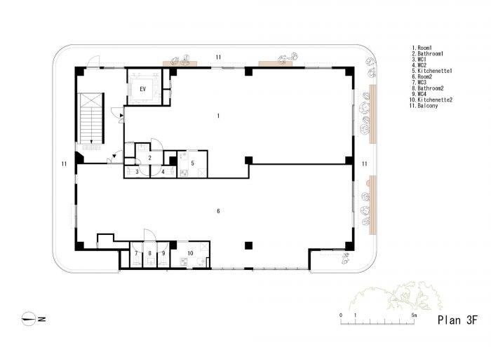
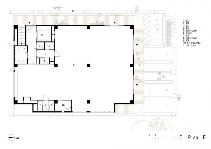
The building faces north to take advantage of views across a tree-lined street to the park and city hall, and to invite in the sights and sounds of summer festivals and plant fairs nearby. The multi-use building contains shops and a clinic, and the veranda reaches invitingly into the street so that people of all ages can stop by on their outings around the neighborhood on both weekdays and weekends. Our goal was to design a commercial building that will be sustained in this way by members of the community. The interior can be rented as a whole, by the floor, or by unit depending on needs.















Architects: Organic Design Inc.
Area : 784 m²
Year : 2022
Photographs :Yukinori Okamura
Structure Engineering : Yoshio Kimura Structure Engineering Limited
Builder : Gunpohaxia Corporation
Project Team : Hideo Kumaki, Rei Maki
City : Saitama
Country : Japan