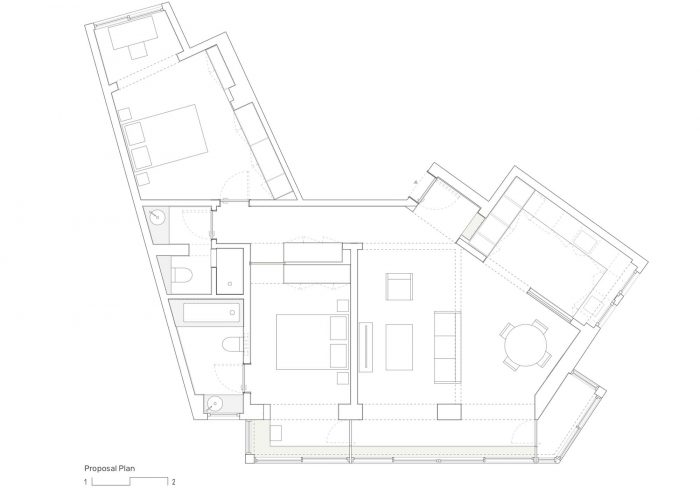
该公寓位于里斯本的Rua de Entrecampos,面积约为98平方米,其主要特点是过度分割和空间的程序性分配不佳。干预的目的是,通过一个简单的手势,优化空间。
The apartment, with about 98 m², located in Rua de Entrecampos, Lisbon, was characterized mainly by excessive compartmentalization and a poor programmatic distribution of spaces. The intervention intends, with a simple gesture, to optimize the space.



最大的变化与房屋的社交区域--厨房和客厅--被重新定位有关。他们的重新设计使公寓的入口没有负担,并更好地利用了可用面积。
The biggest change is related to the social areas of the house - kitchen and living room - that were repositioned. Their redesign allows the entrance to the apartment to be unburdened and makes better use of the available area.

厨房和大部分的覆盖物都被替换了,只有木质镶木地板除外,它保持了公寓的特色。增加了一块木工板,从客厅一直延伸到卧室,在视觉上统一了空间。
The kitchen and most of the floorings were replaced, with the exception of the wooden parquet flooring, which maintains the apartment's character. A piece of woodwork was added that runs through the entire space from the living room to the bedroom, visually unifying the space.













Architects: Arriba
Area : 98 m²
Year : 2019
Photographs :Hugo Santos Silva
Project Team : Ana Galrão, Filipe Ferreira, José Andrade Rocha, Miguel Negrão, Raffaella Pudda
City : Lisbon
Country : Portugal