这个项目是在我们的身体和几天后我们的思想被禁锢时构思的。这个新的家庭会不会是另一种禁锢?我们想知道。这也许将从现在开始成为项目的新问题。因为如果建筑是好的,因为它是灵活的、明亮的和健康的,它将忍受禁锢和任何未来的情况。因为它将是适应性的、进化的和关怀的。
The project was conceived just when our bodies and after a few days our minds were confined. Could this new household up another confinement? We wonder. This will be perhaps from now on the new question to project. Because if architecture is good because it is flexible, bright, and healthy, it will endure confinement and any future situation. Because it will be adaptive, evolutionary, and caring.





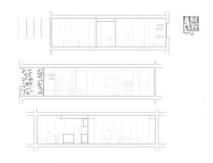
我们在城市中心遇到了一个80年代的公寓。极度分割和组织的等级空间是另一个时代、另一种生活方式的典型。
We encounter an 80s flat in the center of the city. Extremely compartmentalized and organized with hierarchical spaces typical of another era, of another way of living.


自然光过早地被麻痹了,循环迫使人们进行不自然的运动,不同的房间只用于一种活动。
Natural light was paralyzed too soon, circulations forced too unnatural movements and the different rooms were for only one activity.


人的生活在人的环境中。有三件事是需要解决的:室外空间(更多的露台),使用的灵活性(可交换的房间),自我保健空间(远程办公,放松),和环境质量(更多的自然光,健康的材料)。
Mens sana in habitat sano. Three things were the obsession to solve: outdoor space (more terrace), the flexibility of use (interchangeable rooms), self-care spaces (teleworking, relaxation), and environmental quality (natural light more hours, healthy materials).

我们强迫冲突(理解为积极的东西),我们挑起自己的异国情调和令人回味的建筑,将忘记大陆,重新创造一个仔细和微妙的内容。
We force conflict (understood as something positive), we provoke our own exoticism and evocative architecture that would forget the continent and recreate a careful and delicate content.



房子以一种有机和自然的方式穿越,房间之间的过渡是相称的。我们用自然材料得到了一个健康的环境:竹木、石灰漆和白垩漆。它们构成了一个具有 "sssh "效果的家,在平静中,在和平中......
The house is traversed in an organic and natural way and the transitions between rooms are proportional. We got a healthy environment with natural materials: bamboo wood, lime paints and chalk lacquers. They make up a home with an "sssh" effect, in calm, in peace ...






Architects: Laura Ortín Arquitectura
Area: 1399 ft²
Year: 2021
Photographs: David Frutos
Manufacturers: AutoDesk, JUNG, Arkoslight, Kerakoll, AUTÉNTICO, Adobe Systems Incorporated, CERÁMICA CIELO, Cement Design, ICÓNICO, Porcelanosa, Robert McNeel & Associates, moso-bamboo
City:MURCIA
Country:Spain