Vilanova i la Geltrú的这个街区的承重墙结构最初定义了一个没有空间层次的无序住宅,其中的路径损害了房子中心的实例,使其始终与一个小庭院的灯光和公共楼梯封闭。
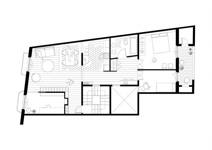
The load-bearing wall structure of this block by Vilanova i la Geltrú initially defined a disordered residence without hierarchy of spaces, where the pathways compromised the instances in the center of the house to be always closed to a small courtyard of lights and the communal staircase.



我们的建议集中在房子中心的性能上,获得一个膝关节,作为工作室、储藏室、洗衣房和厨房的功能。
Our proposal focuses on the performance in the center of the house, obtaining a kneecap that functions as studio, storage, laundry and kitchen.

通过这种方式,新的空间和循环组织使我们能够将卧室置于北部,将休息室置于南部,从住宅的一端向另一端开放视觉,并将日常和夜间空间安排在中央核心区的两侧。
In this way, the new organization of spaces and circulations allowed us to locate the bedrooms to the north and the living room to the south, opening visuals from one end of the residence to the other, and ordering the daily and nightly spaces on both sides of the central core.

我们保留了最初的房间结构,在墙上做了新的门,减少了流通空间,使房子向南面的光线开放。
Conserving the initial structure of rooms, we made new doors in the walls, reducing the circulation spaces and opening the house to the light of its southern façade.

封口的修改与小的切口相结合,如入口处的家具,它调节了卧室的角落,当人们进入房子时,为用户提供了阳台的景观。
Modifications of closings were combined with small incisions such as the entrance furniture, which regulates the corner of a bedroom and offers the user views of the veranda as one enters the house.
















Architects: CAVAA Arquitectes
Photographs :Nit Victorio
Engineering : Pep Vinuesa
Developer : Santa Eulàlia 17 SL
Head of Site : Josep Massana
Authors : Jordi Calbetó, Oriol Vañó
City : Vilanova i la Geltrú
Country : Spain