城市图强烈地提到了现有的建筑群。一座两层楼的建筑被放置在现有校舍的后面。它在最窄的地方与学校相连。这创造了一个拉长的法庭,为学校创造了一个大气的会议、居住和交流空间。
The urban figure refers strongly to the existing complex. A two-storey building is placed on the back of the existing schoolhouse. It is connected to the school at the narrowest point. This creates an elongated court, which creates an atmospheric meeting, residence and communication space for the school.


旧建筑仍然可见,并与新建筑一起形成一个整体。屋顶设计的不断延续将作为一个单元在整个学校区域内被体验。
The old building remains visible and is formed together with the new building into a whole. The constant continuation of the roof design will be experienced as a unit throughout the school area.

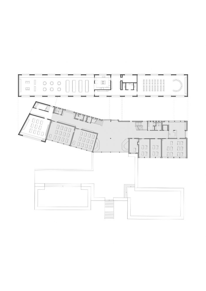
新建筑是由旧建筑发展而来的。由于老建筑的内部结构,三个连接点被创造出来。由于新旧建筑之间的通廊,学校建筑作为一个整体运作。通道产生了有盖的外部区域,这也确定了投入。
The new building is developed from the old building. Due to the given interior structure of the old building, three connection points are created. Thanks to the passerelles between old and new buildings, the school building works as a whole. The passerelles generate covered outside areas, which also define the inputs.

在底层,日间学校和多功能室与相邻的房间一起被安置。日间学校的特点是一个开放的空间设计,因此房间可以根据需要进行划分。主要的房间有一个两面,一方面是球场和北部操场。
On the ground floor, the dayschool and the multi-purpose room are accommodated with the adjoining rooms. The dayschool is characterized by an open space design, whereby the rooms can be divided according to needs. The main rooms have a two-sided exposure, on the one hand to the court and the northern playground.

教室位于上层。学校的房间也是两面通透。小组活动室被适当地放在两个教室之间。这种分组是基于一个清晰的网格。所有的房间都有大面积的窗户,并提供了最佳的照明条件。
The classrooms are located on the upper floor. The school rooms are also exposed on two sides. The group rooms are appropriately placed between two classrooms. This grouping is based on a clear grid. All of the rooms have large window areas and profit of optimal lighting conditions.

走廊在重要的流通区域补充了宽敞的开放区域。教学人员的住宿和工作空间位于东南侧的现有建筑中。毗邻入口区的中心位置确保了短距离、良好的区域概览,从而使学校的运作变得简单。
The corridors are complemented in important circulation areas with spacious open zones. The accommodation and working spaces of the teaching staff are located in the existing building on the southeast side. The central location next to the entrance area ensures short distances, a good overview of the area and thus a simple school operation.

外墙配备了具有足够约束性的附加窗。可见的混凝土结构承接了邻近学校建筑的现有黄色。
The facades are equipped with additive windows with an adequate restraint. The visible concrete construction takes over the existing yellow colour from the neighbouring school buildings.






紧凑的教学楼考虑到了中心东部的土地储备,以便将来扩建建筑。
The compact school building takes account of the land reserve in the east of the center for future expansion buildings.














Architects: dolmus Architekten
Year : 2017
Photographs :Aytac Pekdemir, Rolf Siegenthaler
Lead Architects : Cédric von Däniken, Gani Turunc, Miriam Egger
Collaborators : Bauleitung GmbH, Ländtestrasse 1, 2503 Biel, Andreas Dürrhammer
City : Evilard
Country : Switzerland