该扩建工程是在一个前村砖厂的场地上的一组建筑的一部分。它是加在一位前砖匠的现有房子上的--这栋房子是在九十年代中期修复的。砖窑破败不堪,十年前重建为工作室。二战后,由于砖的生产被关闭,在这里建立了一个果园。
The extension is part of a set of buildings on the site of a former village brickyard. It is added to the existing house of a former brick master – this house was restored in the mid-nineteens. The brick kiln, which was in a ruinous state, was rebuilt into a studio 10 years ago. After WWII, when the production of bricks was closed, an orchard was set up on the site.



原先的砖房主人的房子是典型的门廊式乡村风格的斜屋顶。Portico的房子实际上是一个明智的方案--就像过去的乡土房屋一样。纵向主体上的门廊是房屋内部和外部界面上的一个独特而实用的特征。除了对这一经常出现的区域进行自然保护外,它还能调节夏季和冬季阳光能量对砌体质量的不同影响。
The original brick master´s house was a typical portico country style with a pitched roof. Portico's house was actually a wise scheme – as vernacular houses used to be. Portico attached to the longitudinal main volume was a distinctive and practical feature on the interface of the exterior and interior of the house. Apart from the natural protection of this frequented zone, it regulates different effects of summer and winter sunshine energy on the mass of the masonry.



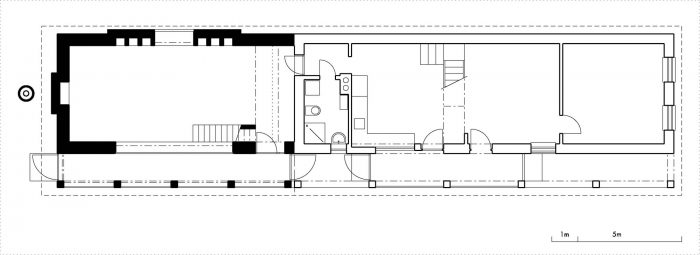
扩建工程实际上是延长了现有房屋的轮廓,包括其门廊。它从属于现有的十字形,但内部是一个完全不同的空间概念。这是一个开放的空间方案,没有通常的天花板将生活区和阁楼隔开。面积不大的新客厅配备了宽大的空间体验。
The extension is actually a prolongation of the silhouette of the existing house inclusive its portico. It subordinates to the existing cross-figure, but inside it is a radically different space concept. It is an open space scheme without the usual ceiling separating the living area from the attic. The new living room of a modest floor area is equipped with generous space experience.

屋顶桁架可以理解为典型的椽子结构的方案,也可以理解为两块相互支撑的斜板的结构方案。屋顶桁架使用的所有砖块都标明了产地。超过2/3的砖是由这个前砖厂生产的,其余的则来自附近地区已经消失的砖窑。 这种屋顶桁架的装饰性马赛克般的外观来自于不同的色调和粗糙的表面,这是手工砖生产的典型特征。Empora 画廊位于现有房屋和新扩建房屋的分界线上--它是与现有阁楼的连接。
The roof truss could be interpreted as a scheme of typical rafter construction or as a structural scheme of two mutually supportive sloping slabs. All the bricks used in the roof truss are marked after their origin. More than 2/3 had been manufactured by this former brickyard, the rest originates from the vanished brick kilns of the nearby region. The decorative mosaic-like appearance of this roof truss is derived from different shades and ragged surfaces, which are typical for handmade bricks production. Empora gallery is inserted in the dividing line of the existing house and its new extension – it serves as a connection to the existing attic.

砖块砌成的墙体内外都用经典的石灰抹灰,不加面漆。扩建部分的其他材料也没有做进一步的表面处理--地板的混凝土和Empora,门廊柱和烟囱的预制混凝土块,钢梁和型材等。从一定意义上说,这是一个成品--非成品建筑。
The walls made of brick blocks are outside and inside plastered with classic lime plaster without top coating. Other materials of this extension are also left without further surface treatment – concrete of the floor and of empora, precast concrete blocks of the portico columns and of the chimney, steel beams and profiles, etc. In a certain sense, it is a finished-unfinished building.

大规模的屋面桁架结构大大改善了该建筑的蓄水特性。它确实从根本上减少了室内的热波动,这也是通常结构的屋顶桁架的一个经典难题。可关闭的玻璃门廊在一年中的大部分时间里作为缓冲气候区。这个扩建工程是对制砖工艺文化的一种特殊的致敬。
Massive roof truss structure improves substantially the accumulation characteristics of this building. It does radically reduce the thermal fluctuation in the interior, which is a classical difficulty of the usually constructed roof trusses. Closable glazed portico serves as a buffer climate zone for most of the year. This extension is a particular homage to the culture of a craft of brickmaking.






建筑师:Architekti B.K.P.Š
面积:54平方米
年份:2018年
照片:Tomáš Manina
制造商:Trial Trnava
牵头建筑师:Pavol Paňák, Martin Kusý st.
设计团队:Pavol Paňák, Július Vass, Beáta Paňáková
城市 : Čachtice
国家:斯洛伐克
Architects: Architekti B.K.P.Š
Area: 54 m²
Year: 2018
Photographs: Tomáš Manina
Manufacturers: Trial Trnava
Lead Architects:Pavol Paňák, Martin Kusý st.
Design Team:Pavol Paňák, Július Vass, Beáta Paňáková
City:Čachtice
Country:Slovakia