从L型全景窗可以看到有900年历史的登肯多夫村,其中心的修道院吸引了所有人的注意力。因此,由清水混凝土制成的加热窗台是房子里最受欢迎的座位。清晰的定义,简约的形式和材料,梯形的三层住宅和办公前提,第一眼看去可能会觉得很酷。
The view from the L-shaped panoramic window over the 900 year old village of Denkendorf, with its abbey in the centre, attracts everyone's attention. The heated window ledge of fair-faced concrete is therefore the most popular seat in the house. Clearly defined, minimalist in its form and material, the trapeze shaped three floor residential and office premise may appear cool at first glance.



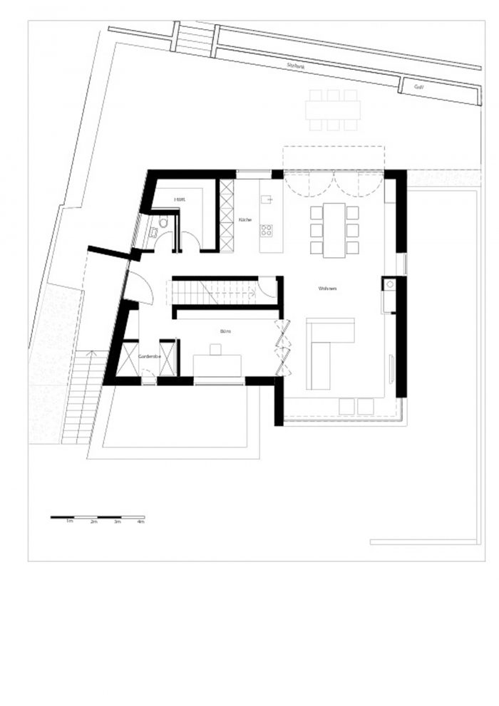
巨大的窗户打开了这个巨大的建筑,最初看起来相当封闭,并允许从每个方面看进去和出来。建筑物的突出部分,如窗户和车库,给外墙带来了节奏感,也给严肃的建筑带来了有趣的元素。突出的玻璃结构为起居室提供了必要的宽敞空间,而没有增加房屋的总面积,因此也没有增加建筑成本。
The large Windows open up the massive building, which initially seems quite closed, and allow views in and out from every aspect. Projecting parts of the building such as Windows and garage, bring a rhythm to the facade and playful elements into the severe architecture. The projecting glass structure provides the living room with the necessary generous space, without increasing the total area of the house and therefore the building costs.

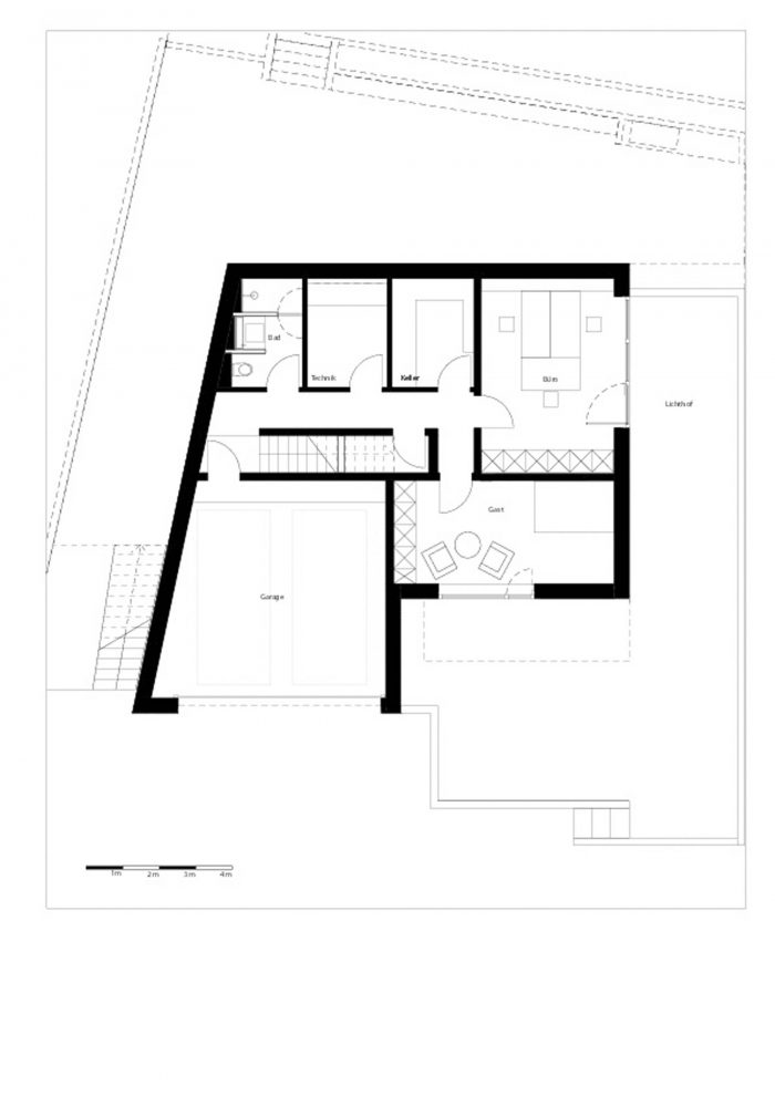
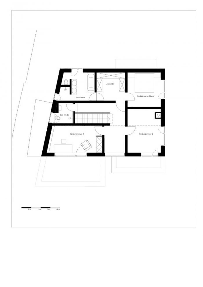
外墙被抹上光滑的灰色。瓦片屋顶延续了这种颜色,整个建筑看起来是一体的。天沟和下水管道都被隐藏起来。无烟煤色的铝制框架窗户,与外墙相呼应,仿照瑞士的设计,创造了一个平滑、同质的外观。烹饪、饮食和生活区融为一体,没有支架或墙壁的干扰。楼梯构成了主生活区的核心,连接着三层楼和各个生活区。厨房面向花园,与餐厅和客厅相通。相邻的是一个公用事业室。
The facade is plastered smooth grey. The tiled roof continues this colour and the building appears to be of one piece. Gutters and down pipes have been concealed. The anthracite co-loured aluminium framed Windows, Hush with the facade, modelled on Swiss design create a smooth, homogenous appearance. Cooking, eating and living area flow into one without the interruption of supports or walls. The stairs form the core of the main living area, connecting the three floors and the various living areas. The kitchen faces the garden and opens on to the dining and living room. Adjacent is a Utility room.
























Interior Designers: Ippolito Fleitz Group
Area : 300 m²
Year : 2008
Photographs :Bruno Helbling
City:DENKENDORF
Country:Germany