Fabric寿司是阿根廷和乌拉圭最重要的同类型连锁餐厅之一。尽管该品牌在材料和颜色方面规定了一定的准则,但它允许在总体设计上有足够的自由度,以便每个场所都有自己的特点。没有任何一家店与另一家店相同。
Fabric Sushi is one of the most important restaurant chains of its type in Argentina and Uruguay. Although the brand imposes certain guidelines in terms of materials and colors, it allows enough liberty in the general design so that each premise has its own character. There´s no store equal to another.




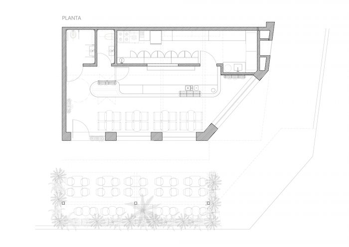
位于布宜诺斯艾利斯主要街区之一的餐厅的设计融入了海洋、其形状和纹理的灵感元素。吧台是店内的主要元素,几乎占据了整个店面的延伸。台面的脉络和绿色大理石类似于水和它的腐蚀性反射,而挂在上面的架子上有类似于水下物种的植物。在桌子上方,待定的各种长度的灯具花束类似于珊瑚的形状。弯曲的线条在整个商店里得到了重申,无论是在建筑还是在设备上。呈现在货架、桌子、支撑家具上,甚至门上的手工把手。侧面的镜子墙在视觉上倍增了空间,并反射了从大窗户进入的光线。第二面镜子排列成 "L "形,产生了一个无限的视觉游戏,并作为通往酒吧和厨房的一个微妙限制。
The design of the restaurant located in one of the main neighborhoods of Buenos Aires incorporates elements inspired by the ocean, its shapes, and textures. The bar is constituted the main element of the store, occupying practically its entire extension. The veined and greenish marble of the countertop resembles water and its caustic reflections, while the shelves hanging on top of it carry plants similar to underwater species. Over the tables, pending bouquets of luminaires of various lengths resemble the shapes of coral. The curved line is reiterated throughout the store, both in the architecture and in the equipment. Present on shelves, tables, supporting furniture, and even on the door handmade handles. The side mirror wall visually multiplies the space and reflects the light that enters through the large windows. A second mirror arranged in an "L" shape, generates a game of infinite visuals and serves as a subtle limit to the access to the bar and kitchen.


餐厅的设计响应了白天和晚上的使用,白天有大量的自然光,晚上则有微妙的照明效果。鉴于其面积较小,它延伸到了街道上,在那里通过精心挑选的植物,景观出现在人行道上的坐席区。"为了使食客的体验完整,感官不仅要从菜单上得到刺激,还要从建筑上得到刺激"。
The restaurant design responds to daytime and nighttime use, with a large amount of natural light during the day and subtle lighting effects at night. Given its small surface, it extends to the street where the landscape emerges through carefully chosen plants to contain the sitting area on the sidewalk. “For the diners' experience to be complete, senses must be stimulated not only from the menu, but also from the architecture”.











Architects: MURO estudio
Area : 70 m²
Year : 2022
Photographs :Juan Muller
Manufacturers : CAVATORI MARMOLES, Estudio Te, Handywoman, Increa, Murvi, Vetromile
Lead Architects : Carolina Rovito, Valeria Munilla Jiménez
Developer : Grupo Quattro
Construction : ORMIGON
City : Caballito
Country : Argentina