Fængslet(监狱)--西厅项目。西厅项目位于1853年的旧国家监狱,其愿景不是拆毁墙壁,而是以一种近乎外科手术的切口对监狱进行活化 "手术",使其适应当前的需求和需要,而不至于使过去的东西失去作用。监狱是一个有形的历史印记,具有巨大的社会历史和建筑视角,设计中的真实性和关联性对改造至关重要。
Fængslet (The Prison) - West Hall Project. The vision of the West Hall project at the old state prison from 1853 was not to tear down the walls but to perform a revitalizing 'operation' of the prison with an almost surgical incision, for it to adapt to the demands and needs of the present without putting the past out of play. The prison is a physical historical imprint with great socio-historical and architectural perspectives, and authenticity and relatability in the design have been crucial for the transformation.




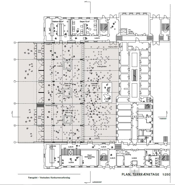
监狱的改造源于在富有表现力的历史环境中为活动、会议和音乐会创造空间的需求。丹麦的改造项目通常是对过时的工业设施进行改造,并以文化为目的,其中大规模机器大厅的缩减和改造是主要的挑战。FÆNGSLET的挑战则完全相反! 该建筑显然包含了许多重复和小空间,这就要求对建筑体进行分解,以创造新的大型统一空间--西厅。
The transformation of the prison origins from a need to create spaces for events, conferences, and concerts in expressive historical settings. Transformation projects in Denmark are usually about outdated industrial facilities being converted and adapted with a cultural purpose, where downscaling and adaption of big scale machine halls is the main challenge. The challenge at FÆNGSLET is the complete opposite! The building obviously contains many repetitions and small spaces, which has demanded a decomposition of the building mass to create the new large unifying space - The West Hall.

為了創造和順利整合西廳,Cubo Arkitekter抓住了一個相當大膽的工程挑戰;通過下切和完全拆除現有的兩個樓層,創造了一個乾淨的 "盒子",連接大的監獄院子和內院。内院被覆盖了一个玻璃屋顶,并与西翼下面的开放空间合并,形成西厅。西翼的下切是不折不扣和无与伦比的,因为新增的建筑也显得不折不扣和简约。在这个项目中,追求的是一种简单和简约的表达,而不是简单的东西。该设计将建筑与先进的工程相结合,并与历史上的监狱有着重要的联系,使该项目作为当代国际最先进的建筑而脱颖而出。
In order to create and integrate the West Hall smoothly in the large building, Cubo Arkitekter has seized a rather audacious engineering challenge; By undercutting and totally removing two existing floors space was created for inserting a clean-cut ‘box’, that connects the big prison yard with the inner courtyard. The inner yard has been covered with a glass roof and is merged with the open space underneath the west wing to form the West Hall. The undercutting of the west wing is uncompromised and unequaled as the added architecture also appears uncompromising and minimalistic. A simple and spartan expression is pursued in a project, that is anything but simple. The design, which unites architecture with advanced engineering, and the significant connection with the historic prison, makes the project stand out as contemporary international state-of-the-art architecture.

监狱被打开了。FÆNGSLET的核心叙事是监狱体验本身,但这个故事不仅仅是关于封闭的空间和孤立的、隐蔽的存在。霍森斯国家监狱建立在这样的信念上:一个人可以为他的罪行赎罪,而且有可能使囚犯重新融入正常生活。这就是为什么监狱也需要获得希望;光明与黑暗的对比,开放与封闭的对比。新的西厅代表了这些对比,象征着开放、光明--以及最终的自由。
The prison is opened up. The core narrative of FÆNGSLET is the prison experience itself, but the story is not just about closed spaces and isolated, secluded existence. Horsens State Prison was built on the belief that one could atone for his crime, and that it was possible to resocialize the prisoner back into normal life. That is why the prison also needs to obtain hope; the light in contrast to the darkness, the open in contrast to the closed. The new West Hall represents these contrasts and symbolizes openness, light - and ultimately freedom.


2006年,大门在最后一名囚犯身后关闭,自2012年以来,监狱的院子被用来举办音乐会和其他活动。为了满足物流和应急条例的要求,在监狱墙上开了口子,并插入了巨大的钢门。大门现在覆盖着红色的锈迹,自然地与旧砖墙融为一体。新的西厅以类似的方式打开了建筑,在需要的地方用锈红色的钢覆盖了孔洞。西厅是一个灵活的活动室,可以分成三个小房间。内院、大厅和小厅。这些厅可以灵活地单独使用,并以各种组合方式连接。突出监狱院子的巨大混凝土基座是室内打磨抛光混凝土地面的自然延伸,并创造了一个大的可舞台区域,在夏季对露天活动很有用。
In 2006 the gates closed behind the last prisoner and since 2012 the prison yard has been used for concerts and other events. To meet logistics and emergency regulations openings were cut in the prison wall and massive steel gates were inserted. The gates are now covered in a red, rusty patina that naturally blends in with the old brick walls. The new West Hall opens the building in a similar way, with rust-red steel covering the holes where needed. The West Hall is a flexible event room that can be divided into three smaller rooms: The Inner Yard, The Big Hall, and The Little Hall. The halls are flexible for individual use, and they connect in various combinations. The huge concrete plinth that juts into the prison yard is a natural extension of the indoor sanded, polished concrete floor and creates a large stageable area, useful for open-air events in the summertime.


界限、大门和过渡。开放的监狱是关于边界的--关于外部和内部,以及关于空间,由建筑的层次结构来定义,为游客创造非凡的体验。在描述FÆNGSLET的特点时,"门 "这个词至关重要,绿色的主入口是一个象征性的标志。周边的锈迹斑斑的铁门和浅黄色的砖块创造了某种氛围,在沉重的门、格栅、格子等中,钢铁作为一种独特的材料得到了认可。这种冷酷的理性和经过处理的温暖的 "腐烂 "的结合,以一种现代和实用的方式提到了过去。在FÆNGSLET周围的几个灵活的解决方案中使用了钢门,尤其是面向南方庭院的巨大的升降门。傍晚时分,当太阳落山时,打开这些大门,西厅内的粗糙材料将沐浴在橙色的阳光下--这对于会议上的晚餐来说是一个相当惊人的环境。
Limits, gates, and transitions. Opening the Prison is all about boundaries - about outside and inside, and about spaces, defined by the hierarchies of architecture, creating extraordinary experiences for the visitors. The term ‘Gate’ is crucial when describing the characteristics of FÆNGSLET, with the green main entrance as a symbolic marker. The peripherical patinated rusty iron gates and the light-yellow bricks create a certain vibe, endorsed by steel as a distinct material in the heavy doors, gratings, grids, and so forth. The combination of this cold rationality and the patinated warm ‘decay’ refers to the past in a modern and functional way. Steel gates are used in several flexible solutions around FÆNGSLET, not least the huge raise-and-lower gates facing the courtyard to the south. Open these gates in the evening when the sun sets, and the rough materials inside the West Hall will be bathed in orange sun rays - a rather astonishing setting for predinner at a conference.

西厅的天空。院子的覆盖物是基于对一个功能灵活的空间的愿望,同时保留了在户外空间的感觉。带有人造云的明亮的天空覆盖着院子,同时作为一个灵活的防晒屏发挥作用。浅色的半透明屋顶让北方独特的光线进入,并屏蔽了来自南方的明亮光线。在院子里的端墙前,屋顶上挂着特制的大地毯。强大的地毯具有重要的声学功能。
The sky over the west hall. The covering of the courtyard is based on the wish for a functionally flexible space where the feeling of being in an outdoor space is preserved. A bright sky with artificial clouds covers the yard and functions as a flexible sun protection screen at the same time. The light semitransparent roof lets in the unique northern light and screens the bright light from the south. In front of the end-walls in the courtyard, big special-made rugs are hanging from the roof. The strong rugs have an important acoustical function, muffling and decreasing the sound from the hard reflecting surroundings; concrete, tiles, and iron. The rugs visually draw the sky down into the courtyard, while the hoisting gates pull up the patinated steel, let the light in, and create a sense of freedom over confinement and imprisonment.











Architects: Cubo Arkitekter
Area : 1900 m²
Year : 2021
Photographs :Marin Schubert
Manufacturers : AS-Facader, AVPD Studio, BK Teknik, Bendt Brandt, Casa, Habila a/s, Kærsgaard a/s, Multi-tek, Richard Thomsen, Schmitter tore, Swedoor, Velux, Vola
Lead Architects : Rune Riis, Morten Birk Nielsen, Henrik Jepsen
Engineering Team : Rambøll
Acoustic Consultant : Rambøll
Steel Contractor : BK-Teknik, Bjarne Knudsen
Roof Construction : IJS-Ingeniørfirmaet Jørgen Søgaard
Head Contractor : CaSA, Brian Popp
Design And Management : Rune Riis
Project Architect And Manager : Morten Birk Nielsen
Building Supervision : Henrik Jepsen
Engineering : Henrik Bo Nielsen
Lighting Consutlant : Jesper Kongshaug
City : Horsens
Country : Denmark