该地块呈相当狭窄的三角形,位于一个平静的郊区的尽头。它的后面,在东北方向,是一个陡峭的斜坡,可以看到伏尔塔瓦河的洪泛区的美丽景色。
The plot of a rather narrow triangular shape is located at the end of a calm suburban quarter. Behind it, in the northeast direction, is a steep slope with a beautiful view of the floodplain of the river Vltava.



我们把房子放在与入口相对的一侧,它正在拓宽,但没有到地块的最边缘。这就把花园分成了具有不同氛围的两个部分:前面和后面。花园的前面部分成为泳池边的下午活动场所,成为与游客见面的社交空间。这个地方的气氛是独特的,特别是在日落时分,太阳在宫殿的剪影之上。
We place the house on the side opposite the entrance, which is widening but not to the very edge of the plot. This splits the garden into two parts with different atmospheres: the front and the back. The front part of the garden becomes the place for afternoon activities by the pool, the social space for meeting with the visitors. The atmosphere of this place is unique, especially during the sunset when the sun is above the silhouette of the palace.

后花园是一个亲密的空间,可以感知周围自然界无处不在的颜色、声音和气味。这主要是由于没有栅栏--这个光学屏障,它将周围的美景彼此隔开。
The back garden is an intimate space for perceiving omnipresent colors, sounds, and smells of the surrounding nature. This is supported mainly by the absence of the fence – the optical barrier, which would separate from each other the beauties of the surroundings.

该物体的体量和布局受到该地块不寻常的形状、万向的影响,并努力将外部与内部明显地联系起来。此外,我们将上述所有的全景元素作为影响内部空间的因素。
The massing and layout of the object were influenced by the unusual shape of the plot, the cardinal orientation, and the effort to significantly connect the exterior with the interior. Further, we include all the above-mentioned panoramic elements as factors influencing the interior space.


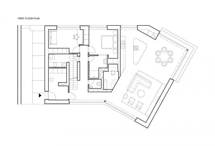
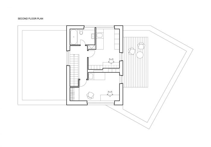
在一楼,除了主要的生活空间和设施房间外,还有父母的卧室和浴室。孩子们的卧室、第二间浴室和阳台在上层。房子的现代布局代表了一个四口之家的紧凑家庭住宅,但通过在楼梯后面的大厅进行简单的隔断,我们实现了上层成为一个独立的住房单元。
On the ground floor is, apart from the main living space and facility rooms, located the parents' bedroom with bathroom. The children's bedrooms, second bathroom, and terrace are on the upper floor. The contemporary layout of the house represents a compact family house for a four-membered family, but with simple partitioning in the hall behind the staircase, we achieve that the upper floor becomes a separate housing unit.



















Architects: Atelier 111 Architekti
Area : 185 m²
Year : 2015
Photographs :Jiri Weinzettl
City:HLUBOKÁ NAD VLTAVOU
Country:Czech Republic