这个典型的荷兰长坡屋顶的农舍位于一个受保护的村庄,具有文化和历史价值。在改造过程中,我们对农舍的设计是这样的:对着村庄,历史的外观得到了保留和加强,但对着宽敞而深邃的后院,建筑就像一个现代别墅一样展开。在外部和内部,都采用了一种对比:历史和现代之间,隐蔽和开放之间。
This typical dutch long-gabled farmhouse is located in a protected village and has cultural and historical value. For the renovation, we designed the farmhouse in such a way that towards the village, the historic appearance is preserved and strengthened, but towards the spacious and deep backyard the building unfolds as a modern villa. Both on the outside and on the inside, a contrast has been applied: between historic and contemporary, between seclusion and openness.




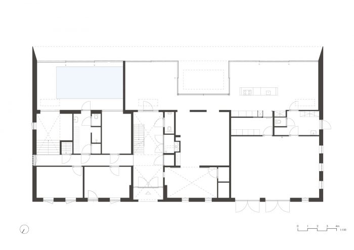
一个横跨长檐农舍整个宽度的统一扩展,带来了一个现代层和与户外的理想连接。毕竟,客户的愿望是让花园尽可能多地参与到他们的日常生活中。
A unified extension across the full width of the long-gabled farmhouse brings a modern layer and an ideal connection to the outdoors. After all, it was the client's wish to involve the garden as much as possible in their daily life.


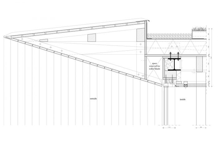
居民现在可以选择历史悠久的农舍的封闭式舒适空间,或者选择与花园的开放式连接。一个宽大的木质悬架框住了玻璃外墙,并提供了遮阳。
Residents can now choose the enclosed cozy spaciousness of the historic farmhouse or opt for the open connection to the garden. A wide wooden overhang frames the glass facade and provides shade.

不同环境和材料的混合使得这个设计在空间体验上非常独特。没有一个空间是相同的,都有自己的品质。现代与传统的结合不仅体现在建筑上,而且也贯穿在室内的所有细节中。
The mixture of different ambiances and of materials makes this design unique in its spatial experience. No space is the same and all have their own qualities. The meeting of modernity and tradition not only comes together in the architecture but is also carried through in all the details of the interior.





















Architects: Wenink Holtkamp Architecten
Area : 495 m²
Year : 2022
Photographs :Tim van de Velde
Manufacturers : Glazing Vision, Keller, Rockwool International A/S, Schüco, Sky-Frame AG, Velux
Contractor : De Wit van Loon
Interior Architects : Baas Kleinbloesem
Construction : Van de Laar
Project Management : Bureau Franken
Landscape Architects : Vis-a-Vis
Design And Supervision : Ferdy Holtkamp, Jan-Peter Wenink
Technical Drawings : Rick Zwerver
Country : The Netherlands