创造我愿意光顾的地方的项目对我来说非常特别,我愿意与客户合作,无论预算如何,只要我们有相同的波长。这个项目就是这样一个例子。我经常骑自行车去上班,而这个地方就在去我办公室的路上。
Projects to create places I would want to patronize are very special to me, and I am willing to work with the clients no matter the budget, as long as we are on the same wavelength. This project is one such example. I often ride my bicycle to work, and this place is right on the way to my office.



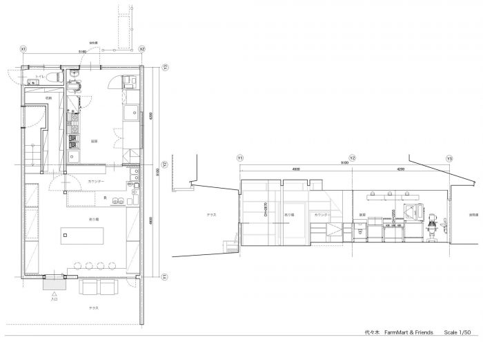
它位于一个远离车站的安静住宅区。我们在那里设计了一个甜甜圈和杂货店,叫FarmMart & Friends。不知怎的,我想象自己在回家的路上顺便去那里喝杯酒,尽管没有人说过这个项目,我还是决定参与进来。
It is located in a quiet residential area away from the station. We designed a donut and grocery store there called FarmMart & Friends. Somehow I imagined myself stopping by there on my way home for a glass of wine, even though no one said anything about the project, and decided to get involved.

而事实上,他们开始在那里供应葡萄酒,而这家店也成为了在节假日享受快乐的日常生活的一个场所。鉴于预算有限,我们请来了我们的前工作人员、熟练的木匠高本隆志帮助设计和建造该店,我们则担任监督员。我们充分利用现有的结构,创造一个快乐的地方,让人们可以享受新鲜的食物,并邀请其他人加入他们。
And indeed, they started serving wine there, and the store became a place to enjoy a moment of happy everyday life on holidays. Given the limited budget, we enlisted help from Takashi Takamoto, our former staff member and a skilled carpenter, to design and construct the store, and we acted as supervisors. We made the best use of the existing structure to create a happy place where people can enjoy fresh food and invite others to join them.








Architects: Jo Nagasaka, Schemata Architects
Area : 46 m²
Year : 2022
Photographs :Yurika Kono
Construction : Takamoto Works
Electricity : HATADEN
Signage : TANK
City : Shibuya City
Country : Japan