FH Office是一个综合开发项目。这座7层高的建筑面积达2000平方米,由商业和住宅空间组成,位于曼谷西侧。
FH Office is a mixed-use development project. With an area of 2,000 square metres, this 7-storey high building consists of both commercial and residential space and is located on the west side of Bangkok.





当我们与该项目业主交谈时,发现他对身体健康的看法非常吸引人,FH Office的概念就这样形成了。"的确,我们是一家制药公司,但我们从不希望人们生病。我们还提供其他膳食补充剂来支持健康生活。作为行政团队,我们也鼓励员工采用健康的生活方式,并以身作则,比如用楼梯代替电梯。"
The concept of FH Office took shape when we had a conversation with the owner of the project and found his perspective towards physical well-being very engaging: "True, we are a pharmaceutical company, but we never want people to become ill. We also provide other dietary supplements to support healthy living. We as an administrative team also encourage healthy lifestyle among our employees and lead by example by using stairs instead of elevators, for instance."

这很快成为我们设计理念的基础:二元论。
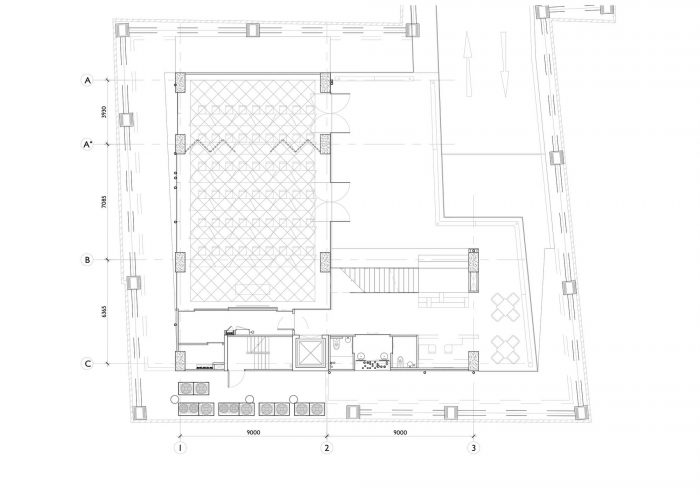
结构--我们主要采用两种方式:后张板、柱梁式。后张板将大部分建筑部件松散地固定在一起,而柱梁结构则为模块化设计体系(尺寸为3x3x3)让路,构成了主要的室内空间。
This soon became the foundation of our design concept: dualism.
Structure — we use two main approaches: post-tension slab, and post and beam. Post-tension slab loosely holds a majority of the building parts together, while post and beam construction makes way for a modular design system (3x3x3 in size) which constitutes the main interior space.

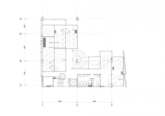
室内与室外--由于公司依赖于不同部门之间的不断协作,因此需要公共区域来提升工作流程。业主和设计师也都认为,这些共享空间应该有良好的通风和自然光。从这些要求出发,我们设计了不同的工作空间,每一个空间都由一个公共区域连接,起到不同的作用。这种设计有很多优点。由于每个部门的照明和空调系统都是独立控制的,因此它大大减少了能源的使用。它还增加了半户外空间,因此可以为工作区带来更多的自然光。也许最重要的是,这种设计有助于减少空气传播疾病的感染。这个设计项目是在Covid-19大流行之前进行的)。
Interior vs Exterior — As the company relies on constant collaboration among different departments, the common areas are needed to enhance workflow. Both the owner and designers agree, too, that these shared spaces should have good ventilation and are open to natural light. From these requirements, we have designed different working spaces, each of which is linked by a common area that serves different purposes. There are many advantages to this design. It considerably reduces energy use since the lighting and a/c systems are independently controlled in each department. It also increases semi-outdoor space and therefore invites more natural light into the working area. Perhaps most importantly, this design can help reduce infections from airborne diseases. (This design project was carried out before the Covid-19 pandemic.)

楼梯--我们为楼梯设计带来了美感,鼓励人们使用楼梯而不是电梯。这将有利于他们的健康。
Staircases— We brought an aesthetic look to our staircase design to encourage people to use them instead of elevators. This will in turn benefit their health.

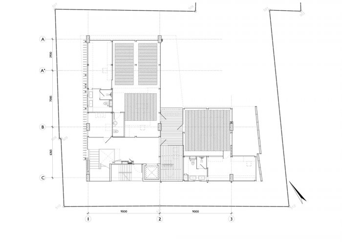
形状和形式--FH办公室位于一个人口密集的住宅区,其中排屋占了大多数。我们就看到了一种可能性,将这种排屋的情调加入到我们的设计中,因此无论是物理特征还是视觉描绘,都能在建筑与周围的环境之间形成一种并列关系。例如,一些公共区域可能会产生一种独特的视角,仿佛它们与其他排屋相连,而多个立方体的形式可能会与附近的矩形建筑形成对比。同样,螺旋形的楼梯也进一步强调了一种二元性的感觉,一旦在直线的背景下被感知。
Shape and Form — FH Office is located in a densely populated residential area, where row houses make up a majority of the buildings. We then see a possibility to add this row-house mood into our design, so both the physical characteristics and visual portrayal create a juxtaposition between the building and its surrounding. Some of the common areas may, for instance, give birth to a unique perspective as if they were connected to other row houses, while multiple cubic forms may appear in contrast to the rectangular buildings nearby. Likewise, the spiral staircases further emphasize a sense of duality once perceived against the backdrop of straight lines.
















建筑师:TA-CHA Design
面积:1900平方米
年份:2020年
照片:Beersingnoi
制造商:AutoDesk, Forbo Flooring Systems, Lamptitude, Lightup Design, SYS, Trimble Navigation, Trusol
负责建筑师:Waranyu Makarabhirom,Sonthad Srisang
客户:Pharmahof Company Limited
结构工程师:Montien Keawkon
翻译:Gam Tithinun
城市:曼谷
国家:泰国
Architects: TA-CHA Design
Area: 1900 m²
Year: 2020
Photographs: Beersingnoi
Manufacturers: AutoDesk, Forbo Flooring Systems, Lamptitude, Lightup Design, SYS, Trimble Navigation, Trusol
Architects In Charge:Waranyu Makarabhirom, Sonthad Srisang
Client:Pharmahof Company Limited
Structural Engineer:Montien Keawkon
Translation:Gam Tithinun
City:Bangkok Noi
Country:Thailand