圣保罗的城市景观受到两个主要角色的严重影响,它们同时独立存在。一方面,垂直建筑--其中大部分忠实于现代主义/理性主义模式--随着城市规划的不稳定准则随机发展。另一方面,这些建筑之间的剩余空间被历史和/或非正式地占用了两到三层。
The urban landscape of São Paulo is heavily influenced by two main characters that coexist independently and simultaneously. On one hand, the vertical constructions – most of them faithful to the modernist/rationalist models –, which evolve randomly with the inconstant guidelines of the urban planning. On the other hand, the historical and/or informal occupation of two or three floors of the residual spaces between these constructions.



该建筑群的特点是壮观的规模和高度限制的突破,导致一个混乱和不连续的城市景观。该项目位于一个正在经历不断变化的中产阶级社区的中心,该项目--一个标准的住房塔楼--恰恰被置于这种背景之下,并位于这些永久性断裂的边缘,显示出一个分裂的全景天际线。
The ensemble is characterized by spectacular scale and height limits breaks, resulting in a chaotic and discontinuous urban landscape. Located in the heart of a middle class neighborhood undergoing constant change, the project – a standard housing tower – is precisely put in this context, and situated on the margins of one of these permanent breaks, revealing a split panoramic skyline.

这个建议得到了场地的形式和文本复杂性的滋养,并重新定义了传统的 "paulista "住宅模式。将建筑主体分割成三个部分是为了更好地整合休闲区和垂直/水平流通空间。正面区域的一个小广场被还给了城市空间。
This proposal is nourished by the formal and textual complexity of the site, and reformulates the traditional “paulista” residence model. The fragmentation of the building’s body into three parts is made for a better integration of the recreational area and the vertical / horizontal circulation spaces. A small square in the frontal area is given back to the urban space.


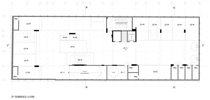
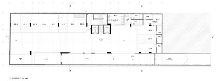
住宅单元根据类型和窗户的非线性和非模块化的变化而堆叠,使建筑具有主要的外观,其特点是使用简单和城市材料。住宅/公寓的设计遵循这些原则。
The housing units are stacked according to a non-linear and non-modular variation of typologies and windows, giving the building its main look, marked by the use of simple and urban materials.. The design of the homes / apartments follows these principles:

通过外部通道单独进出。每层楼有一个公寓/家庭,强调360度的景观/通风 每个公寓有一个显著的建筑元素(双卷,天井露台,复式/顶楼花园)。每个单元都有不同的窗户。自由规划,允许不同的内部隔断 - 模块化的液压和电气插头分配。
Individual access by external gateway. One apartment/home in each floor, emphasizing the 360 degrees view / ventilation A remarkable architectural element per apartment (double volumes, patio terrace, duplex / penthouse garden). Different windows in each unit. Free plan allowing different internal partitions – modular hydraulic and electrical plugs distribution.











































Architects: Triptyque
Area : 2778 m²
Year : 2010
Photographs :Fran Parente
Contractor : CPA Engenharia e Construções
Structure : Esteng Estrutural Engenharia
Locksmithing : Irmãos Farias
Lighting : Companhia de Iluminação
Architects In Charge : Greg Bousquet, Carolina Bueno, Guillaume Sibaud e Olivier Raffaelli
Project Chief Architect : Bruno Simões
Client : Idea!Zarvos, Movimento Um
Hydraulics : Gera serviços de engenharia
Electrical : Gera serviços de engenharia
City : São Paulo
Country : Brazil