Filmlageret挑战了建筑和生活方式的规范。Spacon & X实现了他们的第一个大型建筑项目。与有远见的开发商Lennart Lajboschitz和他的社会革命议程一起,Spacon & X在哥本哈根完成了一个社区生活项目,名为Filmlageret,为所有年龄段的人服务。
Filmlageret Challenges Norms of Architectures and Lifestyles. Spacon & X realize their first large-scale building project. Together with the visionary developer Lennart Lajboschitz and his social revolution agenda, Spacon & X have completed a community living project in Copenhagen, called Filmlageret, for people of all ages.



该项目是一个翻新的工业建筑和一个新的建筑,具有多样化的混合用途项目和富有特色的建筑,位于快速发展的阿马格岛。Spacon & X的创始合伙人Nikoline Dyrup Carlsen解释说:"Filmlageret是一场革命,反对今天哥本哈根到处都在建造的整齐、私密和无聊的房地产建筑。当我们的生活充满了如此多的乐趣和情感时,我们居住的地方就应该是对这种乐趣和情感的庆祝。"
The project is a renovated industrial building and a new build with a diverse, mixed-use program and characterful architecture, on the rapidly developing island of Amager. Nikoline Dyrup Carlsen, Founding Partner at Spacon & X, explains, “Filmlageret is a revolution against all the neat, private, and boring real estate architecture that is being built everywhere in Copenhagen today. When our lives are full of so much fun and emotion, the places we live deserve to be a celebration of that.”


社会议程。随着Lajboschitz的社会革命,Spacon & X开发了一个多样化的混合使用项目,目的是创造一个生活成长的地方。多样化的公寓选择允许不同的生活方式,人们有空间在这里扩展他们的生活多年,并发展一个强大的社区。Filmlageret的建筑个性也具有多样性,建筑物庆祝自己的奇特之处,暴露出通常被认为是丑陋的元素。SPACON & X Inside Out的设计方法。
Social Agenda. With Lajboschitz’s social revolution, Spacon & X has developed a diverse, mixed-use program with an aim to create a place for life to grow from. With a diversity of apartment options allowing for different lifestyles, there is room for people to expand their lives here over the years and develop a strong community. Filmlageret’s architectural personality also has diversity, with the buildings celebrating their own oddities and exposing elements usually considered ugly. SPACON & X Inside Out Approach to Design.

这种建筑个性是通过Spacon & X更加人性化的尺度和有些落后的方法实现的。该工作室在2014年起步后,创造了获奖的室内项目,并在2018年被评为Dezeen的年度新兴室内设计师,Filmlageret现在是他们作为首席建筑师完成的第一个建筑。在Filmlageret项目中可以看到他们对小规模项目的处理方式,在那里,对老建筑的小细节进行了保留,最大限度地发挥了建筑的特点,Spacon & X称之为 "爱的结点",以及一种高度触觉的室内体验。这种由内而外的方法还体现在内部公共空间的颜色溢出到白色的外部。
This architectural personality is realized through Spacon & X’s more human scale and somewhat backward approach. The studio, after starting out in 2014, has created award-winning interior projects and was named Dezeen’s Emerging Interior Designer of the Year in 2018, with Filmlageret now being their first completed building as lead architects. Their approach to smaller scale projects is seen at Filmlageret where there is a preservation of small details from the old building that maximizes the character of the architecture, which Spacon & X refer to as “loving the kinks”, and a highly tactile interior experience. This inside-out approach is also seen where the colors of the interior common spaces spill out onto the white exterior.


在Spacon & X,我们已经把我们作为设计师的角色定义为创造 "团结的地方",我们发现,丰富社区的方法是通过创造丰富的身份空间,让人们在情感上有所反应。在Filmlageret,我们试图创造一个有特色的地方,让人们依恋,但也为他们自己的自我表达留下空间--我们已经看到这一点以许多美丽的方式发生",Spacon & X的创始合伙人Svend Jacob Petersen说。
“At Spacon & X we have come to define our role as designers as creating ‘places that unite’, and we have found that a way to enrich communities is by creating identity-rich spaces that people emotionally react to. At Filmlageret we have tried to create a place that has character for people to attach to, but also leaves space for their own self-expressions - which we have already seen happen in many beautiful ways’’, says Svend Jacob Petersen, Founding Partner at Spacon & X.


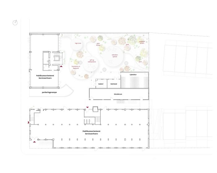
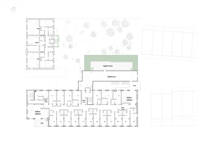
Filmlageret,以该地以前作为电影储存设施的功能命名,包括在翻新的建筑中的37个不同大小的紧凑居住空间;在新建的建筑中的9个公寓;分布在各处的10个共享空间,包括一个屋顶凉亭和露台;较小的社交空间;在底层的3或4个商业活动空间;一个公共庭院;和一个半地下停车场。
Filmlageret, named after the site’s previous function as a film storage facility, consists of 37 compact living spaces of differing sizes in the renovated building; 9 apartments in the new build; 10 shared spaces spread throughout, including a roof-pavilion and terrace; smaller social niches; spaces for 3 or 4 commercial activities on the ground floor; a communal courtyard; and a semi-underground car park.



































Architects: Spacon & X
Area : 3100 m²
Manufacturers : AutoDesk, Enscape, Contiga, OL gulve, St Skoleinventar, Sto Facade Puds, Swedoor, Velfac, Von Holmbæk
Lead Architect : Nikoline Dyrup
Contractors : Micto Ejendomme
Building Consultant : Nick Kalmar
Acoustics Consultants : Gade & Mortensen
Project Lead : Peter Vibing
Former Project Leader : Hedvig Skjerdingstadt
Design Team : Malene Hvidt, Svend Jacob Pedersen
Intern : Adeline Le Toux, Ina Stormoen
Supplier : Von Holmbæk
City : København
Country : Denmark