这个项目是在遗产背景下的一个当代反应,它从当地人那里学到了东西。它提出了一种非典型的场地反应,提供了一种自由和开放的体验,这在狭小的城市场地中是不常见的。在菲茨罗伊北区一条安静的传统街道上,这个新的家庭住宅呈现给公众的是一个抽象的双面工人别墅的剪影。
This project is a contemporary response in a heritage context that learns from the vernacular. It puts forward an atypical site response that provides an experience of freedom and openness that is not often experienced in tight inner-city sites. In a quiet heritage street in Fitzroy North, this new family home presents to the public as an abstract silhouette of a double fronted workers cottage.



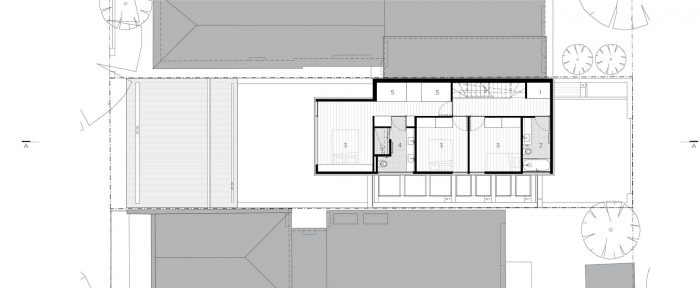
这座房子被分成了两个不同的部分。 临街的新平房将阳台和屋顶整合成一个单一的坡屋顶形式,作为工人平房的简化记忆。两个双砖翼墙,参考了典型的梯田墙,包含了建筑并支持低矮的阳台,阳台与街道上的水沟线基准线一致。木栅栏掩盖了前立面,使别墅的传统比例以一种图形的方式被表达出来。
The house is separated into two distinct parts. The new cottage fronting the street consolidates the verandah and roof into a single hipped form as a simplified memory of a worker’s cottage. Two double brick wing walls, referencing typical terrace party walls, contain the building and support the low-slung verandah which aligns to the gutter line datum running down the street. Timber battens mask the front façade, allowing the traditional proportions of the cottage to be articulated in a graphic manner.


入口是一个不起眼的木板门,通向一个狭窄的、出乎意料的外部走廊,它保留了工人小屋的适度比例,突出了花园的开放性。进门后,你走过客卧和工作室,开始体验房子的概念。花园里的房子"。
The entrance, an unassuming timber battened gate, opens to a narrow and unexpected external corridor which retains the modest proportions of a worker’s cottage and accentuates the openness of the garden beyond. On entry, you walk past the guest bedroom and studio where you begin to experience the concept of the house. ‘A house within a garden.’



与现有的两层边界墙对齐,房子的主要部分位于两个花园之间,最大限度地获得了阳光。这个想法放弃了传统的带有后花园的住宅的节奏。周边的砖墙与场地接壤,以统一整体的围墙。水泥板、砖和镀锌钢等实用材料贯穿整个住宅,模糊了生活环境的空间界限。
Aligned to an existing two storey boundary wall, the main part of the house sits between two gardens maximising access to sunlight. This idea abandons the traditional rhythm of a dwelling with a back garden. Perimeter brick walls border the site to unify the overall enclosure. A utilitarian material palette of cement sheet, brick, and galvanised steel flow through the home obscuring the spatial boundaries of the living environments.

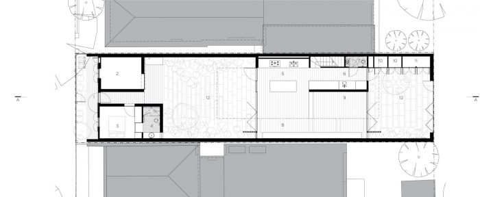
位于花园中的是厨房、客厅和餐厅空间,由边界到边界的玻璃开口界定,允许无限的交叉通风。在整个房子里,有一个连续的隐藏主题,特别是在门、细木工制品、服务、排水沟细节和储水。这使建筑更加简洁,反过来又加强了生活在花园中的想法。与Eckersley花园建筑事务所的紧密合作使得这一核心概念得以实现。住在花园里,睡在花园里"。
Positioned in the garden is the kitchen, living, and dining space, defined by the boundary to boundary glazed openings that allow for limitless cross ventilation. Throughout the house, there is a continuous theme of concealment, particularly in the doors, joinery, services, gutter detailing, and water storage. This declutters the architecture which in turn reinforces the idea of living in a garden. The close collaboration with Eckersley Garden Architecture allowed this core concept to be realised. ‘Living within a garden and sleeping above it.’

一个镀锌的金属网包裹着、遮挡着,并限制了从上层私人领域的俯视,包括三个卧室和两个浴室。这个平静的保护区域盘旋在上面,为下面的花园提供了遮阳的区域。
A galvanised metal grid encases, shades, and limits overlooking from the upper floor private domain, comprising three bedrooms and two bathrooms. This calm protected zone hovers above, providing areas of shade for the garden below.

这个项目探索了抽象性,并重新思考了典型的城市排屋类型的体量,形成了一种与自然而非建筑形式更紧密相连的体验。
This project explores abstraction and rethinks the typical urban massing of the terrace house typology resulting in an experience more connected to nature than built form.

























Architects: Rob Kennon Architects
Area: 197 m²
Year: 2019
Photographs: Derek Swalwell
Manufacturers: Agape, Brodware, CDK stone, Flos, HAY, Miele, Resident, Archicad, Artedomus, Dioscuri Wall Lights, Marcel Breuer, Microstation, Polar Wall Lights, Thomas Lentini Studio, Trimble
Lead Architects: Rob Kennon
Landscape: Eckersley Garden Architecture
Design Team:Rob Kennon, Jack Leishman
Engineering:Meyer Consulting
Builder:Ben Thomas Builder
City:Fitzroy North
Country:Australia