该住宅项目实现了地方当局的双重目标:代表城市重新评估计划,成为城市入口处的地标,并为大家庭提供示范性公寓。该建筑开发了被动明亮的公寓,并与基础设施和传统街区建立了对话。
This housing project fulfills the local authorities double ambition: to represent the urban revalidation scheme with a landmark at the entrance of the city and to provide exemplary apartments for large families. The building develops passive bright apartments and establishes a dialogue with the infrastructure and a the heritage neighbourhood.



该建筑位于布鲁塞尔的主要入口之一,是一个社会住房项目,也是该街区新身份的旗舰项目。该建筑为有需要的家庭提供了坚实而舒适的基础,并以开放的角度站立,欢迎进入首都的通勤者。它倡导了人们对建筑的强烈愿望。
Located at one of Brussels main entrances, the building is a social housing operation and a flagship project for the new identity of that neighbourhood. The building provides a solid and comfortable basis for families in need and stands with an open angle, welcoming commuters entering the capital. It advocates for a strong desire for architecture for all.

这种一体式的建筑封闭了一个陡峭的三角形街区,并发展出一个光滑的质感砖墙立面,与不断变化的比利时天空的光线玩耍。此经与周围充满细节的装饰艺术风格的常年建筑相呼应,并与令人印象深刻的公路和铁路基础设施相抗衡。
This one-piece construction closes a steep triangular block, and develops a smooth textured brick façade playing with the light of the ever-changing Belgium sky. This scripture echoes with the surrounding, full of details, art Deco perennial buildings and stands up to the impressive road and railway infrastructure.

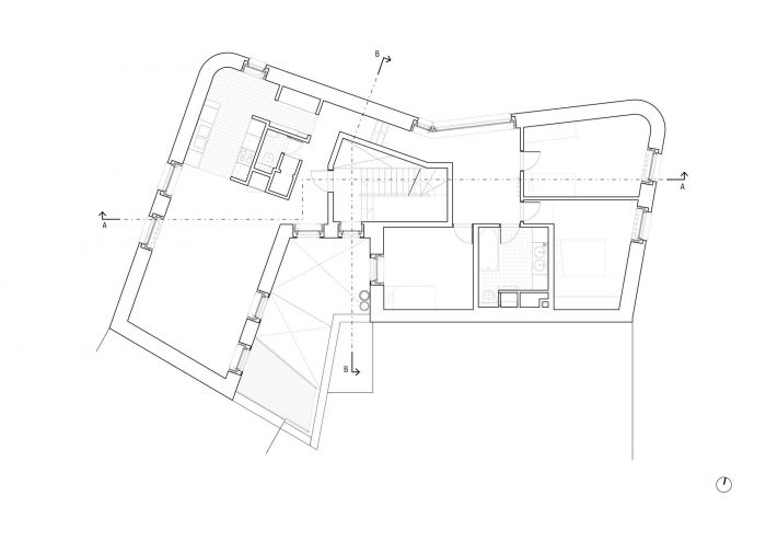
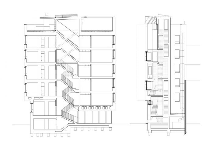
与布鲁塞尔的大多数项目一样,该建筑必须面对一个迷人但困难的环境。为了面对狭小的、不规则的、嘈杂的、主要是北向的地块,该建筑采用了关键的建筑特征。它围绕着一个南部开放的庭院和一个复杂的楼梯发展了长长的折叠式公寓,这些楼梯与独立的楼梯交织在一起,允许内部的体积运动和千米级的视野与周围的景观。错综复杂的计划衔接,如蕾丝花边,以及从分层到倒置复式的递进部分,为这个常年建筑的所有公寓提供了来自4个方向的光照、户外空间、令人印象深刻的景观和众多的空间体验。
As most projects in Brussels, the building had to face a fascinating but difficult context. To face the small, irregular, noisy and mainly northern orientated plot, the building uses key architectural features. It develops long folded apartments around a southern opened courtyard and a complex staircase that intertwines with individual stairs, allowing internal volumetric movements and kilo-metrical views to the surrounding landscape. The plans articulations, intricate as lace-work, and the progressive section, passing from split-level to inverted duplexes, provide all the apartments of this perennial construction with light from 4 orientations exposition, outdoor spaces, impressive views and numerous spatial experiences.

作为一个更广泛的计划的可见部分,当地和区域的巨大期望,被放在这个建筑的肩膀上。为了与居民和不同的主管部门建立对话,我们进行了详尽的参与式设计。这使得解释、发展和修改城市和建筑问题成为可能,减少了布鲁塞尔反复出现的冲突,并允许超越严格的建筑法规。
Being a visible part of a broader scheme, great expectations, local and regional, were put on the shoulders of this building. An exhaustive participative process was followed to establish a dialog with the inhabitants and the different competent administrations. It enabled to explain, develop and amend urban and architectural issues, diminishing recurring Brussels’ conflicts and allowing to exceed strict building regulations.

由于该建筑是为有需要的人提供住所,而且社会住房不应该与更多的著名建筑区别对待,因此该项目是为了提供一个坚实的生活基础而开发的。建筑的舒适性和常年性,你可以睡得很安稳,钉子可以敲在墙上。
Because the building shelters people in need and because social housing shouldn’t be treated differently than more prestigious building, the project is developed in order to provide a solid basis to live in. The construction is comforting and perennial, you can sleep soundly and nails can be banged in the walls.

超保温围护结构、隔音、三层玻璃、平衡通风与废气热回收、太阳能板生产热水,建筑被动式<15kwh/m2。保证了居民的舒适度和低消耗,同时他们还能打开所有的窗户。
With super insulated envelope, soundproofing, triple glazing, balanced ventilation with heat recovery from exhaust air and solar panels for hot water production, the building is passive < 15kwh/m2. The inhabitants comfort and low consumption are ensured, while they’re still able to open all their windows.

通过校准曝光避免了空调的使用,几乎所有的空间都允许自然采光,而且没有电梯,居民也没有注意到,他们的升迁被空间感和强大的景观所缓解,从而最大限度地降低了维护成本。
The maintenance costs have been reduced to the maximum by avoiding air conditioning through calibrated exposure, by allowing natural light in nearly all the spaces and by the absence of an elevator, which the inhabitants didn’t notice, their ascension being eased by the spatiality and powerful views.

特殊的细节,避免热桥,以及现场工人的阵型被开发出来,以组装微妙的白色砖厂,以获得这种强烈而光滑的质感,以玩弄光线,并向该地区的传统装饰艺术立面致敬。
Special details, avoiding thermal bridges, and on site worker’s formations were developed to assemble the subtle white brickworks in order to obtain this strong but smooth texture to play with light and pay tribute to the heritage art-deco façades of the area.

产品说明。
- Wienerberger - 砖块Terca Knabe F1系列
该建筑采用胶粘白面砖完成。结合交替的阳光,这种表面处理赋予了外墙特殊的质感。现场工人的阵型被开发出来,以组装微妙的白色砖块,以获得这种强烈而光滑的质感,以发挥光线的作用,并向该地区的传统装饰艺术外墙致敬。
Product Description.
- Wienerberger - Brick Terca Knabe F1
The building was finished with glued white facing bricks. In combination with the alternating sunlight, the finish gives the facade a particular texture. On site worker’s formations were developed to assemble the subtle white brickworks in order to obtain this strong but smooth texture to play with light and pay tribute to the heritage art-deco façades of the area.









建筑师:MSA/V+
面积:800 m²
年份:2015年
照片:Serge Brison / MSA
制造商:Kingspan Insulated Panels, Pierret System
结构工程: Ney & Partners
工程:JZH & Partners
建筑师负责人:Jean-Marc Simon, Benoit Moritz, Alain Simon, Julien Deloffre
城市 : Schaerbeek
国家:比利时
Architects: MSA / V+
Area: 800 m²
Year: 2015
Photographs: Serge Brison / MSA
Manufacturers: Kingspan Insulated Panels, Pierret System
Structural Engineering: Ney & Partners
Engineering:JZH & Partners
Architects In Charge:Jean-Marc Simon, Benoit Moritz, Alain Simon, Julien Deloffre
City:Schaerbeek
Country:Belgium