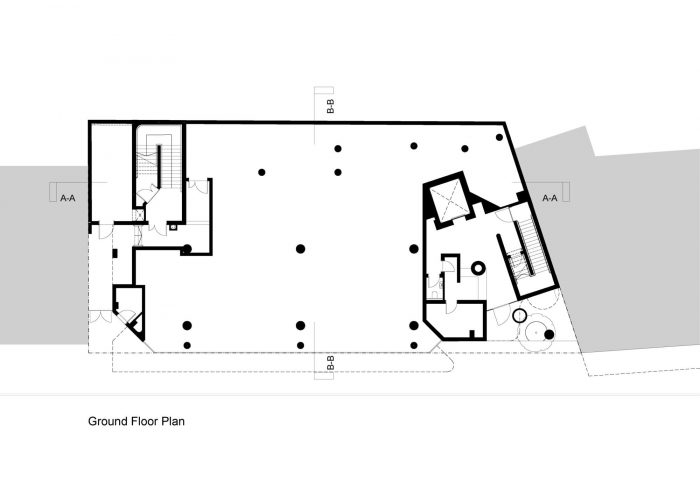
弗拉明戈的名字参考了欢快的热带现代主义,将二十年代和三十年代严肃的欧洲设计与迈阿密、里约和檀香山等伟大的沿海度假城市的浮夸奢华相融合。弗拉明戈是俏皮和轻浮的雕塑,就像包豪斯的热量。离海只有一个街区,度假公寓从25平方米的单间到29平方米的一室一厅的角落单元,跨越9层楼,占地不超过525平方米。
Flamingo’s name references upbeat tropical modernism that marries serious European design of the twenties and thirties, with the flamboyant luxury of the great coastal resort cities of Miami, Rio & Honolulu. Flamingo is playfully and frivolously sculpted, like Bauhaus on heat. One block away from the sea, the holiday apartments range from 25m² studios to 29m² 1-bedroomed corner units, spanning nine storeys on a site no more than 525m² in extent.




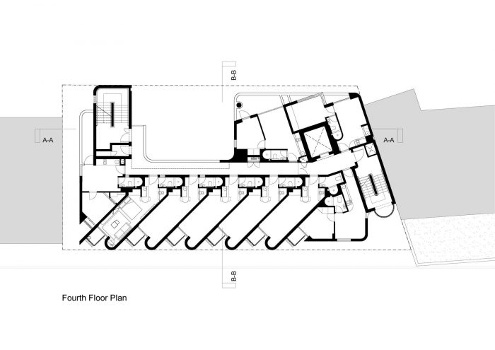
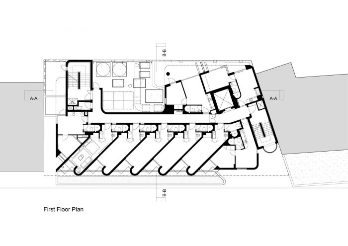
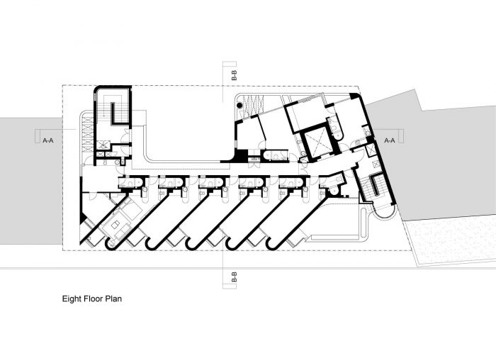
场地宽而浅--导致71套公寓中的55套面向 "正面"。大多数单元都能看到大西洋沿岸的高档郊区Fresnaye,一直到信号山的山坡,最后到狮子头--开普敦对糖山的回应。一楼的公寓与八楼的公寓共享同样的全景视野。面朝大海的单位都被调整为45度角,以避免看到路对面的公寓,而16个面向大海的 "后方 "单位中的大多数都能看到大西洋的正面风景--尽管是通过海滨街区的混凝土丛林。
The site is wide and shallow – resulting in 55 out of the 71 apartments facing “the front”. Most units command dramatic views across the upscale Atlantic seaboard suburb of Fresnaye, all the way up the slopes of Signal Hill and culminating in Lion’s Head - Cape Town’s answer to Sugarloaf Mountain. The first-floor apartments share the same panoramic views as the eighth-floor apartments. The front-facing units are all cranked at a 45-degree angle to avoid looking into the flats across the road, whilst most of the 16 sea-facing “rear” units have frontal views towards the Atlantic - albeit through a concrete jungle of beachfront blocks.



山景需要高大的窗户,以最大限度地扩大蓝天和山体轮廓上的阳光。因此,弗拉明戈的推拉门从地板延伸到天花板,而阳台在建筑上与隔壁的公寓错开,以有效地隔离和最大限度地提高个人隐私--同时框住了风景。
Mountain views need tall windows to maximize the blue sky and sunlight above the mountain silhouettes. As such, Flamingo’s sliding doors stretch from floor to ceiling, whilst balconies are architecturally staggered from the next apartment to effectively separate and maximize personal privacy - framing the views at the same time.



白色乙烯基瓷砖地板(倾斜45°)与温暖的白色墙壁和哑光白色细木家具融为一体,黑色金属D型把手、黑色镶边和黑色饰条就像星球大战中的暴风兵一样--将自然光反弹到典型单元后方的深层空间。传统的 "约翰逊白 "150x150的浴室墙砖以150x75的模数曲线进入淋浴间,如同设置在士兵中的地铁。原本不大的厨房提供了微妙的炫耀,实心的Sardo台面折叠起来,包裹着类似的花岗岩防溅板。而所有这些单色的克制都与粉红色的特色墙欢快地并列在一起。
White vinyl tiled floors (tilted at 45°) melt into the warm white walls and matte white joinery with fine black metal D-handles, black edgings, and black trims like a Star Wars stormtrooper - bouncing natural light to the deep space to the rear of the typical units. Traditional “Johnsons White” 150x150 bathroom wall tiles curve into the showers at a 150x75 module as subways set in soldiers. The otherwise modest kitchens offer the subtle ostentation of solid Sardo countertops that fold up and wrap into similar granite splashbacks. And all of this monochromatic restraint is joyfully juxtaposed with a pastel pink feature wall.


为了避免 "冷凝器单元外墙的枯萎",我们采购了一个集成的空调单元,每个单元只需要两个小的圆形通风口--建筑师把它们像美人痣一样贴在弗拉明戈的圆形舷窗和漏斗上。外墙是航海式的、雕塑式的、乐观的,白色的石膏皮上点缀着黑色的眼线,与该地区主要的流线型现代风格的环境相呼应。自2022年11月竣工以来,在开普敦的黄金假期季节,度假公寓一直被牢牢占据。
事实上,床铺并不冷。
To avoid “condenser unit façade blight”, an integrated aircon unit was sourced that only required two small circular vents per unit – which the architects applied like beauty spots around Flamingo’s circular porthole windows and funnels. The facades are nautical, sculptural, and optimistic, with the white plaster skin punctuated with black eyeliner - and making a contextual nod to the area’s predominant Streamline Style Moderne environment. The holiday flats have been solidly occupied since completion in November 2022 at the height of Cape Town’s prime holiday season.
Indeed the beds have not got cold.













Architects: Robert Silke & Partners
Area: 3532 m²
Year: 2022
Photographs:Veloz Photos, Paris Brummer, Wayne Muller
Manufacturers: Geberit, Grohe, AluGlass Bautech Western Cape, FLOORFLEX, GEZE, Johnson Tiles, Kone, MacLaren, Mazista, Sangengalo Granite, Smeg, Villeroy & Boch
Interior Design: Robert Silke & Partners
Quantity Surveyors: Kahts & Sparks Quantity Surveyors
Structural Engineering: S&T Consulting Engineers
Town Planner: D&S Planning Studio
Contractor: Alpha Omega Construction
Project Architect: Rob McGiven
Design Architect: Alexander Geh
Team Lead: Wayne Muller
Production: Raa-ieq Simon
Detail Consultant: Geoffrey Posnack
Developer: Signatura
Heritage Consultant: Johan Cornelius
Land Surveyor: David Hellig Abrahamse
City: Cape Town
Country: South Africa