Flink是一个面包咖啡馆品牌,位于板桥,这里是IT公司集中的地方,平日里人流如织。这个项目的设计要点是展示连续的矩形图案,这些图案通过模块化的形式组织起来。在模块化中使用了重复的设计语言,并在安装了不锈钢板的高天花板下提供了不同材料饰面的质地变化。
Flink is a bakery café brand located in Pangyo, where IT companies are concentrated and crowded with people all weekdays. The design point of this project is to show continuous rectangular patterns which are organized by modular formation. The used repetitive design language in modularity and provided changes in texture due to different material finishes under the high ceiling installed with stainless steel panels.




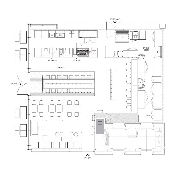
该项目在规划时对面包店的展示进行了细致的关注和考虑。在我们进行分区规划时,除此之外,最重要的目标是将顾客的注意力首先吸引到面包店的展示上。因此,通过使用玻璃砖和磨砂的透明丙烯,特意将不必要的元素挡在视线之外。此外,像其他所有的面包店一样,由于每个月或每个季节都会改变面包店的菜单,我们把展示台和货架设计成模块式的,通过调整它们来满足各种需求。
The project was planned with careful attention and consideration for the display of bakeries. As we went through the zoning plan, other than anything else, the most important goal was to draw the customer’s first attention to the bakery display. Accordingly, unnecessary elements were purposely blocked from sight by using glass bricks and frosted clear acryl. Also, like all the other bakery shops, due to changing bakery menus every month or season we designed display tables and shelves as the modular type which is very useful in various needs by adjusting them.



通过利用材料的散光特性,我们想把灯光设计得更柔和。同时,根据背后的材料,它呈现出不同的情绪。(例如,当我们把木头放在后面时,它给人一种温暖的感觉,如果有不锈钢,就会变成一种凉爽的感觉。
By using the material’s characteristics of diffusing light, we wanted to design lights to be softer. Also, it presents different moods depending on the material behind it. (One side of frosted clear acryl has matt finish rough texture.) For example, when we put wood behind it gives a warm mood and if there is stainless steel turns into a cool mood.

你可以看到烘烤室墙壁上对比鲜明的剪影,用透明玻璃砖完成,创造了一个蜿蜒的剪影场景,并与漫射光和磨砂丙烯酸树脂创造的不同剪影形成对比,同时完美地分离了运动路径。我们可以说,这个场地是所有材料的整合。我们团队的愿望是创造一个空间,让人们可以在Flink享受他们的时间,体验不同的材料如何通过创造不同的情绪来完美地增强彼此的吸引力。
You can see contrasting silhouettes on the baking room wall, finished with clear glass brick, that create a winding silhouette scene and contrast to the different silhouettes created by diffusing lights and frosted acryl, at the same time perfect separation of the movement path. We can say that this site is the integration of all materials. Our team's desire was to create a space where people could enjoy their time at Flink experiencing how different materials enhances each other’s attractiveness perfectly by creating various moods.











Architects: GGJH
Area : 165 m²
Year : 2022
Photographs :Yoo Chun | Park
Design Team : Ji Hoon Lim, Ji Soo Kim, Kun Sung Ju
City : Seongnam-si
Country : South Korea