我们被委托将一个现有的两辆车的车库改造成一个居民可以退缩和享受花园的地方。在此基础上,仍然需要一个有顶的停车空间。
We were commissioned to transform an existing 2-car garage into a place where the residents could retreat and enjoy the garden. On top of that, the need for a covered parking space remained.



在其原始状态下,现有的L型房屋拥抱着露台。通过增加一个新的体量,我们把这个户外区域也沿着东侧围起来。这创造了一个U形的天井,通过火烈鸟粉色的石板和植被散发着南方的气息。靠着旧的外墙种植的新藤蔓在新旧之间提供了一个美丽的、自然的联系,特别是在秋天树叶变红的时候。
In its original state, the existing L-shaped house embraces the terrace. By adding a new volume, we enclosed that outdoor area along the east side as well. This creates a U-shaped patio that radiates a southern atmosphere through the flamingo-pink flagstones and vegetation. The new vine planted against the old facade provides a beautiful, natural connection between old and new, especially during the autumn months when the leaves turn red.

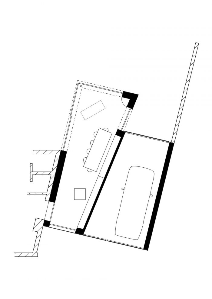
附属的体量被赋予了瑞典红色的铝型材包层--Faluröd--与现有房屋的灰色水泥外墙形成了很好的对比。通过对角线划分新体量的矩形平面图,在街道一侧的车库中创造了更多的空间,为自行车腾出了额外的空间。后部被优化利用,以提供最宽的垂直视野,从花园房间看到后面的花园。
The attached volume was given a profiled aluminium cladding in a Swedish red - Faluröd - colour that contrasts nicely with the grey cemented outer wall of the existing house. By dividing the rectangular floor plan of the new volume diagonally, more space was created in the garage on the street side, freeing up extra space for bicycles. The rear was optimally used to provide the widest possible perpendicular view of the garden at the back from the garden room.


车库门用与外墙相同的材料覆盖,使其不可见。花园房间的前面安装了两个漂亮的窗户。在街道上的一个大窗户被隐藏起来,让铝覆层以幽暗的形式继续存在。这允许与街道上发生的事情接触,但不透明。在倾斜的绿色屋顶的末端,有第二个大窗户,南方的光线被尽可能地吸引进来。
在花园房间内,选择了一致的装饰和材料。室内墙壁、天花板和细木工制品都有相同的木质装饰。这凸显了房间的宽敞性。街道一侧的间接照明通过其垂直度增强了这种空间感。通过安装相同木质饰面的推拉门,与现有房屋的联系降到了最低。
The garage door is covered in the same material as the façade, making it invisible. The front of the garden room was fitted with two beautiful windows. A large window at street level was concealed by allowing the aluminium cladding to continue in the form of a claustra. This allows contact with what is happening on the street, but without being transparent. At the end of the sloping - green - roof, there is a second large window through which the southern light is drawn in as much as possible.
Inside the garden room, a consistent use of finishing and materials was chosen. Both the interior walls, the ceiling and the joinery have the same wooden trim. This accentuates the spaciousness of the room. The indirect lighting on the street side enhances this spaciousness through its verticality. The connection with the existing house was minimised by the installation of a sliding door with the same wooden finish.


车库被赋予了额外的功能,也作为花园材料的存储空间。一扇双叶门为花园提供了通道,也为从街道到花园提供了方便。
The garage has been given an additional function and also serves as a storage space for garden materials. A double-leaf door gives access to the garden and also provides an easy passage from the street to the garden.

这一改造的结果是一个美丽的、"隐蔽的 "花园房间,住户们可以在这里撤退,享受花园或阅读。我们的灵感来自于利维亚别墅著名的地窖房间,在那里利维亚-德鲁西拉可以欣赏到精彩的自然场景壁画,而这些壁画是隐藏在房子的其他地方。由于没有什么能与大自然的真实之美相提并论,这个设计被赋予了与自然、阳光和日常生活的真正联系,通过许多大窗户的开启。
The result of this conversion is a beautiful, 'hidden' garden room where the residents can retreat to enjoy the garden or to read. We were inspired by the famous cellar room in Villa Livia, where Livia Drusilla could enjoy wonderful frescoes of nature scenes, hidden from the rest of the house. As nothing can match the real beauty of nature, this design was given a real connection with nature, the sun and daily life through the many large window openings.













Architects : Objekt Architecten
Area : 60 m²
Year : 2021
Photographs :Ypsilon Business Photography
Manufacturers : Alu-Coating, SAPA building systems
Lead Architects : Niels Van der Straeten, Dries Van Nieuwenborgh, Mahir Yavas
City : Lebbeke
Country : Belgium